VILLA A SCHIERA ANGOLARE DIVISIBILE PER 2 NUCLEI FAMILIARI VENDITA

STRADA DI VALLE LUCOLA - Filacciano (Roma)
€ 155.000
  • Più di 5 locali
  • 175 mq
  • 3 bagni

Villetta a schiera in Vendita a Filacciano

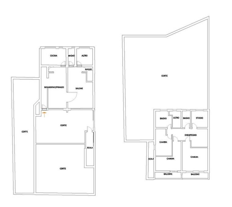
In località Valle Lucola, a pochi minuti in auto dal centro del paese, proponiamo in vendita una graziosa villa a schiera angolare di 175 mq dislocata su due livelli, con spazi esterni ben distribuiti e sempre assolati.
L’ingresso alla villetta si trova ad un livello rialzato rispetto a quello stradale. Gli interni si presentano estremamente curati e si aprono ad un meraviglioso salone doppio suddiviso in zona relax con termocamino, che crea un’atmosfera calda e familiare, ed una dedicata a soggiorno-pranzo. Completano il piano una cucina separata abitabile, una cameretta adatta anche come studio ed un bagno con doccia e finestra, oltre a due vani sottoscala utili come dispense e ripostigli.
La scala interna rivestita in marmo conduce al piano superiore, dedicato interamente alla zona notte e arricchito da due ampie camere matrimoniali padronali con balcone, due ulteriori camere da letto da adibire eventualmente a camera per gli ospiti e/o studio, da un bagno di servizio adibito anche a lavanderia con accesso diretto agli spazi esterni e da un’elegante bagno padronale con doppio lavabo e vasca idromassaggio. Il disimpegno del piano consente sia una suddivisione in 2 unità abitative grazie ad un secondo accesso tramite scala esterna o la realizzazione di una quinta camera.
Tutti gli ambienti interni dell'immobile sono dotati di climatizzazione.
Gli esterni della villetta sono caratterizzati da una corte antistante l’ingresso dotata di tenda da sole con chiusura totale, ideale per pranzi/cene e momenti conviviali all’aperto, oltre a spazi verdi vivibili arricchiti da piante ornamentali e da frutto.
Completano la proprietà tre posti auto privati scoperti.

Ti piace questa casa e pensi possa essere in linea alle tue esigenze? Contattaci per fissare una visita:
Tel. 0765.481129
Whatsapp 328.0571200
Se invece stai pensando sia arrivato il momento di cambiare casa ma devi prima vendere la tua, approfitta della nostra promozione 'PermuTiAmo'.
Chiedi ad uno dei nostri consulenti la valutazione senza impegno del tuo immobile, avrai un canale dedicato e sconti provvigionali sia sull'acquisto che sulla vendita.
Segui anche i nostri canali Social per rimanere sempre aggiornato sulle nuove proposte immobiliari
INSTAGRAM: tecnocasa_fianoromano
FACEBOOK: Gruppo Tecnocasa Fiano Romano
YOUTUBE: Tecnocasa Fiano Romano

LEGGI TUTTO

CONDIVIDI SUI SOCIAL

DATI PRINCIPALI

Riferimento
633384
Contratto
Vendita
Tipologia
Villetta a schiera
Superficie
175 mq
Locali
Più di 5
Camere da letto
5
Cucina
Abitabile
Bagni
3
Piano
Piano terra
Totale piani
2
Box/Posto auto
Doppio

CARATTERISTICHE

Ascensore

COSTI

Prezzo
€ 155.000,00

EFFICIENZA ENERGETICA

Stato
Abitabile
Anno costruzione
2009
Riscaldamento
Autonomo
Climatizzazione
Si
Classe energetica
G
IPE
175,00 kWh/m²a

A+

A

B

C

D

E

F

175,00 kWh/m²a | Classe energetica G

G

MAPPA

ANNUNCI SIMILI

VENDITA 20
€ 229.000
Villetta a schiera in Vendita a Fiano Romano (Roma)
  • Più di 5 locali
  • 164 mq
VENDITA 11
€ 71.191
Villetta a schiera in Vendita a Morlupo (Roma)
  • Più di 5 locali
  • 116 mq
  • 3 bagni
VENDITA 18
€ 560.000
Villetta a schiera in Vendita a Formello (Roma)
  • Più di 5 locali
  • 234 mq
  • 4 bagni
VENDITA 10
€ 160.125
Villetta a schiera in Vendita a Fonte Nuova (Roma)
  • Più di 5 locali
  • 157 mq
  • 2 bagni
VENDITA 20
€ 229.000
Villetta a schiera in Vendita a Fonte Nuova (Roma)
  • Più di 5 locali
  • 219 mq
  • 3 bagni
VENDITA 20
€ 250.000
Villetta a schiera in Vendita a Roma, Frazione Cesano
  • Più di 5 locali
  • 155 mq
VENDITA 11
€ 120.000
Villetta a schiera in Vendita a Roma, Frazione Cesano
  • Più di 5 locali
  • 153 mq
  • 3 bagni
VENDITA 20
€ 415.000
Villetta a schiera in Vendita a Guidonia Montecelio (Roma)
  • Più di 5 locali
  • 352 mq
  • 3 bagni
VENDITA 20
€ 280.000
Villetta a schiera in Vendita a Marcellina (Roma)
  • Più di 5 locali
  • 229 mq
  • 3 bagni
VENDITA 20
€ 585.000
Villetta a schiera in Vendita a Roma, Zona Olgiata
  • Più di 5 locali
  • 235 mq
  • 3 bagni