Villetta bifamiliare in vendita a Roma, Prima Porta VENDITA

Via Giuseppe Prinotti 74 - Roma, Zona Prima Porta
€ 250.000
  • Più di 5 locali
  • 166 mq
  • 2 bagni

Villa in Vendita a Roma

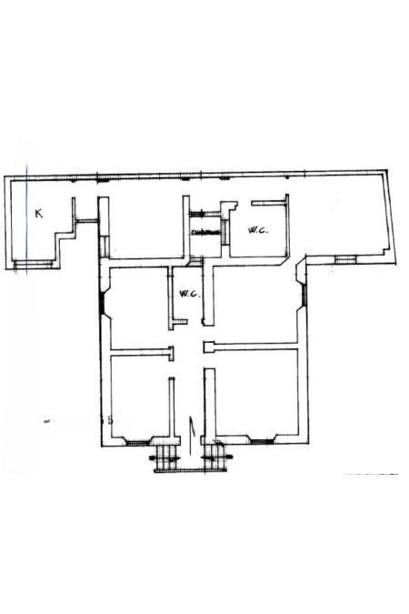
Villino Indipendente con Ampio Giardino e Box – 166 mq
​Via Giuseppe Prinotti, Prima Porta
​Se cerchi l'indipendenza senza rinunciare alla comodità dei servizi, questa è la soluzione ideale. Proponiamo in vendita un villino di 166 mq situato in un contesto riservato e silenzioso, caratterizzato da ampi spazi interni ed esterni che garantiscono privacy e comfort.
Spazi Esterni e Parcheggio
​Il cuore della proprietà è l'ampio giardino privato pavimentato: uno spazio versatile perfetto per vivere momenti all’aperto in totale riservatezza.
La proprietà è pensata per la massima praticità quotidiana grazie a:
​Box auto di 16 mq.
​Ampia area parcheggio interna: possibilità di parcheggiare comodamente 4/5 auto all'interno della corte privata (un valore aggiunto rarissimo in zona).
​Cantina esterna di 13 mq, ideale come deposito o locale tecnico.
Posizione Strategica e Servizi a Piedi
​Dimentica lo stress dell'auto per le commissioni quotidiane. La posizione in Via Giuseppe Prinotti permette di raggiungere comodamente a piedi:
​Istruzione: Una scuola media e due scuole materne, perfetto per le famiglie.
​Necessità e Svago: Ufficio postale, un alimentari e un bar tabacchi per ogni esigenza giornaliera.
​Comunità: La chiesa parrocchiale nelle immediate vicinanze.
Potenziale e Versatilità
​Con i suoi 166 mq, l'immobile si presta a diverse soluzioni abitative. La pianta generosa permette una redistribuzione degli spazi interni e, nota di grande valore, l'immobile si presta alla divisione in due unità immobiliari distinte, rendendolo ideale anche per due nuclei familiari che desiderano vivere vicini mantenendo la propria autonomia.
​Punti di Forza
​Indipendenza totale: Nessuna spesa condominiale e massima libertà.
​Parcheggio per tutti: Box privato + spazio per 4/5 auto nella corte interna.
​Servizi a portata di mano: Scuole, posta, alimentari e bar a pochi passi.
​Ampia Metratura: 166 mq calpestabili + 13 mq di cantina.
​Contattaci oggi stesso per fissare una visita e scoprire dal vivo tutto il potenziale di questa proprietà!

LEGGI TUTTO

CONDIVIDI SUI SOCIAL

DATI PRINCIPALI

Riferimento
641234
Contratto
Vendita
Tipologia
Villa
Superficie
166 mq
Locali
Più di 5
Camere da letto
4
Bagni
2
Piano
Piano terra
Totale piani
2
Box/Posto auto
Singolo

CARATTERISTICHE

Ascensore

COSTI

Prezzo
€ 250.000,00

EFFICIENZA ENERGETICA

Stato
Da ristrutturare
Riscaldamento
Autonomo
Classe energetica
G
IPE
175,00 kWh/m²a

A+

A

B

C

D

E

F

175,00 kWh/m²a | Classe energetica G

G

MAPPA

ANNUNCI SIMILI

VENDITA 20
€ 450.000
Villa in Vendita a Roma, Zona Prima Porta
  • Più di 5 locali
  • 295 mq
  • 4 bagni
VENDITA 20
€ 450.000
Villa in Vendita a Roma, Zona Prima Porta
  • Più di 5 locali
  • 295 mq
  • 4 bagni
VENDITA 20
€ 1.500.000
Villa in Vendita a Roma (Roma)
  • Più di 5 locali
  • 705 mq
  • 4 bagni
VENDITA 20
€ 399.000
Villa in Vendita a Roma, Zona Labaro
  • Più di 5 locali
  • 228 mq
  • 2 bagni
VENDITA 20
€ 249.000
Villa in Vendita a Roma, Zona Labaro
  • Più di 5 locali
  • 137 mq
  • 2 bagni