Villa singola in vendita a Roma, Giustiniana VENDITA

Via Veientana 257A - Roma, Frazione La Giustiniana
€ 1.100.000
  • Più di 5 locali
  • 322 mq
  • 4 bagni

Villa in Vendita a Roma

Giustiniana - Via Veientana.
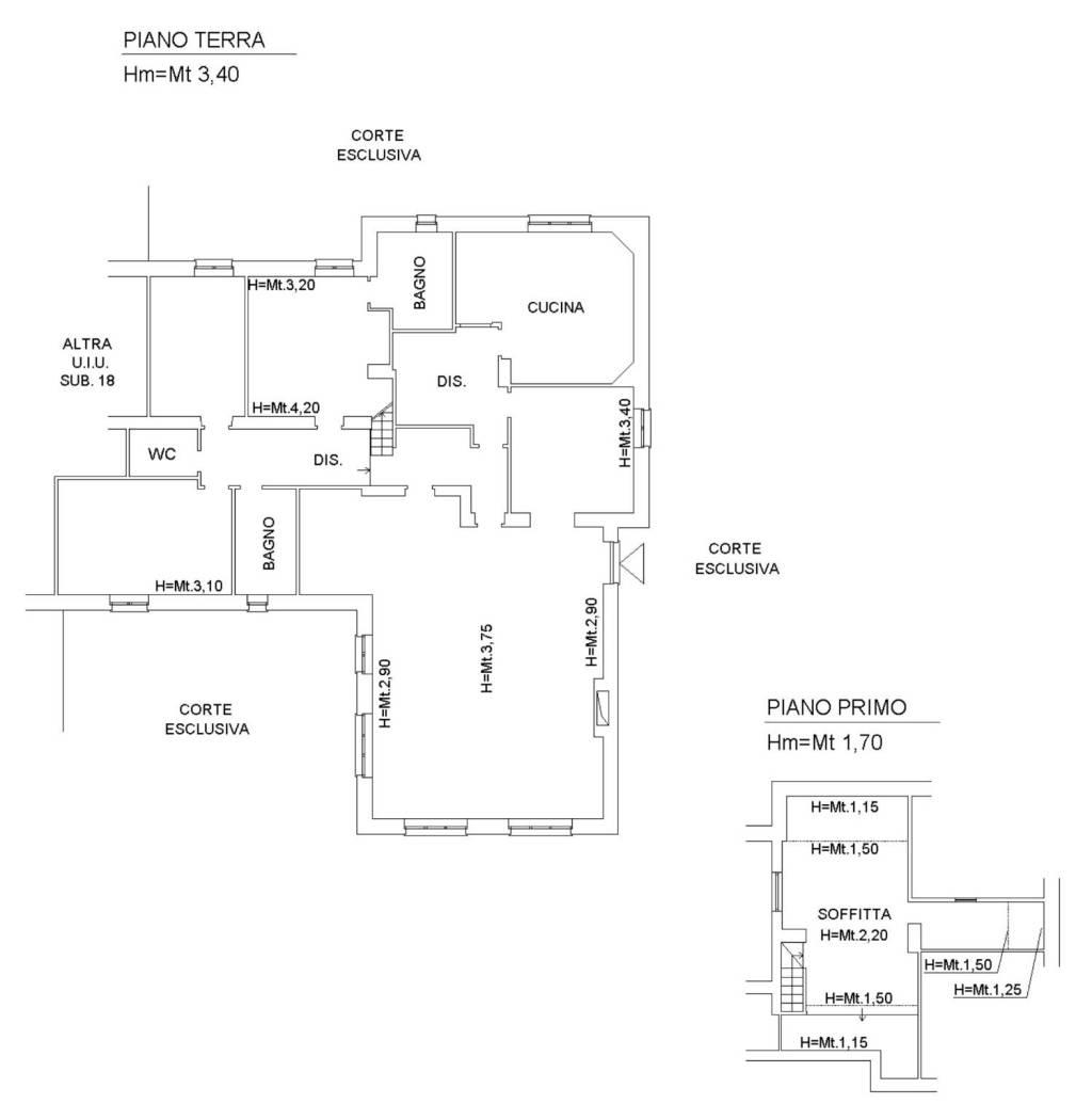
In una zona tranquilla immersa nel parco di Veio, più precisamente in una traversa di via della Giustiniana, proponiamo in vendita una proprietà costituita da una villa (322 mq) e un magazzino-dépendance (147 mq), ampio giardino con piscina di circa 1500 mq e tettoia posti auto (50 mq).
I due immobili, totalmente immersi nel verde, hanno cancelli di accesso carrabili indipendenti e sono attualmente divisi solo da una siepe.
La proprietà si trova in una posizione strategica perché a 5 minuti dalla via Cassia, vicina al Gra e alla Cassia Bis, e alle scuole internazionali quali l'Institut International Saint Dominique e la Acorn International School, la St George’s British International School e l’American Overseas School.
- La villa è costituita da un'ampia zona giorno:
un salone triplo con camino e angolo pranzo, uno studio, una grande cucina in muratura e maioliche completamente arredata con tinello antistante, e grande patio.
Attraverso un disimpegno con armadio a muro e un corridoio si accede alla zona notte, ovvero ad una camera da letto con bagno en suite, e due ulteriori camere da letto e due bagni.
Una scala in legno porta ad una soffitta, luminosa e spaziosa utilizzabile come camera/studio, soffitta, ripostiglio.
La pavimentazione è in cotto e soffitto a travi, gli infissi sono in legno e le finestre hanno tutte le grate e le zanzariere.
Il giardino è costituito da alberi ad alto fusto, ulivi, alberi da frutto e piante di vario tipo.
- La dépendance si sviluppa in lunghezza ed è composta da quattro vani e un bagno:
una grande cucina-sala da pranzo, un saloncino-studio, un'ampia camera da letto, un bagno e una stanza attualmente adibita a ripostiglio e lavanderia.
Lo spazio esterno è pavimentato.
Il riscaldamento è autonomo (bombolone in giardino), l'acqua è sia corrente che di cisterna.
Completano la proprietà una piscina e 2-3 posti auto coperti da una tettoia.
Contattateci per informazioni o per fissare una visita in esclusiva!

LEGGI TUTTO

CONDIVIDI SUI SOCIAL

DATI PRINCIPALI

Riferimento
639173
Contratto
Vendita
Tipologia
Villa
Superficie
322 mq
Locali
Più di 5
Camere da letto
4
Cucina
Abitabile
Bagni
4
Piano
Piano terra
Totale piani
2
Box/Posto auto
Singolo

CARATTERISTICHE

Ascensore

COSTI

Prezzo
€ 1.100.000,00

EFFICIENZA ENERGETICA

Stato
Ristrutturato
Anno costruzione
1980
Riscaldamento
Autonomo
Climatizzazione
Si
Classe energetica
G
IPE
172,00 kWh/m²a

A+

A

B

C

D

E

F

172,00 kWh/m²a | Classe energetica G

G

MAPPA

ANNUNCI SIMILI

VENDITA 19
€ 990.000
Villa in Vendita a Roma (Roma)
  • Più di 5 locali
  • 726 mq
  • 4 bagni
VENDITA 20
€ 355.000
Villa in Vendita a Roma (Roma)
  • Più di 5 locali
  • 192 mq
  • 3 bagni
VENDITA 20
€ 1.390.000
Villa in Vendita a Roma (Roma)
  • Più di 5 locali
  • 650 mq
  • 4 bagni