Villa nel Parco della Leprignana VENDITA

Via del Fontanile di Mezzaluna 285 - Fiumicino (Roma)
€ 495.000
  • Più di 5 locali
  • 190 mq
  • 3 bagni

Villa in Vendita a Fiumicino

VILLA CON PISCINA IMMERSA NEL VERDE
L'agenzia immobiliare Gruppo Sole propone in vendita porzione di una deliziosa villa bifamiliare con piscina nello splendido Parco della Leprignana, un'oasi di pace immersa nella natura con 120 ettari di bosco, aree relax con barbeque e giochi per bambini e Guardiania H/24 con accesso solo per residenti; Il posto ideale per una famiglia che desidera vivere in un contesto unico lontano dal caos cittadino ma a pochi minuti dalle comodità della città.
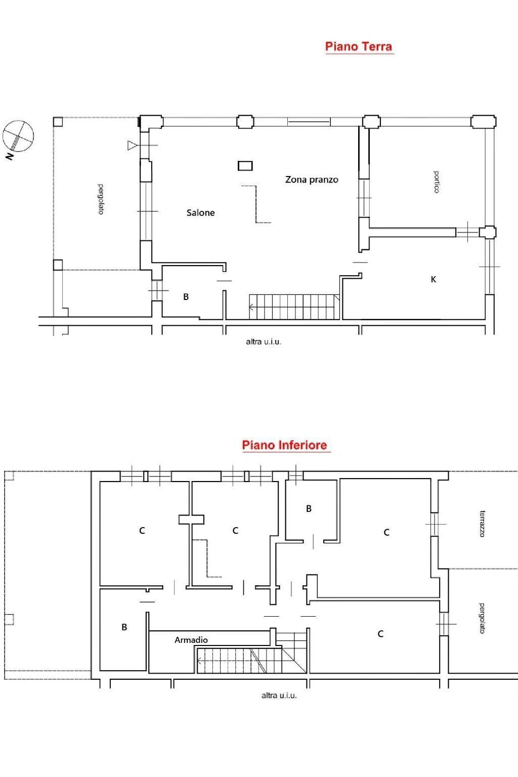
L'abitazione si sviluppa su due piani entrambi con affaccio da piano terra su aree terrazzate e sul curatissimo giardino privato; al piano terra si sviluppa la zona giorno con un ampio salone, la cucina abitabile ed un bagno; al piano sottostante troviamo la zona notte che ospita due camere da letto, due camerette, due bagni e uscita su un'ulteriore terrazza coperta e giardino. Completano la proprietà un parcheggio con cancello elettrico nella zona pavimentata del giardino e un'esclusiva piscina privata. Tutto l'immobile si trova in ottimo stato, con impianti a norma certificati pavimenti in cotto e parquet di teak, riscaldamento a terra, impianto d'allarme e pannelli solari per la produzione di acqua calda. Il prezzo richiesto per la vendita è di € 495.000,00 (rif. 24/25) www.grupposolere.it

LEGGI TUTTO

CONDIVIDI SUI SOCIAL

DATI PRINCIPALI

Riferimento
628621
Contratto
Vendita
Tipologia
Villa
Superficie
190 mq
Locali
5
Camere da letto
4
Cucina
Abitabile
Bagni
3
Piano
Piano terra
Totale piani
2

CARATTERISTICHE

Ascensore

COSTI

Prezzo
€ 495.000,00
Spese condominiali
€ 250,00 / mese

EFFICIENZA ENERGETICA

Stato
Ristrutturato
Anno costruzione
2011
Riscaldamento
Autonomo
Climatizzazione
Si
Classe energetica
G
IPE
175,00 kWh/m²a

A+

A

B

C

D

E

F

175,00 kWh/m²a | Classe energetica G

G

MAPPA

ANNUNCI SIMILI

VENDITA 20
€ 430.000
Villa in Vendita a Fiumicino (Roma)
  • Più di 5 locali
  • 190 mq
  • 3 bagni
VENDITA 20
€ 669.000
Villa in Vendita a Fiumicino (Roma)
  • Più di 5 locali
  • 616 mq
  • 4 bagni
VENDITA 20
€ 489.000
Villa in Vendita a Fiumicino (Roma)
  • Più di 5 locali
  • 230 mq
  • 2 bagni
VENDITA 20
€ 550.000
Villa in Vendita a Fiumicino (Roma)
  • Più di 5 locali
  • 180 mq
  • 4 bagni
VENDITA 20
€ 390.000
Villa in Vendita a Fiumicino (Roma)
  • Più di 5 locali
  • 250 mq
  • 3 bagni