Villa unifamiliare VENDITA

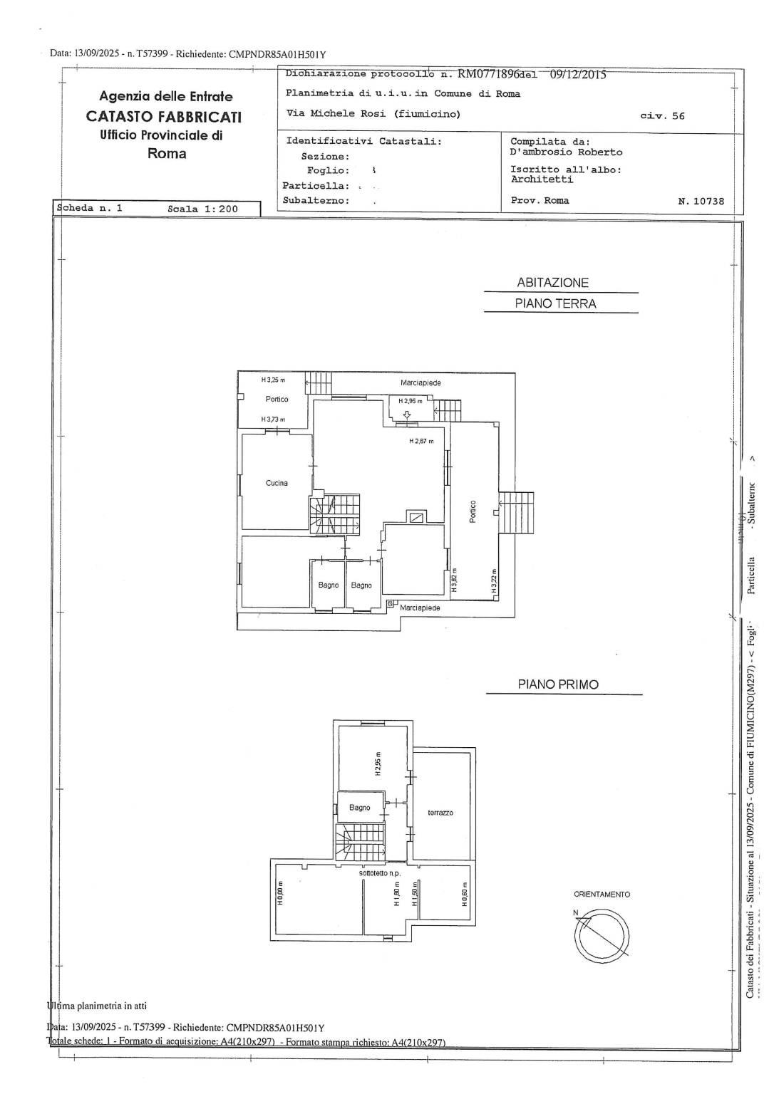
Via Michele Rosi 56 - Fiumicino (Roma)
€ 550.000
  • Più di 5 locali
  • 180 mq
  • 4 bagni

Villa in Vendita a Fiumicino

VILLA UNIFAMILIARE Una dimora che racconta una storia di qualità, spazio e visione.
Ci sono case che si abitano, e poi ci sono dimore che si vivono. Questa villa è una di quelle: nata dalla cura di chi ha scelto di costruire senza compromessi, oggi ti aspetta con tutto lo spazio, il comfort e il potenziale per diventare il luogo dove la tua famiglia metterà le radici più profonde. Immersa nella quiete di Aranova, a pochi passi dall'Aurelia e da tutti i principali servizi, questa villa unifamiliare su tre livelli è l'equilibrio perfetto tra la pace della campagna e la comodità della vita moderna. Niente è stato lasciato al caso: la struttura in cemento armato, gli infissi in legno con doppio vetro, le persiane blindate e le grate di sicurezza l’impianto di allarme raccontano di una costruzione seria, pensata per durare nel tempo e per proteggere ciò che conta davvero.



Il piano terra: dove la vita di famiglia prende forma
Varcata la soglia, il grande soggiorno luminoso ti accoglie con la sensazione immediata di casa. La cucina abitabile, pensata per quattro persone, è il cuore pulsante dove i profumi del pranzo domenicale si mescolano alle voci dei tuoi cari. Le due camere matrimoniali — una delle quali con esclusivo bagno padronale — offrono quella privacy e quella dignità che ogni coppia merita.
Ma è all'esterno che il respiro si fa davvero ampio: tre portici per 44 mq complessivi ti invitano a vivere all'aria aperta in ogni stagione, affacciati su un giardino pianeggiante di ben 2.642 mq, perfettamente predisposto per ospitare la piscina che hai sempre sognato, completa di un'area ristoro e relax degna di un resort privato. E per chi ama la natura nella sua forma più autentica, il bosco ceduo di 1.840 mq aggiunge un tocco di magia selvaggia, tutto tuo.


Il piano primo: lo spazio che cresce con te
Salendo la pregiata e comoda scala in marmo rosa — un elemento architettonico di rara eleganza che da sola vale la visita — si raggiunge il piano primo, dove un'ulteriore camera, un bagno e un luminoso locale sottotetto abitabile (perfetto come studio, stanza ospiti o cameretta) completano gli spazi privati della villa. Il terrazzo di 22 mq è il posto ideale per iniziare la giornata con una colazione vista giardino, o per concluderla ammirandone il tramonto.


Il seminterrato: il valore nascosto che fa la differenza
In una villa di questa qualità, anche il seminterrato merita un racconto tutto suo — e qui davvero stupisce. Luminoso e asciutto, contrariamente a quanto si possa immaginare, questo livello è un universo di possibilità: il forno a legna e il punto cucina lo rendono la location perfetta per feste, cene in famiglia e serate con gli amici. Gli ampi spazi si prestano naturalmente all'allestimento di una palestra privata o un'area fitness, per chi vuole il benessere a portata di casa. Il lavatoio multifunzionale, pratico e ben organizzato, ed il locale deposito, completano la funzionalità di questo livello. A chiudere il quadro, due comodi e spaziosi box auto — rispettivamente di 20 e 28 mq — per chi ha bisogno di spazio anche per i propri veicoli o mezzi di lavoro, insieme alla locale caldaia e ai locali deposito.
In sintesi, tutto ciò che cercavi — e qualcosa in più
Villa unifamiliare su 3 livelli in cemento armato
Giardino pianeggiante 2.642 mq + bosco ceduo 1.840 mq
Pozzo autonomo
2 garage (20 + 28 mq)
Forno a legna e area feste nel seminterrato
Scala monumentale in marmo rosa
Infissi in legno doppio vetro, persiane blindate e grate
Terrazzo 22 mq + portici 44 mq
Posizione strategica: vicino all'Aurelia e ai servizi
Alcune case si trovano. Questa si scopre. Vieni a visitarla: certi spazi vanno vissuti per essere davvero compresi.

LEGGI TUTTO

CONDIVIDI SUI SOCIAL

DATI PRINCIPALI

Riferimento
627009
Contratto
Vendita
Tipologia
Villa
Superficie
180 mq
Locali
Più di 5
Camere da letto
3
Cucina
Abitabile
Bagni
4
Piano
Piano terra
Totale piani
3
Box/Posto auto
Doppio

CARATTERISTICHE

Ascensore

COSTI

Prezzo
€ 550.000,00

EFFICIENZA ENERGETICA

Stato
Ristrutturato
Anno costruzione
2015
Riscaldamento
Autonomo
Classe energetica
E
IPE
351,00 kWh/m²a

A+

A

B

C

D

351,00 kWh/m²a | Classe energetica E

E

F

G

MAPPA

ANNUNCI SIMILI

VENDITA 20
€ 489.000
Villa in Vendita a Fiumicino (Roma)
  • Più di 5 locali
  • 230 mq
  • 2 bagni
VENDITA 20
€ 430.000
Villa in Vendita a Fiumicino (Roma)
  • Più di 5 locali
  • 384 mq
  • 3 bagni
VENDITA 20
€ 670.000
Villa in Vendita a Fiumicino (Roma)
  • Più di 5 locali
  • 545 mq
  • 4 bagni
VENDITA 19
€ 300.000
Villa in Vendita a Fiumicino (Roma)
  • Più di 5 locali
  • 150 mq
  • 4 bagni
VENDITA 20
€ 545.000
  • Più di 5 locali
  • 600 mq
  • 3 bagni
VENDITA 20
€ 430.000
Villa in Vendita a Fiumicino (Roma)
  • Più di 5 locali
  • 190 mq
  • 3 bagni