VILLA CON PISCINA LAVINIO ZONA GIORNALISTI - VIA ABELIA VENDITA

Via Abelia 2 - Anzio (Roma)
€ 289.000
  • Quadrilocale
  • 123 mq
  • 2 bagni

Villetta a schiera in Vendita a Anzio

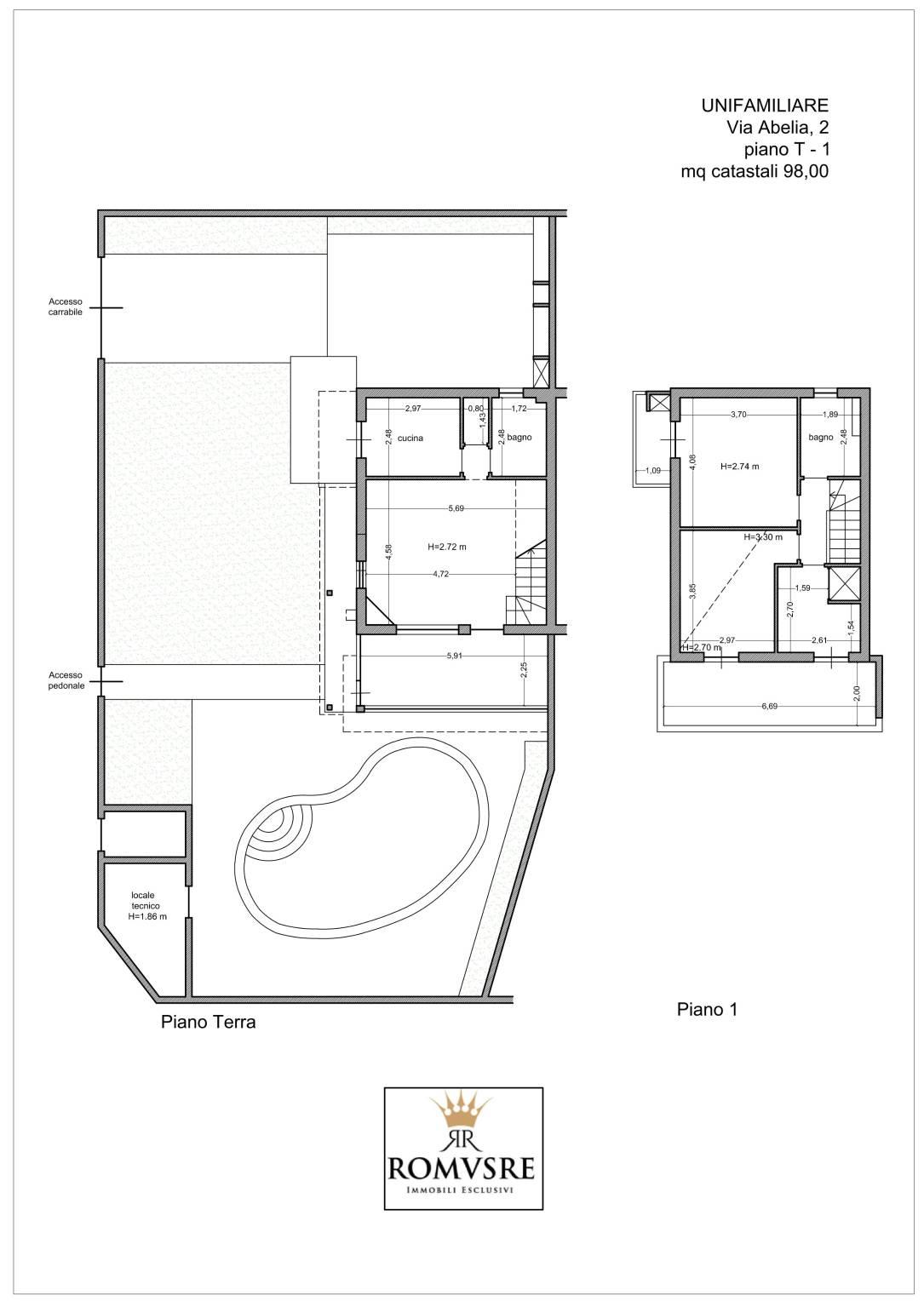
Villa con piscina in vendita ad Anzio, Località Lavinio Giornalisti, Via Abelia angolo Stradone Sant’Anastasio, ROMUS RE propone deliziosa porzione di Villa angolare quadrifamiliare in ottimo stato di 98 mq commerciali in contesto riservato e tranquillo, composto da:

Esterno: ingresso carrabile e pedonale mattonato, giardino di 250 mq curatissimo con alberi di Limone, Yucca gigante, Rose e Siepi, in parte adibito ad area barbecue ideale per pranzi e cene all’aperto con gazebo zona lavandino e sgabuzzino ed in parte dedicato alla zona Relax con una splendida piscina interrata munita di idromassaggio ed un'area solarium attrezzata. Deposito esterno per attrezzatura da giardino.

Piano Terra: Veranda d’ingresso con accesso diretto ad un luminoso salone di 26 mq ca con camino, cucina abitabile di 8 mq, bagno finestrato con box doccia, piccolo ripostiglio/lavanderia, scala a vista in muratura che porta al piano superiore.

Piano Primo: Disimpegno, camera matrimoniale di 16 mq ca con balcone privato di 4 mq ca, cameretta di 13,5 mq ca e locale Pluriuso adibito a cabina armadio di 7 mq ca con finestra, entrambe con accesso al terrazzo di 17,5 mq ca, bagno padronale completamente ristrutturato con finestra ed ampia doccia.

L’immobile è dotato di:
- porta blindata
- pavimenti in cotto in salone, in cucina e nelle camere
- rifiniture moderne nei bagni
- infissi in legno con doppi vetri
- grate di sicurezza a tutte le finestre
- zanzariere
- impianto di riscaldamento autonomo a gas
- radiatori con valvole elettrostatiche
- condizionatori
- impianto di allarme
- tende da sole
- piscina munita di idromassaggio
- impianto di irrigazione
- cancello carrabile automatico

La perfetta esposizione rende ideale l’installazione di impianto fotovoltaico sul tetto.

Questo immobile, oltre che per uso proprio, è una ottima opportunità di investimento ad uso ricettivo turistico, grazie al valore aggiunto della splendida piscina in giardino.

Il villino è sito in zona Villaggio Giornalisti conosciuta per il contesto tranquillo, verdeggiante ed elegante grazie alla presenza di numerose ville con giardino e piscine.
A pochi minuti dal Lido di Enea e dalla Riserva Naturale Regionale di Tor Caldara.
A 2 km dalla Stazione Ferroviaria di Lavinio, a 2 km dalla Spiaggia ed a pochi chilometri dal Centro Commerciale Aprilia 2.

LEGGI TUTTO

CONDIVIDI SUI SOCIAL

DATI PRINCIPALI

Riferimento
634498
Contratto
Vendita
Tipologia
Villetta a schiera
Superficie
123 mq
Locali
4
Camere da letto
2
Cucina
Abitabile
Bagni
2
Piano
1 °
Totale piani
2
Box/Posto auto
Singolo

CARATTERISTICHE

Ascensore

COSTI

Prezzo
€ 289.000,00

EFFICIENZA ENERGETICA

Stato
Ristrutturato
Anno costruzione
2003
Riscaldamento
Autonomo
Climatizzazione
Si
Classe energetica
E
IPE
165,42 kWh/m²a

A+

A

B

C

D

165,42 kWh/m²a | Classe energetica E

E

F

G

MAPPA

ANNUNCI SIMILI

VENDITA 20
€ 206.000
Villetta a schiera in Vendita a Anzio (Roma)
  • Quadrilocale
  • 104 mq
  • 2 bagni
VENDITA 20
€ 275.000
Villetta a schiera in Vendita a Anzio (Roma)
  • Più di 5 locali
  • 150 mq
  • 3 bagni
VENDITA 20
€ 170.000
Villetta a schiera in Vendita a Anzio (Roma)
  • Quadrilocale
  • 75 mq
  • 2 bagni
VENDITA 19
€ 90.000
Villetta a schiera in Vendita a Anzio (Roma)
  • Quadrilocale
  • 95 mq
  • 1 bagno
VENDITA 20
€ 256.000
Villetta a schiera in Vendita a Anzio (Roma)
  • Quadrilocale
  • 119 mq
  • 2 bagni
VENDITA 20
€ 180.000
Villetta a schiera in Vendita a Anzio (Roma)
  • Più di 5 locali
  • 113 mq
  • 2 bagni
VENDITA 20
€ 159.000
Villetta a schiera in Vendita a Anzio (Roma)
  • Quadrilocale
  • 102 mq
  • 3 bagni