Villa Bifamiliare totalmente ristrutturata VENDITA

Via dei Pesci - Ladispoli (Roma)
€ 559.000
  • Quadrilocale
  • 135 mq
  • 2 bagni

Villa in Vendita a Ladispoli

Rif: FM005 - La villa perfetta per te a Marina di San Nicola!
Se sogni una casa spaziosa, sicura ed efficiente, in una delle località più esclusive del litorale, questa è l’opportunità che stavi aspettando. Tempocasa Marina di San Nicola ti propone una splendida porzione di villa bifamiliare, ristrutturata con cura, termoautonoma e dotata di impianto fotovoltaico, perfetta per chi cerca comfort e qualità.
Dove si trova?
In Via dei Pesci, una delle zone più tranquille e prestigiose di Marina di San Nicola. Un’oasi di pace, vicina ai servizi essenziali e a pochi passi dal mare.
Caratteristiche della villa
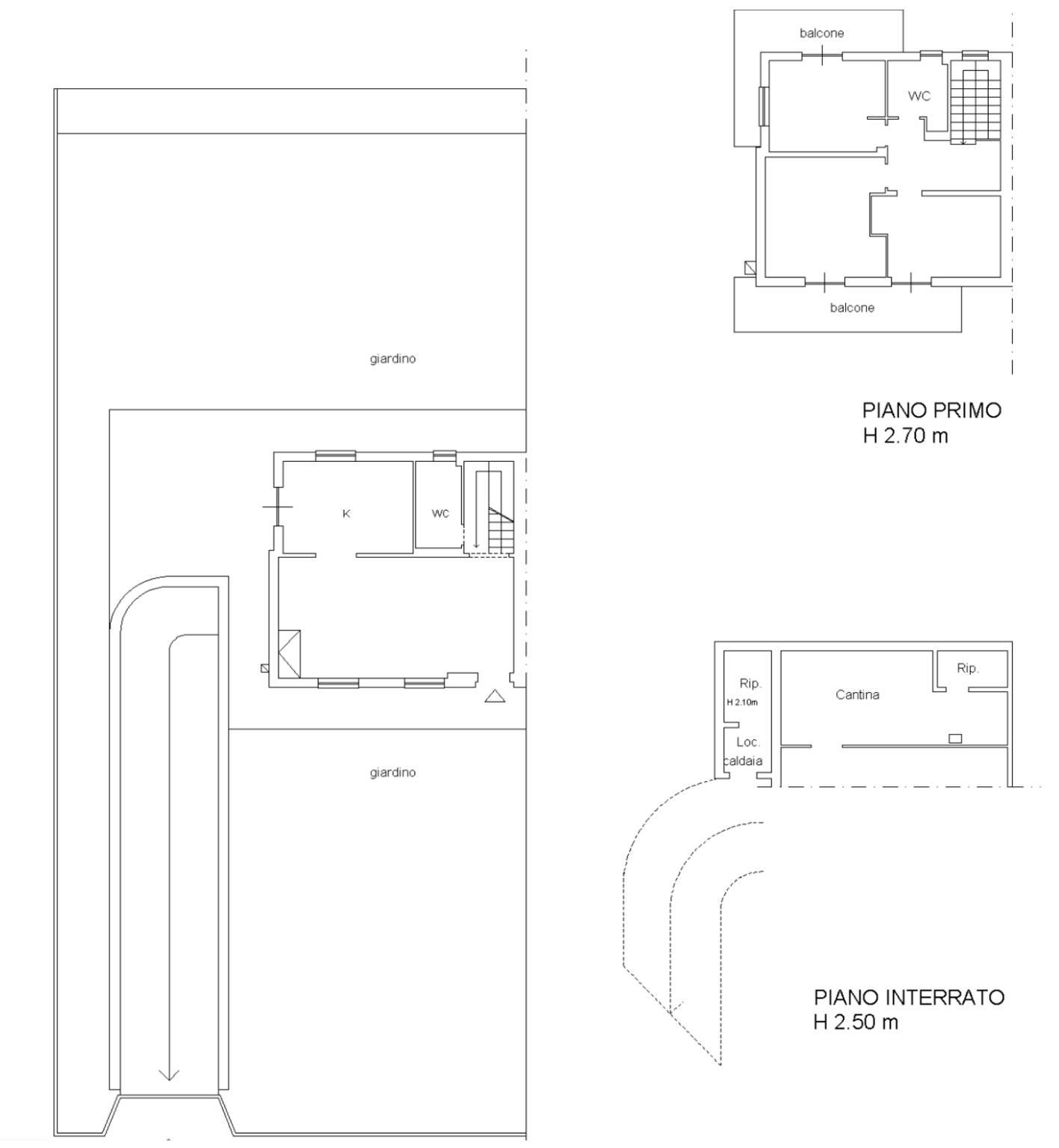
* Zona giorno ampia e luminosa, con doppia esposizione, camino e una cucina abitabile perfetta per ogni esigenza. A completare il piano, un comodo bagno con doccia.
* Zona notte confortevole, con due camere matrimoniali, una cameretta/studio e un bagno con doccia.
* Spazi extra: ampia cantina e garage, perfetti per ogni necessità.
* Giardino privato di 500 mq, arricchito da alberi da frutto, piante ornamentali e un forno a legna, ideale per godersi momenti di relax all’aperto.
* Terrazzo e balcone angolare, perfetti per ammirare il contesto circostante.
Sicurezza, efficienza e comfort
* Inferriate e persiane blindate, per una protezione totale.
* Impianto fotovoltaico, per un risparmio energetico garantito.
* Accesso carrabile con parcheggio interno, per la massima comodità.
* Posizione strategica, con bar, supermercati e farmacia a pochi minuti.
Perché sceglierla?
Perché offre spazi generosi, sicurezza e sostenibilità, senza rinunciare alla tranquillità e alla comodità. Perfetta sia come casa vacanze che come residenza principale, questa villa è un investimento sicuro per chi desidera vivere il mare tutto l’anno.
Non lasciarti sfuggire questa occasione! Contattaci subito per maggiori informazioni e per prenotare una visita.

LEGGI TUTTO

CONDIVIDI SUI SOCIAL

DATI PRINCIPALI

Riferimento
639007
Contratto
Vendita
Tipologia
Villa
Superficie
135 mq
Locali
4
Camere da letto
3
Cucina
Abitabile
Bagni
2
Piano
Piano terra
Totale piani
1
Box/Posto auto
Singolo

CARATTERISTICHE

Ascensore

COSTI

Prezzo
€ 559.000,00
Spese condominiali
€ 92,00 / mese

EFFICIENZA ENERGETICA

Stato
Ristrutturato
Anno costruzione
1970
Riscaldamento
Autonomo
Climatizzazione
Si
Classe energetica
F
IPE
1,75 kWh/m²a

A+

A

B

C

D

E

1,75 kWh/m²a | Classe energetica F

F

G

MAPPA

ANNUNCI SIMILI

VENDITA 3
€ 650.000
Villa in Vendita a Ladispoli (Roma)
  • Quadrilocale
  • 100 mq
  • 2 bagni
VENDITA 3
€ 650.000
Villa in Vendita a Ladispoli (Roma)
  • Quadrilocale
  • 100 mq
  • 2 bagni
VENDITA 20
€ 850.000
Villa in Vendita a Ladispoli (Roma)
  • Più di 5 locali
  • 161 mq
  • 2 bagni
VENDITA 20
€ 329.000
Villa in Vendita a Ladispoli (Roma)
  • Più di 5 locali
  • 200 mq
  • 4 bagni