VIA TRINCEA DELLE FRASCHE ANGOLO VIA ANGELO SIFFREDI VENDITA

Via Angelo Siffredi 21 - Fiumicino, Frazione Isola Sacra
€ 390.000
  • Più di 5 locali
  • 120 mq
  • 3 bagni

Villa in Vendita a Fiumicino

VILLE QUADRIFAMILIARI CON GIARDINO

CONSEGNA PREVISTA GIUGNO 2027

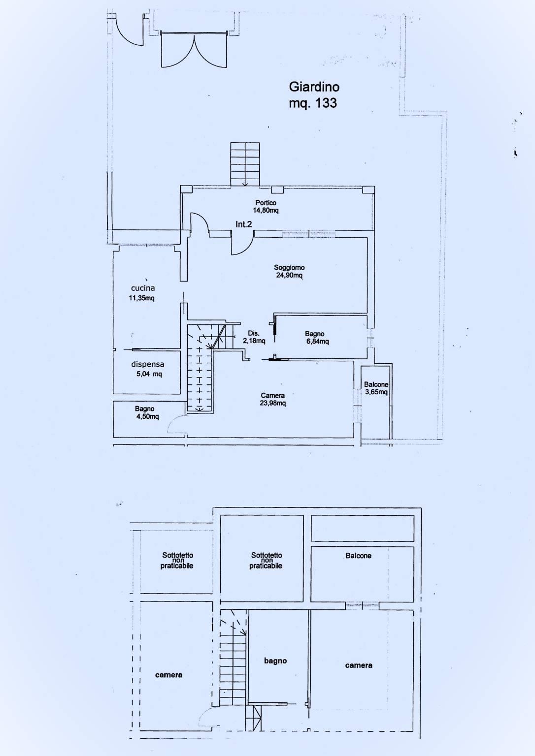
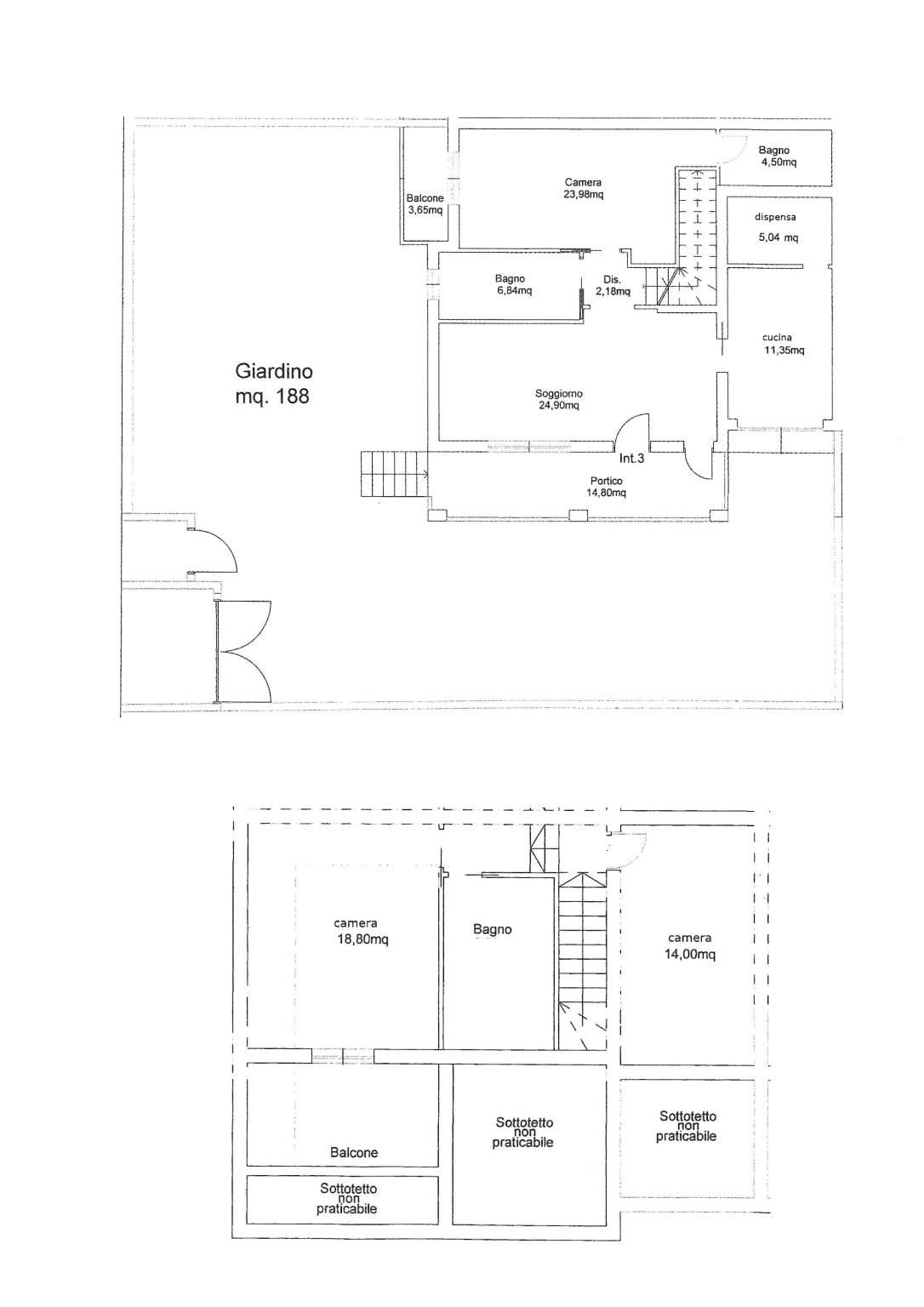
Le unità immobiliari sarnno sviluppate su due livelli fuori terra quindi piano rialzato e primo piano, con una superficie commerciale di circa 120 mq interni oltre spazio esterno privato tra balconi, portici coperti e giardini.

All'interno saranno cosi suddivise: 

Al piano rialzato ampio salone con possibilità di realizzare una cucina separata vivibile, oppure creare un grande open space tra salone e zona cucina.  Nella zona notte ci sarà un bagno finestrato, una camera da letto matrimoniale con cabina armadio (possibilità di creare anche un bagno in camera al posto della cabina armadio). 

Al piano superiore da cui si accede tramite una comoda scala realizzata in pietra lavica dell'Etna, si accede ad altre due camere da letto di cui una con terrazzino, ed un altro bagno.

All'esterno troviamo ampi spazi tra portici coperti e giardini semi pavimentati, con ingressi carrabili e pedonali.

Gli impianti,   con riscaldamento a terra, e split di aria condizionata, impianto fotovoltaico, grate ,porte interne di falegnameria,  eleganti portoni blindati con vetro, finestre in pvc doppio vetro per un comfort ottimale tutto l'anno.

La posizione è ideale per chi cerca la tranquillità ma allo stesso tempo una zona ben servita e ben collegata.  Nelle vicinanze si trovano piccole attività commerciali, supermercati, scuole e parchi pubblici.

Non perdere l'occasione di vivere in una casa che combina modernità ed efficienza energetica con la classe energetica A.

Prenota un appuntamento in sede per scoprire tutti i dettagli ed i progetti di questa straordinaria costruzione!

LEGGI TUTTO

CONDIVIDI SUI SOCIAL

DATI PRINCIPALI

Riferimento
636904
Contratto
Vendita
Tipologia
Villa
Superficie
120 mq
Locali
5
Camere da letto
3
Cucina
Abitabile
Bagni
3
Piano
Piano terra
Totale piani
2
Box/Posto auto
Singolo

CARATTERISTICHE

Ascensore

COSTI

Prezzo
€ 390.000,00

EFFICIENZA ENERGETICA

Stato
Nuovo/In costruzione
Anno costruzione
2026
Riscaldamento
Autonomo
Climatizzazione
Si
Classe energetica
A+
IPE
175,00 kWh/m²a
175,00 kWh/m²a | Classe energetica A+

A+

A

B

C

D

E

F

G

MAPPA

ANNUNCI SIMILI

VENDITA 20
€ 349.000
Villa in Vendita a Fiumicino (Roma)
  • Più di 5 locali
  • 234 mq
  • 2 bagni