€ 395.000
  • Più di 5 locali
  • 265 mq
  • 3 bagni

Villa in Vendita a Fiumicino

Villa con ampi spazi a pochi passi dal mare – Fiumicino, Via Portunno (Isola Sacra)

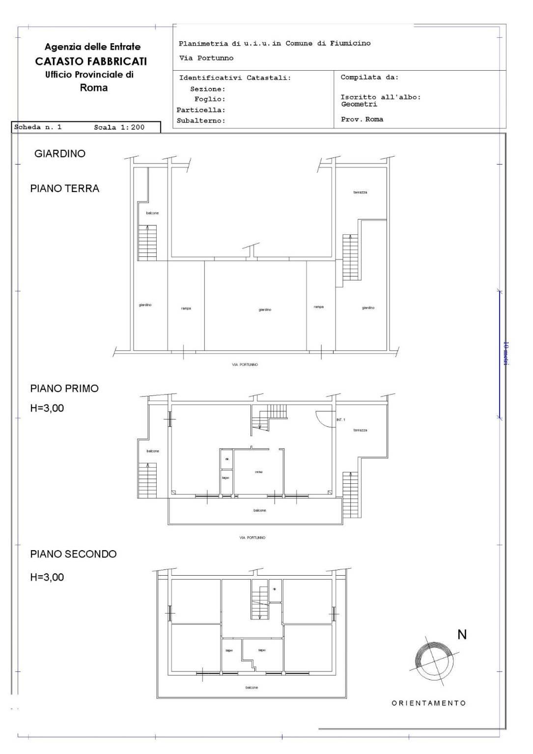
In una delle zone più centrali e ricercate di Fiumicino, in Via Portunno, a pochi metri dal mare e vicino a tutti i principali servizi, proponiamo in vendita una villa indipendente di grande metratura, ideale per chi cerca una residenza spaziosa e prestigiosa.

Questa proprietà, nata dall’unione di due villette bifamiliari e sviluppata su tre livelli per un totale di circa 265 mq interni, conserva il fascino delle costruzioni anni ’70 con facciata in cortina e offre un grande potenziale grazie agli ampi spazi interni ed esterni.

Gli spazi interni:
- Piano rialzato (90 mq circa): salone, cucina abitabile, seconda zona living, veranda fronte strada di 25 mq, bagno di servizio
- Primo piano (90 mq circa): disimpegno, quattro camere matrimoniali, due bagni, ripostiglio, balcone di 25 mq
- Piano seminterrato: due garage di 45 mq e 51 mq, ciascuno con rampa indipendente di accesso carrabile

All’esterno completa la proprietà un giardino privato di 170 mq, ideale per trascorrere momenti di relax o per vivere appieno la bella stagione.

Punti di forza:
- posizione centrale, a pochi passi dal mare e dai servizi
- ampi spazi interni ed esterni
- esposizione est-sud-nord
- soluzione indipendente con grandi potenzialità, perfetta per famiglie numerose o per chi desidera realizzare più unità abitative

Prezzo Euro 395.000,00
La villa si presenta da ristrutturare, offrendo l’opportunità di personalizzare gli ambienti e realizzare la casa dei propri sogni in una delle aree più ambite di Fiumicino.

Per avere ulteriori informazioni, contatta l'agenzia RE/MAX Aurea ai seguenti numeri: +39 06.21115542
Rif. 38081001-162

Perché affidarsi a RE/MAX Aurea?
Agenti esperti ti supporteranno dall'inizio alla fine e, addirittura, dopo il processo di vendita.
Ogni giorno i consulenti RE/MAX soddisfano in modo veloce e trasparente le esigenze di ricerca, affitto e vendita di appartamenti, case, immobili residenziali e commerciali in Italia e all’estero. Qualsiasi sia il tuo prossimo passo fallo con RE/MAX Aurea!

Le presenti informazioni non costituiscono elemento contrattuale, per approfondimenti invitiamo la clientela a contattarci per effettuare un sopralluogo all'interno della proprietà e consultare tutta la documentazione presente presso la nostra agenzia.

LEGGI TUTTO

CONDIVIDI SUI SOCIAL

DATI PRINCIPALI

Riferimento
635606
Contratto
Vendita
Tipologia
Villa
Superficie
265 mq
Locali
Più di 5
Camere da letto
4
Cucina
Abitabile
Bagni
3
Piano
Piano terra
Totale piani
3
Box/Posto auto
Doppio

CARATTERISTICHE

Ascensore

COSTI

Prezzo
€ 395.000,00

EFFICIENZA ENERGETICA

Stato
Da ristrutturare
Anno costruzione
1970
Classe energetica
G
IPE
351,00 kWh/m²a

A+

A

B

C

D

E

F

351,00 kWh/m²a | Classe energetica G

G

MAPPA

ANNUNCI SIMILI

VENDITA 20
€ 355.000
Villa in Vendita a Fiumicino (Roma)
  • Più di 5 locali
  • 250 mq
  • 3 bagni
VENDITA 20
€ 349.000
Villa in Vendita a Fiumicino (Roma)
  • Più di 5 locali
  • 234 mq
  • 2 bagni
VENDITA 20
€ 399.000
Villa in Vendita a Fiumicino, Frazione Focene
  • Più di 5 locali
  • 206 mq
  • 3 bagni
VENDITA 20
€ 269.000
Villa in Vendita a Fiumicino (Roma)
  • Più di 5 locali
  • 180 mq
  • 3 bagni