€ 548.000
  • Più di 5 locali
  • 210 mq
  • 4 bagni

Villa in Vendita a Roma

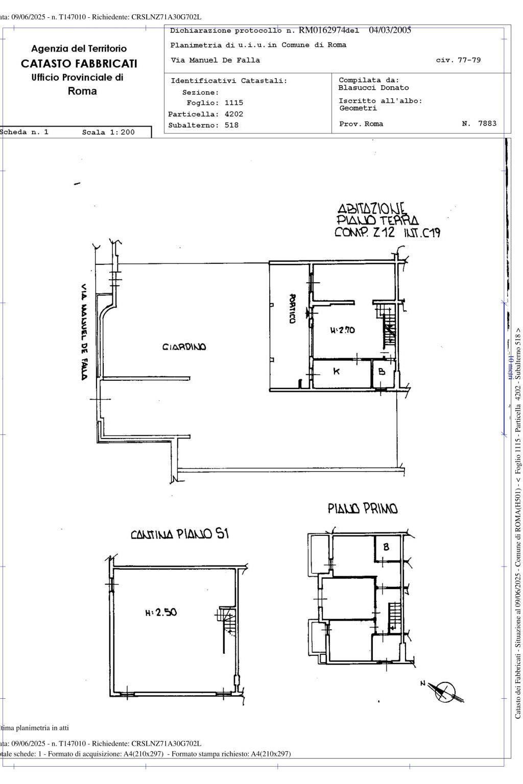
INFERNETTO. Via Manuel de Falla.
Lo Studio Immobiliare di Barbara Cannavale è lieto di presentare la seguente proposta immobiliare e precisamente:
Porzione di villa quadrifamiliare disposta su tre livelli, composta al piano terra da salone doppio cucina semi abitabile ed un bagno, piano notte composto da, tre camere da letto, doppi servizi di cui uno nella camera padronale. Sala hobby con ampio salone, una camera da letto matrimoniale, grande stanza da bagno. Esternamente l'immobile gode di un patio coperto attrezzato con forno per pizze e barbecue e di un ampio giardino di 300 mq circa con doppio posto auto interno scoperto.
ZOOM HOUSE – PREVIEW Il nuovo servizio ideato per Voi su tutti i nostri immobili. Comprare casa non è mai stato così veloce! Contattaci per la Tua richiesta immobiliare e prenoteremo la tua prima visita virtuale. Lo Studio Immobiliare di Barbara Cannavale grazie ad un team di esperti professionisti offre ai propri Clienti tutti servizi dedicati per l’acquisto del Vostro immobile in totale sicurezza. CONSULENZA TECNICA E LEGALE: Lo Studio si avvale dei migliori consulenti tecnici e legali, tramite i quali poter verificare lo stato urbanistico e catastale dell'immobile oggetto per un acquisto sicuro, tutelato e trasparente. ASSISTENZA FINANZIARIA E FISCALE: Offriamo a coloro che richiedono la nostra assistenza finanziaria, garantendo tassi di interesse in esclusiva e condizioni di contratto vantaggiose.

Tutti i dati sopra indicati e relativi all’immobile non costituiscono elemento contrattuale,
pertanto si invitano i gentili clienti a verificarli presso la nostra agenzia che ha inserito l’annuncio.

LEGGI TUTTO

CONDIVIDI SUI SOCIAL

DATI PRINCIPALI

Riferimento
635919
Contratto
Vendita
Tipologia
Villa
Superficie
210 mq
Locali
Più di 5
Camere da letto
4
Cucina
Abitabile
Bagni
4
Piano
1 °
Totale piani
3
Box/Posto auto
Singolo

CARATTERISTICHE

Ascensore

COSTI

Prezzo
€ 548.000,00

EFFICIENZA ENERGETICA

Stato
Abitabile
Anno costruzione
2002
Riscaldamento
Autonomo
Climatizzazione
Si
Classe energetica
F
IPE
351,00 kWh/m²a

A+

A

B

C

D

E

351,00 kWh/m²a | Classe energetica F

F

G

MAPPA

ANNUNCI SIMILI

VENDITA 20
€ 330.000
Villa in Vendita a Roma, Zona Infernetto
  • Più di 5 locali
  • 155 mq
  • 2 bagni