VENDITA VILLA PLURIFAMILIARE ZONA TORRE ANGELA VENDITA

Via Pietro Paolo Trompeo - Roma, Zona Torre Angela
€ 380.000
  • Più di 5 locali
  • 208 mq
  • 3 bagni

Villa in Vendita a Roma

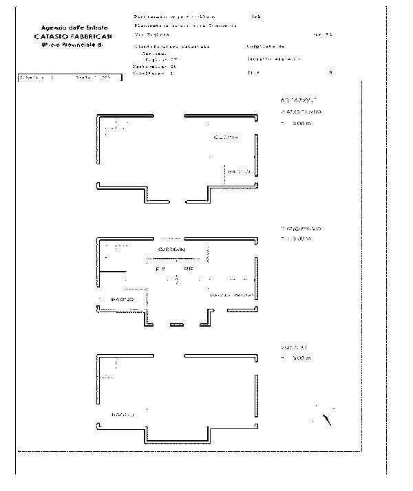
Rif. 1085 - Immobiliare Simonetti - In una zona tranquilla e verdeggiante, a due passi da un piacevole parco e nelle vicinanze della metropolitana linea C la Immobiliare Simonetti propone in vendita una porzione centrale di una villa plurifamiliare in ottime condizioni. La soluzione ripartita su tre livelli più seminterrato si presenta in ottime condizioni e pronta per essere abitata. Dotata di doppio giardino fronte e retro gode di un entrata al livello rialzato dove un piacevole terrazzo consente l'accesso all'interno dell'abitazione. Al piano terra troviamo un ampio e luminoso salone con cucina in muratura, impreziosito da due portafinestra che consentono l'uscita su due verande che permettono di scendere nei giardini di pertinenza. Attraverso una scala in peperino si giunge al primo piano dove sono presenti una camera da letto matrimoniale ed una camera singola, entrambe godono di uscita su due piacevoli terrazzi. Su questo piano troviamo anche un bagno finestrato con vasca. Il piano superiore, leggermente mansardato è occupato da un unica spaziosa camera da letto corredata di bagno finestrato.
Al piano seminterrato invece troviamo una spaziosa sala hobby con cucina in muratura e con entrata indipendente. Questo ambiente gode della presenza di un camino ed è perfetto per trascorrere momenti di convivialità con amici e parenti. Attualmente il box auto presente nel piano seminterrato è stato adibito a zona lavanderia e studio ma potrebbe facilmente essere ripristinato in quanto è tuttora presente la serranda elettrica. La proprietà è arricchita da grate di sicurezza, doppio accesso con portoni blindati, impianto di allarme, impianto di condizionamento, zanzariere.... Soluzione facilmente divisibile in due appartamenti indipendenti. Tutte le informazioni, foto e planimetrie contenute nel presente annuncio pubblicitario non costituiscono elemento contrattuale: potrebbero non rispecchiare fedelmente lo stato di fatto dell'immobile e andranno verificate prima di formulare la proposta di acquisto. L'agenzia immobiliare non risponde di eventuali discordanze. Le immagini o foto in pubblicità sono inserite a scopo illustrativo non costituiscono elemento contrattuale. Rif. 1085 - Immobiliare Simonetti

LEGGI TUTTO

CONDIVIDI SUI SOCIAL

DATI PRINCIPALI

Riferimento
642128
Contratto
Vendita
Tipologia
Villa
Superficie
208 mq
Locali
Più di 5
Camere da letto
3
Cucina
Angolo cottura
Bagni
3
Piano
2 °
Totale piani
3
Box/Posto auto
Singolo

CARATTERISTICHE

Ascensore

COSTI

Prezzo
€ 380.000,00

EFFICIENZA ENERGETICA

Stato
Ristrutturato
Anno costruzione
1990
Riscaldamento
Autonomo
Climatizzazione
Si
Classe energetica
C
IPE
175,00 kWh/m²a

A+

A

B

175,00 kWh/m²a | Classe energetica C

C

D

E

F

G

MAPPA

ANNUNCI SIMILI

VENDITA 20
€ 990.000
Villa in Vendita a Roma (Roma)
  • Più di 5 locali
  • 370 mq
  • 3 bagni
VENDITA 8
€ 499.000
Villa in Vendita a Roma (Roma)
  • Più di 5 locali
  • 408 mq
  • 2 bagni
VENDITA 20
€ 458.000
Villa in Vendita a Roma (Roma)
  • Più di 5 locali
  • 292 mq
  • 3 bagni