ROMA,VIGNA CLARA, Villino indipendente con giardino VENDITA

Piazza Riccardo Moizo 2b - Roma (Roma)
€ 680.000
  • Quadrilocale
  • 131 mq
  • 2 bagni

Villa in Vendita a Roma

ROMA – VIGNA CLARA | Villino indipendente con giardino, ristrutturato 2023
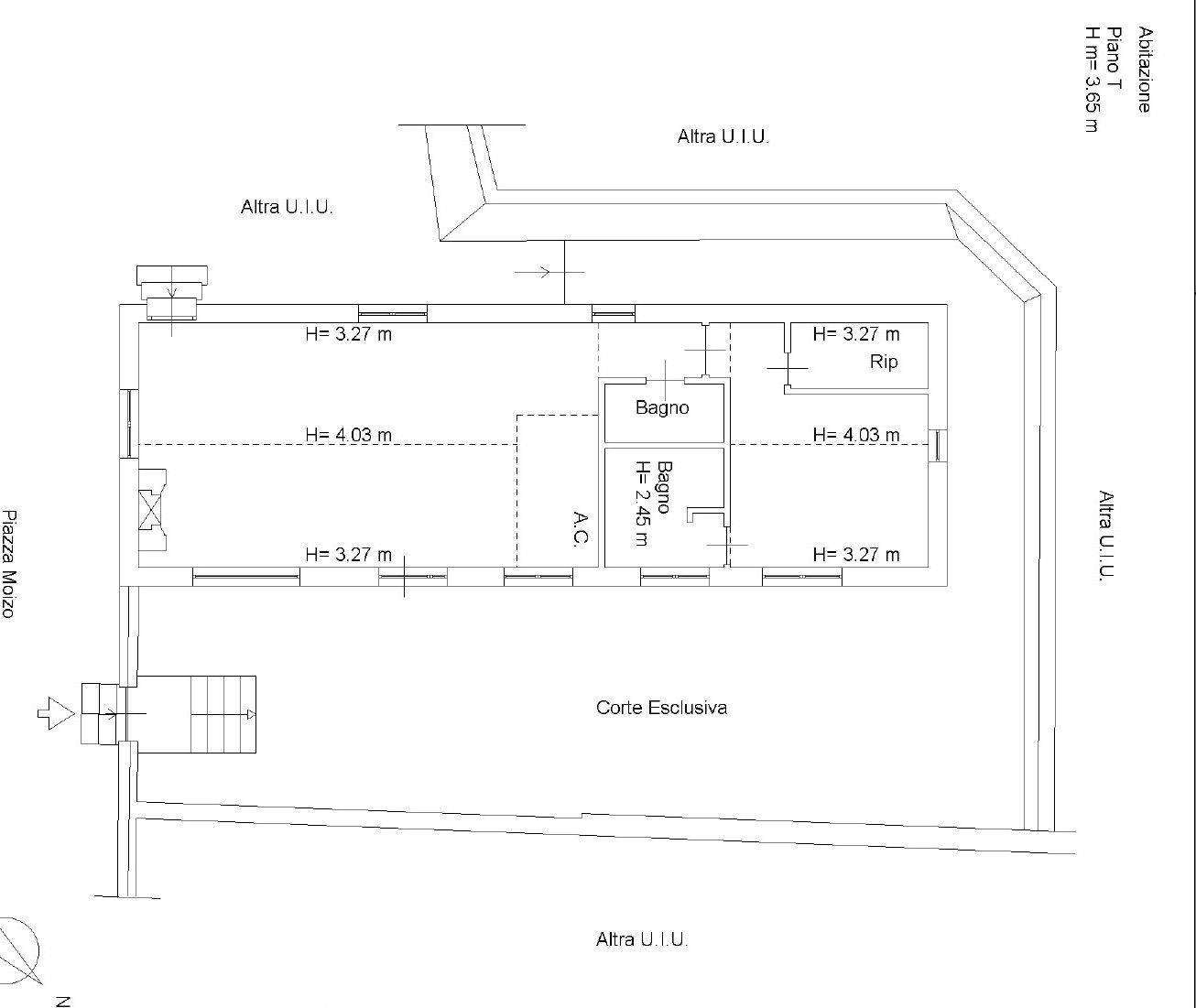
Nel cuore di Vigna Clara, in piazza Moizo, proponiamo villino indipendente di circa 95 mq con giardino privato di circa 120 mq, unico nel suo genere per livello di finiture, comfort e privacy.
L’immobile, oggetto di una radicale ristrutturazione nel 2023, si sviluppa su un unico livello ed è composto da:
• Ampio soggiorno con cucina all’americana a vista e zona pranzo
• Soppalco a vista completamente vivibile, grazie all’altezza dei soffitti
• Comodo ripostiglio
• Bagno di cortesia
• Camera matrimoniale con grande cabina armadio e bagno padronale en suite
I soffitti alti 4,30 m e le grandissime finestre rendono la casa estremamente luminosa e ariosa.
La ristrutturazione ha coinvolto ogni aspetto dell’immobile, con materiali e impianti di altissimo livello:
• Parquet Berti a listoni in rovere
• Cucina a induzione Alta Cucine
• Cappotto termico, coibentazione e isolamento di tetto e pavimenti
• Pannelli fotovoltaici con pompa di calore e sistema integrato per utilizzo gas
• Riscaldamento a pavimento in tutta la casa
• Aria condizionata centralizzata
• Impianto di videosorveglianza
• Sistema di decalcificazione dell’acqua
Splendido il giardino, riservatissimo, con doppio ingresso dalla strada, dotato di impianto di illuminazione e irrigazione automatici.
Nessuna spesa condominiale.
Soluzione ideale per chi cerca indipendenza, comfort moderno e uno spazio esterno privato in una delle zone più richieste di Roma Nord.

LEGGI TUTTO

CONDIVIDI SUI SOCIAL

DATI PRINCIPALI

Riferimento
636846
Contratto
Vendita
Tipologia
Villa
Superficie
131 mq
Locali
4
Camere da letto
1
Cucina
A vista
Bagni
2
Piano
Piano terra
Totale piani
1

CARATTERISTICHE

Ascensore

COSTI

Prezzo
€ 680.000,00

EFFICIENZA ENERGETICA

Stato
Ristrutturato
Riscaldamento
Autonomo
Climatizzazione
Si
Classe energetica
A
IPE
175,00 kWh/m²a

A+

175,00 kWh/m²a | Classe energetica A

A

B

C

D

E

F

G

MAPPA

ANNUNCI SIMILI

VENDITA 11
€ 893.250
Villa in Vendita a Roma (Roma)
  • Più di 5 locali
  • 457 mq
  • 2 bagni
VENDITA 11
€ 2.077.500
Villa in Vendita a Roma (Roma)
  • Più di 5 locali
  • 400 mq
  • 4 bagni
VENDITA 20
€ 1.590.000
Villa in Vendita a Roma (Roma)
  • Più di 5 locali
  • 422 mq
  • 4 bagni
VENDITA 13
€ 1.300.000
Villa in Vendita a Roma (Roma)
  • Più di 5 locali
  • 227 mq
  • 3 bagni