PORZIONE DI VILLA BIFAMILIARE NUOVA RISTRUTTURAZIONE 2025 VENDITA

Via del Cerro - Cerveteri (Roma)
€ 611.000
  • Più di 5 locali
  • 180 mq
  • 3 bagni

Villa in Vendita a Cerveteri

RESIDENZA DI PRESTIGIO: PORZIONE DI VILLA BIFAMILIARE NUOVA RISTRUTTURAZIONE 2025 - CLASSE ENERGETICA A
Unità Immobiliare: Porzione di villa bifamiliare disposta su due livelli fuori terra, oggetto di una meticolosa e completa ristrutturazione architettonica terminata nel 2025. Progetto e arredo curati da studio di architettura, garantendo standard estetici e funzionali di altissimo livello.
Lifestyle e Servizi Condominiali
L'immobile è inserito in un contesto condominiale che offre un'esperienza abitativa unica, con accesso a dotazioni esclusive:
• Piscina condominiale: Vaso natatorio per momenti di svago e relax.
• Campo da tennis: Struttura sportiva ad uso riservato.
Articolazione Interna e Distribuzione degli Spazi
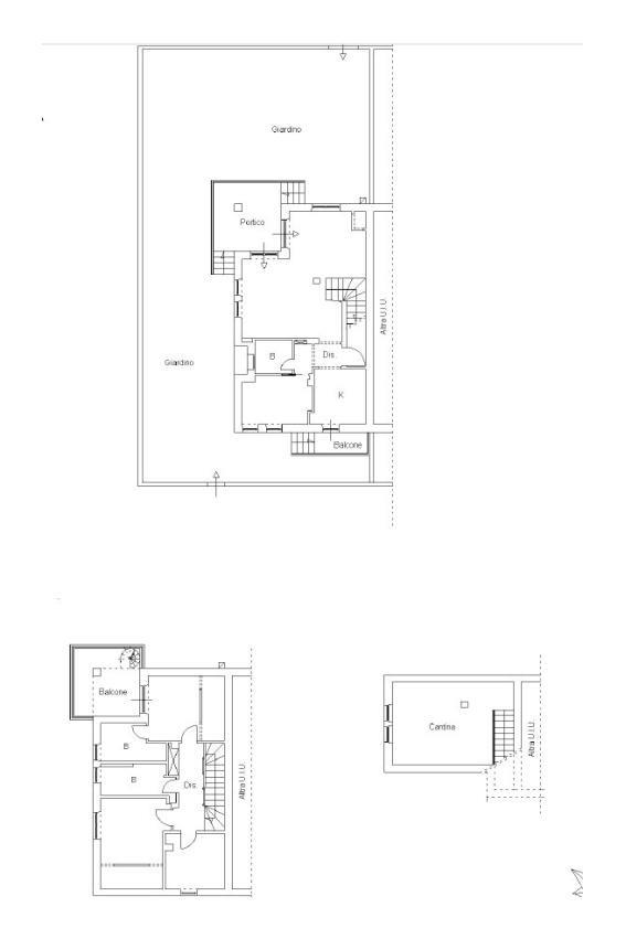
La residenza è strutturata su tre livelli, ottimizzando la fruibilità e la separazione tra le zone giorno, notte e relax:
Livello -1 (Zona Wellness/Servizi):
• Ampia Cantina/Storage: Spazio multifunzionale ad elevata capienza.
• Area Relax: Locale dedicato con installazione di sauna, progettato per il benessere personale.
Livello 1 (Zona Giorno e Ospiti):
• Salone di Rappresentanza: Vasto ambiente caratterizzato da un camino elemento di design e comfort termico.
• Cucina Abitabile: Spazio dining separato e funzionale
• Servizio Igienico: Bagno completo con box doccia.
• Camera per gli Ospiti: Vano versatile, ideale come studio o camera aggiuntiva.

Livello 2 (Zona Notte Padronale):
• Disimpegno: Ottimizzazione dello spazio per la privacy e locale lavanderia.
• Master Room En-Suite: Camera padronale, completa di cabina armadio dedicata e bagno privato (in suite), configurando un'area intima e dotata di balcone con scala di accesso alla terrazza
• Seconda Camera con Cabina Armadio: Ulteriore camera dotata di ampia cabina armadio walk-in.
• Servizio Igienico: ampio bagno completo con doccia walk-in.
• Terza camera di dimensioni minori
Spazi Esterni e Punti di Forza
• Giardino Privato: Estensione su tre lati, curato e riservato.
• Platform Esterno: Area pavimentata e attrezzata, ideale per l'installazione di un tavolo conviviale outdoor.
• Cantina per Attrezzi: Spazio di servizio esterno per l'organizzazione degli strumenti da giardino.
• Doccia Esterna: Funzionalità aggiuntiva per l'uso post-piscina o estivo.
• Terrazzo di Copertura: Terrazzo solarium ad uso esclusivo, con potenziale per essere attrezzato come roof garden panoramico.
Dotazioni Tecnologiche ed Efficienza Energetica
• Climatizzazione Avanzata: Impianto di condizionamento ad aria canalizzata con tecnologia inverter caldo-freddo in ogni stanza, garantendo un comfort termico omogeneo, alta efficienza energetica e impatto visivo nullo.
• Efficienza Idrotermica: Installazione di pannelli solari termici per la produzione di acqua calda sanitaria, massimizzando il risparmio energetico.
• Sicurezza e Isolamento:
o Persiane Blindate: Massima protezione anti-intrusione.
o Zanzariere: Completa copertura su tutte le aperture.
o Serramenti Drutex: Infissi di alta gamma in PVC con doppio vetro camera, che assicurano un eccellente isolamento termo-acustico e un'ottimale tenuta all'aria.
o Video camere di sorveglianza.
Questa proprietà rappresenta una soluzione abitativa di altissimo profilo, dove il lusso degli spazi interni si fonde con l'esclusività dei servizi condominiali e l'avanguardia delle soluzioni impiantistiche post-ristrutturazione.
Per maggiori info e visite 06.87652705 o geimimmobiliare@gmail.com

LEGGI TUTTO

CONDIVIDI SUI SOCIAL

DATI PRINCIPALI

Riferimento
637138
Contratto
Vendita
Tipologia
Villa
Superficie
180 mq
Locali
Più di 5
Camere da letto
4
Cucina
Abitabile
Bagni
3
Piano
Piano terra
Totale piani
3

CARATTERISTICHE

Ascensore

COSTI

Prezzo
€ 611.000,00
Spese condominiali
€ 1,00 / mese

EFFICIENZA ENERGETICA

Stato
Ristrutturato
Anno costruzione
1990
Riscaldamento
Autonomo
Climatizzazione
Si
Classe energetica
A
IPE
175,00 kWh/m²a

A+

175,00 kWh/m²a | Classe energetica A

A

B

C

D

E

F

G

MAPPA

ANNUNCI SIMILI

VENDITA 20
€ 395.000
Villa in Vendita a Cerveteri (Roma)
  • Più di 5 locali
  • 185 mq
  • 3 bagni
VENDITA 20
€ 105.000
Villa in Vendita a Cerveteri (Roma)
  • Più di 5 locali
  • 115 mq
  • 2 bagni
VENDITA 14
€ 490.000
Villa in Vendita a Cerveteri (Roma)
  • Più di 5 locali
  • 705 mq
  • 3 bagni