NUOVA COSTRUZIONE - VILLINI A SCHIERA CON PISCINA VENDITA

Via Niccolò Paganini - Fiumicino, Frazione Focene
€ 320.000
  • Trilocale
  • 105 mq
  • 2 bagni

Villetta a schiera in Vendita a Fiumicino

COMPLESSO RESIDENZIALE DI 3 VILLINI A SCHIERA CON PISCINA E GIARDINO --- ULTIME 2 DISPONIBILITA' CAPOSCHIERA LATO OVEST/NORD/SUD E CENTRALE LATO SUD/NORD--- NUOVA COSTRUZIONE --- INIZIO LAVORI GENNAIO 2026 --- POSSIBILITA' DI MODIFICARE E PERSONALIZZARE GLI INTERNI --- CONSEGNA 12 MESI --- A POCHI PASSI DAL MARE ---
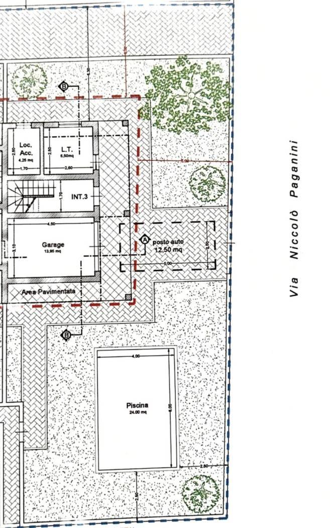
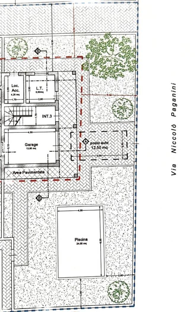
Focene nord, tra la riserva del WWF e il mare, proponiamo la vendita di 2 villini, caposchiera e centrale, di nuova costruzione con CONSEGNA 12 mesi. L'immobile posto su tre livelli fuori terra è composto al piano terra da piloty rifinito di box auto, locale tecnico, locale accessorio e vano scala. Il piano primo, accessibile da comoda scala interna al piloty si compone di disimpegno d'ingresso, soggiorno con angolo cottura e uscita su balcone vista mare, un servizio, un ripostiglio e camera matrimoniale con uscita su secondo balcone con vista riserva del WWF. Il piano secondo, e ultimo, accessibile da scala a chiocciola dal balcone del soggiorno, ospita una bellissima terrazza calpestabile e impianti fotovoltaici e solari. Completano la proprietà giardino perimetrale semi mattonato di circa 200 mq e una piscina di 24 mq. E' possibile apportare modifiche in fase di costruzione e scegliere le rifiniture interne. Il complesso residenziale, composto da 3 villini a schiera, sorge tra la riserva del WWF e il mare, circondato dal verde, nella zona più tranquilla di Focene, in un contesto di assoluto valore strategico distinguendosi per il disegno moderno e funzionale; trovandosi a pochi metri dal lungomare dispone dell'assoluta vicinanza con gli stabilimenti balneari, ristoranti, bar, negozi commerciali. A PARTIRE DA €.320.000. Per ulteriori informazioni o per prenotare una visita Agenzia Immobiliare di Maria Vanacore, Viale di Focene n.431 - tel. 06.47548897 -cell. 328.6982476 / 333.3447711. Tutte le informazioni contenute nel presente annuncio sono puramente indicative e le stesse non costituiscono elemento contrattuale. L’agenzia Immobiliare di Maria Vanacore si trova nel comune di Fiumicino (RM), località Focene, da più di 20 anni. Vieni a trovarci nella nostra sede in Viale di Focene n.431. Vi aspettiamo.

LEGGI TUTTO

CONDIVIDI SUI SOCIAL

DATI PRINCIPALI

Riferimento
644039
Contratto
Vendita
Tipologia
Villetta a schiera
Superficie
105 mq
Locali
3
Camere da letto
2
Cucina
Angolo cottura
Bagni
2
Piano
1 °
Totale piani
2
Box/Posto auto
Singolo

CARATTERISTICHE

Ascensore

COSTI

Prezzo
€ 320.000,00

EFFICIENZA ENERGETICA

Stato
Nuovo/In costruzione
Riscaldamento
Autonomo
Climatizzazione
Si
Classe energetica
A
IPE
175,00 kWh/m²a

A+

175,00 kWh/m²a | Classe energetica A

A

B

C

D

E

F

G

MAPPA

ANNUNCI SIMILI

VENDITA 14
€ 265.000
Villetta a schiera in Vendita a Fiumicino (Roma)
  • Trilocale
  • 80 mq
  • 2 bagni
VENDITA 18
€ 310.000
Villetta a schiera in Vendita a Fiumicino, Frazione Fregene
  • Più di 5 locali
  • 100 mq
  • 2 bagni
VENDITA 20
€ 645.000
Villetta a schiera in Vendita a Fiumicino, Frazione Fregene
  • Più di 5 locali
  • 159 mq
  • 2 bagni
VENDITA 20
€ 440.000
Villetta a schiera in Vendita a Fiumicino (Roma)
  • Più di 5 locali
  • 200 mq
  • 4 bagni
VENDITA 20
€ 290.000
Villetta a schiera in Vendita a Fiumicino, Frazione Fregene
  • Quadrilocale
  • 80 mq
  • 2 bagni
VENDITA 20
€ 430.000
Villetta a schiera in Vendita a Fiumicino, Frazione Fregene
  • Quadrilocale
  • 90 mq
  • 3 bagni