Focene, villa a schiera ottimo stato, accesso alla spiaggia VENDITA

Viale di Focene - Fiumicino, Frazione Focene
€ 330.000
  • Più di 5 locali
  • 130 mq
  • 3 bagni

Villetta a schiera in Vendita a Fiumicino

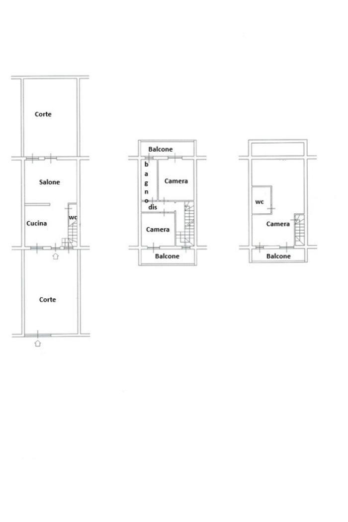
Focene nord, Viale di Focene, villa a schiera centrale, tre livelli fuori terra, ottimo stato, luminosa con doppia esposizione, vista mare, accesso diretto in spiaggia, composta da salone con camino, cucina a vista, 3 ampie camere, 2 disimpegni (1 con armadio a muro), 3 bagni, soppalco, 3 balconi, corte privata pavimentata di mq 80 totali divisa in fronte e retro, nella parte frontale possibilità di parcheggiare 2 auto, entrata carrabile privata.
L'accesso al complesso residenziale è tramite un cancello pedonale e carrabile in area comune.
Termoautonomo, inferriate, persiane, portone blindato, tende da sole bianche in pvc plastico nautico e alluminio, doccia esterna, infissi in legno con doppi vetri.

euro 330.000,00

Per informazioni e appuntamenti contattare l'agenzia Gabetti Franchising di Fiumicino, Via Fiumara 26d -- tel. 06/6584601- WAPP 351/5106022 - - dal lunedì al venerdì 9.00-13.00 / 15.30-19.30 e sabato mattina 9.00-13.00. www.******

LEGGI TUTTO

CONDIVIDI SUI SOCIAL

DATI PRINCIPALI

Riferimento
628137
Contratto
Vendita
Tipologia
Villetta a schiera
Superficie
130 mq
Locali
5
Camere da letto
3
Cucina
A vista
Bagni
3
Piano
Piano terra
Totale piani
3
Box/Posto auto
Doppio

CARATTERISTICHE

Ascensore

COSTI

Prezzo
€ 330.000,00
Spese condominiali
€ 50,00 / mese

EFFICIENZA ENERGETICA

Stato
Ristrutturato
Anno costruzione
2003
Riscaldamento
Autonomo
Classe energetica
F
IPE
145,00 kWh/m²a

A+

A

B

C

D

E

145,00 kWh/m²a | Classe energetica F

F

G

MAPPA

ANNUNCI SIMILI

VENDITA 20
€ 250.000
Villetta a schiera in Vendita a Fiumicino, Frazione Focene
  • Più di 5 locali
  • 120 mq
  • 3 bagni
VENDITA 18
€ 310.000
Villetta a schiera in Vendita a Fiumicino, Frazione Fregene
  • Più di 5 locali
  • 100 mq
  • 2 bagni
VENDITA 20
€ 645.000
Villetta a schiera in Vendita a Fiumicino, Frazione Fregene
  • Più di 5 locali
  • 159 mq
  • 2 bagni
VENDITA 20
€ 440.000
Villetta a schiera in Vendita a Fiumicino (Roma)
  • Più di 5 locali
  • 200 mq
  • 4 bagni
VENDITA 20
€ 560.000
Villetta a schiera in Vendita a Fiumicino (Roma)
  • Più di 5 locali
  • 156 mq
  • 4 bagni
VENDITA 11
€ 335.000
Villetta a schiera in Vendita a Fiumicino, Frazione Isola Sacra
  • Più di 5 locali
  • 130 mq
  • 1 bagno
VENDITA 11
€ 325.000
Villetta a schiera in Vendita a Fiumicino, Frazione Isola Sacra
  • Più di 5 locali
  • 127 mq
  • 1 bagno