NEMI - Consorzio "Parco dei Lecci" VENDITA

Via dei Castagni - Nemi (Roma)
€ 490.000
  • Più di 5 locali
  • 193 mq
  • 4 bagni

Villa in Vendita a Nemi

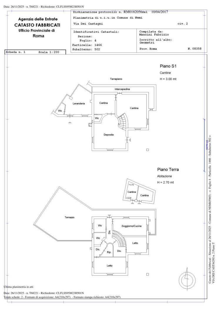
Villa unifamiliare di nuova costruzione su due livelli fuori terra con ampio giardino di 2.000 mq e doppio ingresso carrabile.

Al piano terra si accede a un elegante salone, uno studio, un bagno e una splendida cucina di circa 35 mq impreziosita da un camino. In adiacenza al corpo principale è presente una dependance di circa 26 mq dotata di angolo cottura e bagno, ideale per ospiti o per uso indipendente.

Al primo piano si trovano tre camere da letto, due bagni, un armadio a muro e una cabina armadio. Tutti gli ambienti sono caratterizzati da uno spettacolare soffitto con capriate in castagno a vista.
La conformazione del terreno, leggermente scosceso, permette inoltre ad alcune stanze del primo piano di avere un accesso diretto al giardino.

La proprietà è stata recentemente ristrutturata con grande cura e si presenta in condizioni impeccabili, senza necessità di ulteriori interventi.

Completano l'immobile un box auto di circa 40 mq.

Dettagli: Tutta la casa nonché la dependance sono servite da riscaldamento a pavimento + fancoil e condizionatori caldo/freddo; nella cucina c'è anche in aggiunta una stufa a pellet.
Nel giardino, è presente un locale tecnico con tutti gli impianti ed i pannelli solari per la produzione dell'acqua calda, un ripostiglio esterno ed un box di circa 37 mq.
Il terreno scosceso fa si che anche una parte del piano primo abbia l'uscita sul giardino.
Sotto il piazzale è presente una cisterna di circa 20 mq profonda metri 4 dove viene accumulata l'acqua piovana utile per l'impianto di irrigazione.
Per quanto riguarda le utenze, per il gas è presente un serbatoio GPL nelle immediate vicinanze di uno degli ingressi carrabili, l'acqua invece è diretta.
La casa è allacciata alla rete fognante, la strada di accesso è in fase di rifacimento dopo che è stato rifatto l'impianto di illuminazione, di fronte all'ingresso della casa c'è il passaggio pedonale, lungo 400 mt che porta direttamente al paese percorrendo un sentiero panoramico completamente restaurato ed illuminato con vista lago.

LEGGI TUTTO

CONDIVIDI SUI SOCIAL

DATI PRINCIPALI

Riferimento
641834
Contratto
Vendita
Tipologia
Villa
Superficie
193 mq
Locali
5
Camere da letto
3
Cucina
Abitabile
Bagni
4
Piano
1 °
Totale piani
2
Box/Posto auto
Doppio

CARATTERISTICHE

Ascensore

COSTI

Prezzo
€ 490.000,00
Spese condominiali
€ 15,00 / mese

EFFICIENZA ENERGETICA

Stato
Ristrutturato
Riscaldamento
Autonomo
Climatizzazione
Si
Classe energetica
G
IPE
351,00 kWh/m²a

A+

A

B

C

D

E

F

351,00 kWh/m²a | Classe energetica G

G

MAPPA

ANNUNCI SIMILI

VENDITA 20
€ 265.000
Villa in Vendita a Nemi (Roma)
  • Più di 5 locali
  • 210 mq
  • 4 bagni
VENDITA 20
€ 520.000
Villa in Vendita a Nemi (Roma)
  • Più di 5 locali
  • 300 mq
  • 3 bagni
VENDITA 20
€ 329.000
Villa in Vendita a Ariccia (Roma)
  • Più di 5 locali
  • 225 mq
  • 2 bagni
VENDITA 10
€ 520.000
Villa in Vendita a Ariccia (Roma)
  • Più di 5 locali
  • 206 mq
  • 3 bagni
VENDITA 20
€ 315.000
Villa in Vendita a Ariccia (Roma)
  • Più di 5 locali
  • 193 mq
  • 3 bagni