VILLA UNIFAMILIARE NEMI CON POSSIBILITA' DI RENT TO BUY VENDITA

Via dei Latini - Nemi (Roma)
€ 385.000
  • Più di 5 locali
  • 490 mq
  • 3 bagni

Villa in Vendita a Nemi

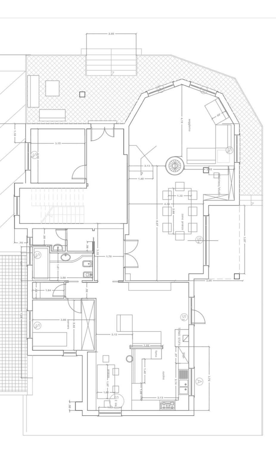
Rif. 1258 - Immobiliare Simonetti - In un contesto signorile all’interno della prestigiosa area protetta del Parco Regionale Dei Castelli Romani, nelle vicinanze di tutti i servizi primari la Immobiliare Simonetti propone in vendita una villa unifamiliare, suddivisa in tre piani che possono essere gestiti anche in maniera completamente autonoma, pensata per offrire spazi ampi e la possibilità di essere facilmente suddivisa in due unità separate.
L'accesso alla villa avviene al piano rialzato, un comodo terrazzo ci accoglie e ci prepara all'ingresso. Questo livello è ripartito in salone doppio impreziosito dalla presenza di un camino e da un ampia porta finestra che ci consente l'uscita in giardino. A seguire troviamo una cucina abitabile corresata da un tinello e da una dispensa, una camera, uno studio e per finire un bagno finestrato.
una comda scala ci conduce al piano primo dove è collocata la zona notte, composta da una camera matrimoniale con bagno interno, altre due camere, una cameretta, un locale tecnico con uscita su un balcone ed un piacevole terrazzo.Un ultimo bagno completa questa parte della casa. Per ultimo al piano seminterrato abbiamo una ampia e funzionale sala hobby, un altro locale tecnico ed un box di grandi dimensioni, rendendo la villa ancora più funzionale. La proprietà è arricchita da un giardino perimetrale di ben 1500 mq. Tutte le informazioni, foto e planimetrie contenute nel presente annuncio pubblicitario non costituiscono elemento contrattuale: potrebbero non rispecchiare fedelmente lo stato di fatto dell'immobile e andranno verificate prima di formulare la proposta di acquisto. L'agenzia immobiliare non risponde di eventuali discordanze. Le immagini o foto in pubblicità sono inserite a scopo illustrativo non costituiscono elemento contrattuale. Rif: 1258 - Immobiliare Simonetti -

LEGGI TUTTO

CONDIVIDI SUI SOCIAL

DATI PRINCIPALI

Riferimento
642146
Contratto
Vendita
Tipologia
Villa
Superficie
490 mq
Locali
Più di 5
Camere da letto
Più di 5
Cucina
Abitabile
Bagni
3
Piano
Piano terra
Totale piani
3
Box/Posto auto
Doppio

CARATTERISTICHE

Ascensore

COSTI

Prezzo
€ 385.000,00

EFFICIENZA ENERGETICA

Stato
Da ristrutturare
Anno costruzione
1970
Riscaldamento
Autonomo
Classe energetica
G
IPE
175,00 kWh/m²a

A+

A

B

C

D

E

F

175,00 kWh/m²a | Classe energetica G

G

MAPPA

ANNUNCI SIMILI

VENDITA 20
€ 265.000
Villa in Vendita a Nemi (Roma)
  • Più di 5 locali
  • 210 mq
  • 4 bagni
VENDITA 20
€ 650.000
Villa in Vendita a Ariccia (Roma)
  • Più di 5 locali
  • 470 mq
  • 4 bagni
VENDITA 20
€ 379.000
Villa in Vendita a Ariccia (Roma)
  • Più di 5 locali
  • 285 mq
  • 4 bagni