MARCO SIMONE - SETTEVILLE VENDITA

Via Trevi nel Lazio - Guidonia Montecelio (Roma)
€ 199.000
  • Quadrilocale
  • 120 mq
  • 3 bagni

Villetta a schiera in Vendita a Guidonia Montecelio

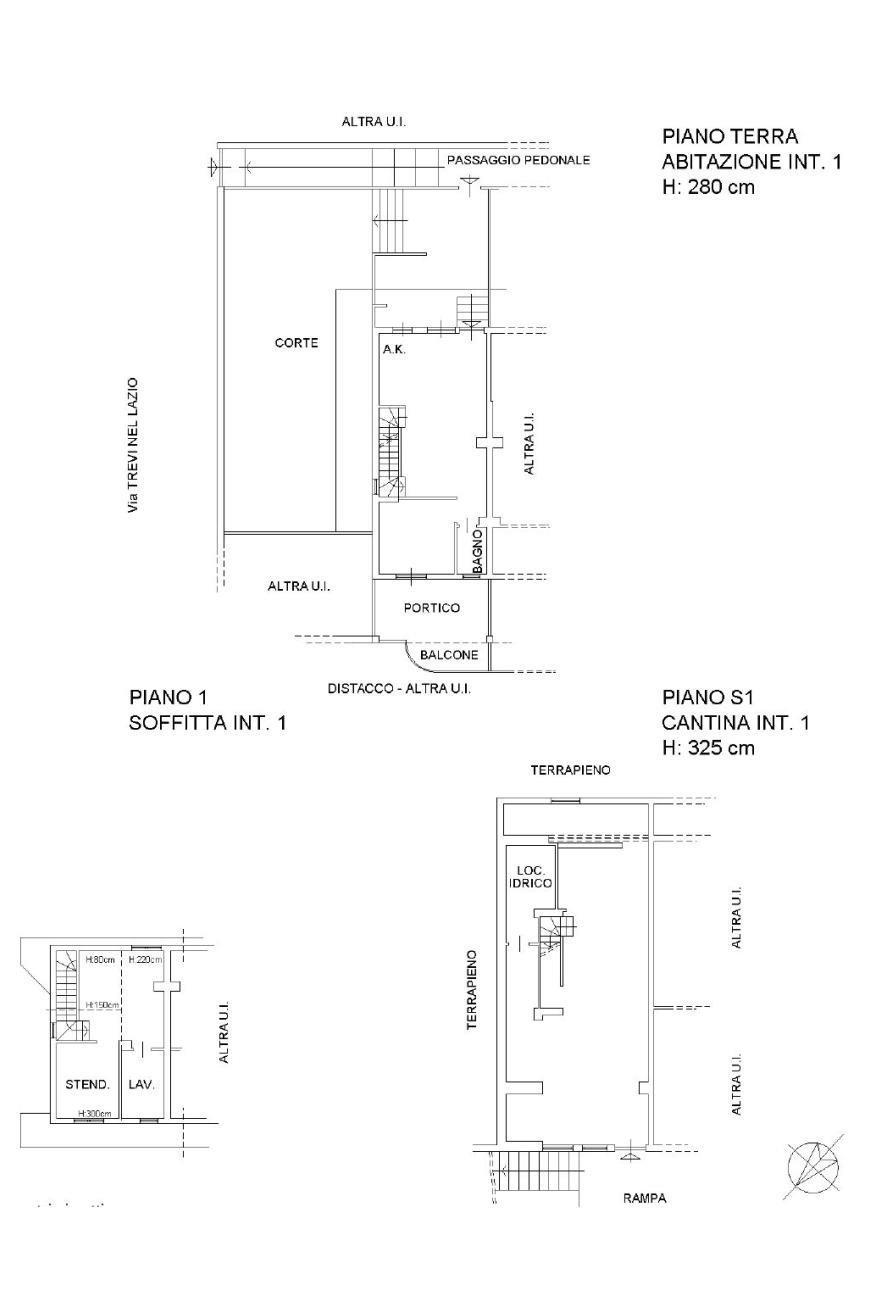
In contesto residenziale proponiamo la vendita di un villino capo schiera con giardino angolare ed ingresso carrabile e pedonale con possibilità di parcheggiare una comoda auto sul giardino di proprietà di circa 150 mq.
Piano terra composto da: soggiorno con angolo cottura, camera, bagno con finestra.
Piano primo: due camerette ed un comodo bagno con finestra.
Piano s1: ampia sala hobby con bagno.

Classe Energetica: G RIF. T412 EURO 199.000

Siamo a disposizione per fornirVi maggiori informazioni e per fissare un sopralluogo sull'immobile in oggetto, se è possibile con un minimo di preavviso, al nostro numero telefonico 06.52201140 oppure al nostro indirizzo email solocasagroup@gmail.com. Siamo reperibili dal lunedì al venerdì dalle ore 9.00 alle ore 13.00 e dalle 15.30 alle 19.30, mentre il sabato dalle ore 9.00 alle ore 13.00. Per ulteriori foto e dettagli visitate il nostro sito internet www.solocasaimmobiliare.it.

LEGGI TUTTO

CONDIVIDI SUI SOCIAL

DATI PRINCIPALI

Riferimento
636917
Contratto
Vendita
Tipologia
Villetta a schiera
Superficie
120 mq
Locali
4
Camere da letto
3
Cucina
Angolo cottura
Bagni
3
Piano
1 °
Totale piani
3
Box/Posto auto
Singolo

CARATTERISTICHE

Ascensore

COSTI

Prezzo
€ 199.000,00

EFFICIENZA ENERGETICA

Stato
Abitabile
Anno costruzione
2012
Riscaldamento
Autonomo
Classe energetica
G
IPE
175,00 kWh/m²a

A+

A

B

C

D

E

F

175,00 kWh/m²a | Classe energetica G

G

MAPPA

ANNUNCI SIMILI

VENDITA 20
€ 275.000
Villetta a schiera in Vendita a Guidonia Montecelio (Roma)
  • Più di 5 locali
  • 180 mq
  • 3 bagni
VENDITA 20
€ 229.000
Villetta a schiera in Vendita a Guidonia Montecelio (Roma)
  • Più di 5 locali
  • 160 mq
  • 3 bagni
VENDITA 8
€ 530.000
Villetta a schiera in Vendita a Guidonia Montecelio (Roma)
  • Più di 5 locali
  • 150 mq
  • 3 bagni