ISOLA SACRA: VILLA RECENTE COSTRUZIONE CON GIARDINO E P.AUTO VENDITA

Via Monte Cauriol - Fiumicino, Frazione Isola Sacra
€ 325.000
  • Quadrilocale
  • 172 mq
  • 3 bagni

Villetta a schiera in Vendita a Fiumicino

ISOLA SACRA: VILLA CAPOSCHIERA RECENTE COSTRUZIONE CON GIARDINO E POSTO AUTO DI PERTINENZA

La 3Q Immobiliare di Fiumicino ti propone in vendita una stupenda villa caposchiera di 170mq commerciali e 150mq calpestabili, con un giardino di 160mq su 3 lati metà mattonato e metà con prato, un posto auto interno coperto ed un portico di 10mq dove potersi rilassare.
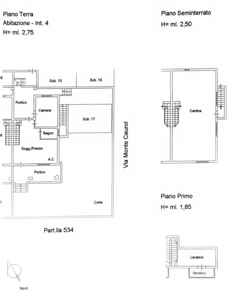
L'immobile è stato costruito nel 2006, quindi si tratta di una recente costruzione, tenuta in ottimo stato interno ed esterno e si trova in via Monte Cauriol, zona comoda, tranquilla, strategica e vicina a tutti i servizi ed attività principali.
La villa è divisa in 3 livelli, ha un doppio ingresso, quindi può essere anche un'ottima soluzione per due famiglie, ed al suo interno è così composta; piano seminterrato di 75mq con un amplio soggiorno con angolo cottura e penisola, un bagno finestrato ed un ripostiglio; piano terra rialzato con disimpegno, una camera da letto matrimoniale con una cabina armadio di pertinenza, una cameretta, un bagno finestrato con cabina doccia e hydro massaggio; infine al piano primo abbiamo una camera da letto con un sottotetto utilizzato come magazzino, un bagno finestrato con cabina doccia ed un balcone di pertinenza.
L'immobile presenta le seguenti caratteristiche: portone blindato, impianto di allarme, stufa a pellet, caldaia autonoma, condizionatori nelle stanze, radiatori, porte ed infissi doppio vetro in legno, scale in marmo, ringhiere in vetro, inferriate, zanzariere e tante altre comodità che una recente costruzione può avere.
Non perdere questa grande occasione di acquistare una villa caposchiera con ampli spazi interni ed esterni, tenuta in ottimo stato e perfetta sia per una che per due famiglie, nella zona di Isola Sacra, in via Monte Cauriol. Non esitare a contattarci per maggiori informazioni e per fissare un appuntamento con noi.

LEGGI TUTTO

CONDIVIDI SUI SOCIAL

DATI PRINCIPALI

Riferimento
639851
Contratto
Vendita
Tipologia
Villetta a schiera
Superficie
172 mq
Locali
4
Camere da letto
3
Cucina
Abitabile
Bagni
3
Piano
1 °
Totale piani
2
Box/Posto auto
Singolo

CARATTERISTICHE

Ascensore

COSTI

Prezzo
€ 325.000,00

EFFICIENZA ENERGETICA

Stato
Ristrutturato
Anno costruzione
2006
Riscaldamento
Autonomo
Climatizzazione
Si
Classe energetica
F
IPE
175,00 kWh/m²a

A+

A

B

C

D

E

175,00 kWh/m²a | Classe energetica F

F

G

MAPPA

ANNUNCI SIMILI

VENDITA 11
€ 315.000
Villetta a schiera in Vendita a Fiumicino, Frazione Isola Sacra
  • Quadrilocale
  • 102 mq
  • 1 bagno
VENDITA 11
€ 335.000
Villetta a schiera in Vendita a Fiumicino, Frazione Isola Sacra
  • Più di 5 locali
  • 130 mq
  • 1 bagno
VENDITA 11
€ 325.000
Villetta a schiera in Vendita a Fiumicino, Frazione Isola Sacra
  • Più di 5 locali
  • 127 mq
  • 1 bagno
VENDITA 20
€ 275.000
Villetta a schiera in Vendita a Fiumicino (Roma)
  • Quadrilocale
  • 151 mq
  • 2 bagni
VENDITA 19
€ 295.000
Villetta a schiera in Vendita a Fiumicino (Roma)
  • Più di 5 locali
  • 140 mq
  • 3 bagni
VENDITA 20
€ 250.000
Villetta a schiera in Vendita a Fiumicino, Frazione Focene
  • Più di 5 locali
  • 120 mq
  • 3 bagni
VENDITA 18
€ 310.000
Villetta a schiera in Vendita a Fiumicino, Frazione Fregene
  • Più di 5 locali
  • 100 mq
  • 2 bagni