Infernetto, villa quadrifamiliare di ampia metratura VENDITA

Via Antonio Cifra - Roma, Zona Infernetto
€ 460.000
  • Trilocale
  • 203 mq
  • 4 bagni

Villa in Vendita a Roma

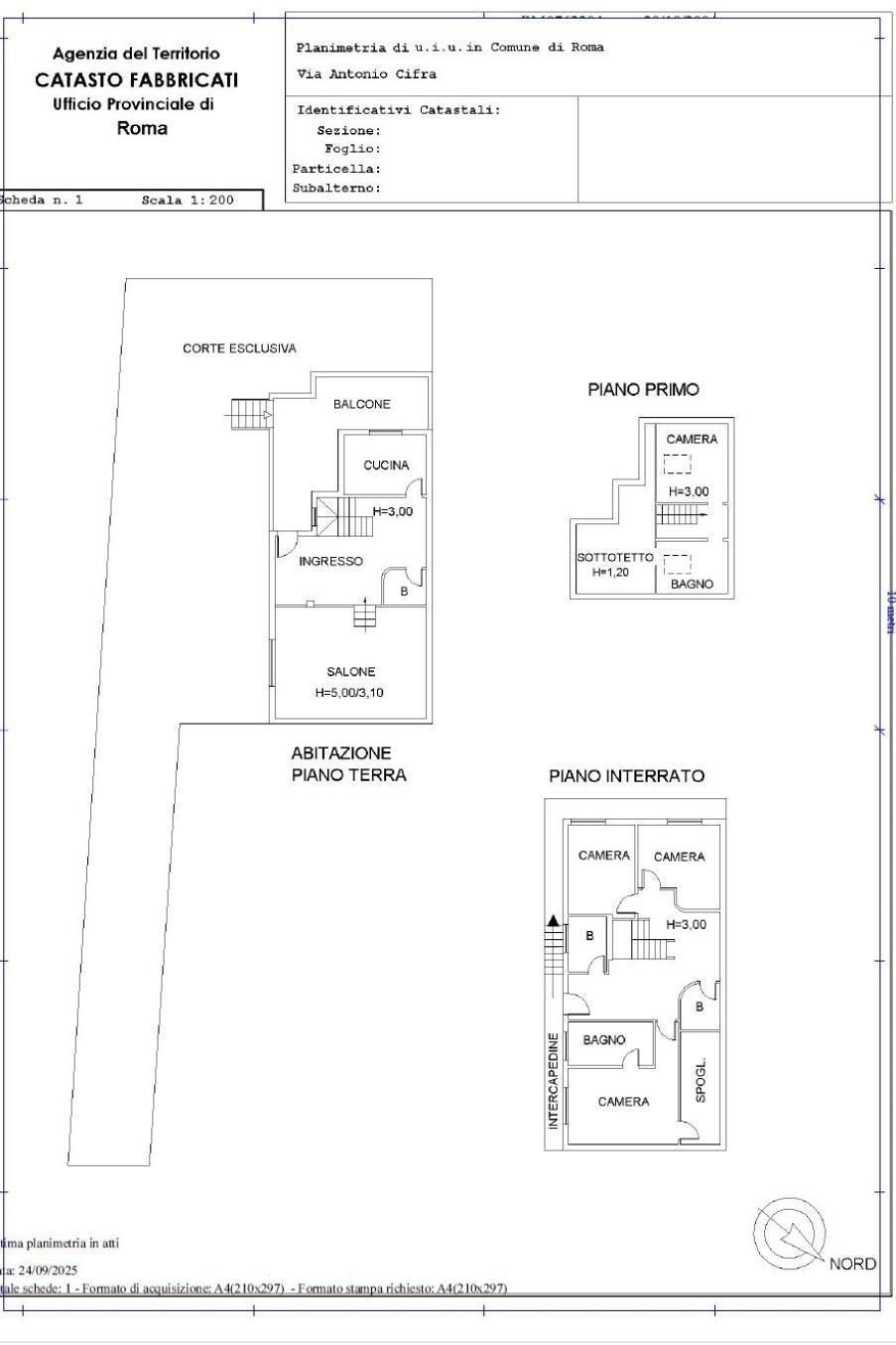
Infernetto, proponiamo in vendita una bellissima porzione di villa quadrifamiliare di circa 200 mq su tre livelli, composta al piano terra da un ampio patio abitabile, ingresso, salone molto grande con camino e soffitti alti con travi in legno, cucina separata ed un bagno. Al primo piano una camera da letto, un bagno ed un sottotetto con ripostiglio, mentre al piano seminterrato totalmente sbancato e con accesso indipendente, troviamo una camera patronale con bagno en suite ed una cabina armadio, altre due ampie camere da letto ed un bagno con doccia.
La villa è molto luminosa, in quanto gode di una tripla esposizione, si trova in ottimo stato, con rifiniture in legno stile casale, infissi in pvc con doppi vetri, inferriate, zanzariere, impianto di allarme e di climatizzazione.
Completa la proprietà un giardino di circa 250 mq con forno barbecue, possibilità di parcheggiare all'interno fino a n.3 auto.

*Il contenuto dell’annuncio pubblicitario (informazioni e planimetrie) ha valore puramente indicativo e non costituisce elemento contrattuale.

LEGGI TUTTO

CONDIVIDI SUI SOCIAL

DATI PRINCIPALI

Riferimento
634480
Contratto
Vendita
Tipologia
Villa
Superficie
203 mq
Locali
3
Camere da letto
2
Cucina
Abitabile
Bagni
4
Piano
Piano terra
Totale piani
3
Box/Posto auto
Doppio

CARATTERISTICHE

Ascensore

COSTI

Prezzo
€ 460.000,00

EFFICIENZA ENERGETICA

Stato
Ristrutturato
Anno costruzione
2002
Riscaldamento
Autonomo
Climatizzazione
Si
Classe energetica
G
IPE
175,00 kWh/m²a

A+

A

B

C

D

E

F

175,00 kWh/m²a | Classe energetica G

G

MAPPA

ANNUNCI SIMILI

VENDITA 20
€ 790.000
Villa in Vendita a Roma, Zona Infernetto
  • Più di 5 locali
  • 330 mq
  • 3 bagni
VENDITA 10
€ 750.000
Villa in Vendita a Roma, Zona Infernetto
  • Più di 5 locali
  • 360 mq
  • 4 bagni
VENDITA 20
€ 880.000
Villa in Vendita a Roma, Zona Infernetto
  • Più di 5 locali
  • 585 mq
  • 4 bagni