Infernetto, grande villa bifamiliare con ampio giardino VENDITA

Via Nicola De Giosa - Roma, Zona Infernetto
€ 690.000
  • Più di 5 locali
  • 400 mq
  • 4 bagni

Villa in Vendita a Roma

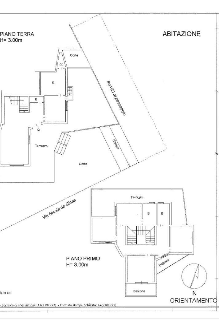
Infernetto, precisamente in Via Nicola de Giosa, proponiamo la vendita di una grande villa bifamiliare sviluppata su circa 400 mq su tre livelli, così composta:
PIANO TERRA - Ingresso, salone, bagno di cortesia, ampio tinello con camino, cucina abitabile in muratura con comodo ripostiglio e un grande terrazzo di circa 100 mq con angolo bbq.
PIANO PRIMO - Corridoio con armadio a muro che conduce alla prima stanza attualmente adibita a studio con affaccio sul proprio balcone, un bagno con doccia a servizio del piano, la seconda camera da letto molto spaziosa ospita un armadio a muro da 10 ante, un bagno con doccia e una porta finestra per accedere al terrazzo; anche la terza camera da letto dispone di accesso libero al terrazzo, mentre la quarta camera matrimoniale ha la propria cabina armadio ed un bagno con doccia e vasca idromassaggio. Il terrazzo a livello offre una bella vista sul giardino dell'abitazione, arricchito da piante da frutto, esotiche e di vario genere.
PIANO SEMINTERRATO - Ampia sala hobby per diversi usi, con ingresso indipendente e caldaia autonoma.
Il giardino si estende su circa 500 mq ed abbraccia la casa sui 3 lati, regalando la sensazione di immergersi in un oasi di relax.

LEGGI TUTTO

CONDIVIDI SUI SOCIAL

DATI PRINCIPALI

Riferimento
634481
Contratto
Vendita
Tipologia
Villa
Superficie
400 mq
Locali
Più di 5
Camere da letto
4
Cucina
Abitabile
Bagni
4
Piano
Piano terra
Totale piani
3

CARATTERISTICHE

Ascensore

COSTI

Prezzo
€ 690.000,00

EFFICIENZA ENERGETICA

Stato
Abitabile
Anno costruzione
1974
Riscaldamento
Autonomo
Climatizzazione
Si
Classe energetica
G
IPE
351,00 kWh/m²a

A+

A

B

C

D

E

F

351,00 kWh/m²a | Classe energetica G

G

MAPPA

ANNUNCI SIMILI

VENDITA 10
€ 750.000
Villa in Vendita a Roma, Zona Infernetto
  • Più di 5 locali
  • 360 mq
  • 4 bagni
VENDITA 20
€ 790.000
Villa in Vendita a Roma, Zona Infernetto
  • Più di 5 locali
  • 330 mq
  • 3 bagni
VENDITA 20
€ 880.000
Villa in Vendita a Roma, Zona Infernetto
  • Più di 5 locali
  • 585 mq
  • 4 bagni