GUIDONIA MONTECELIO - MARCO SIMONE - VILLINO 180 MQ VENDITA

Via Appiano - Guidonia Montecelio (Roma)
€ 320.000
  • Più di 5 locali
  • 180 mq
  • 3 bagni

Villetta a schiera in Vendita a Guidonia Montecelio

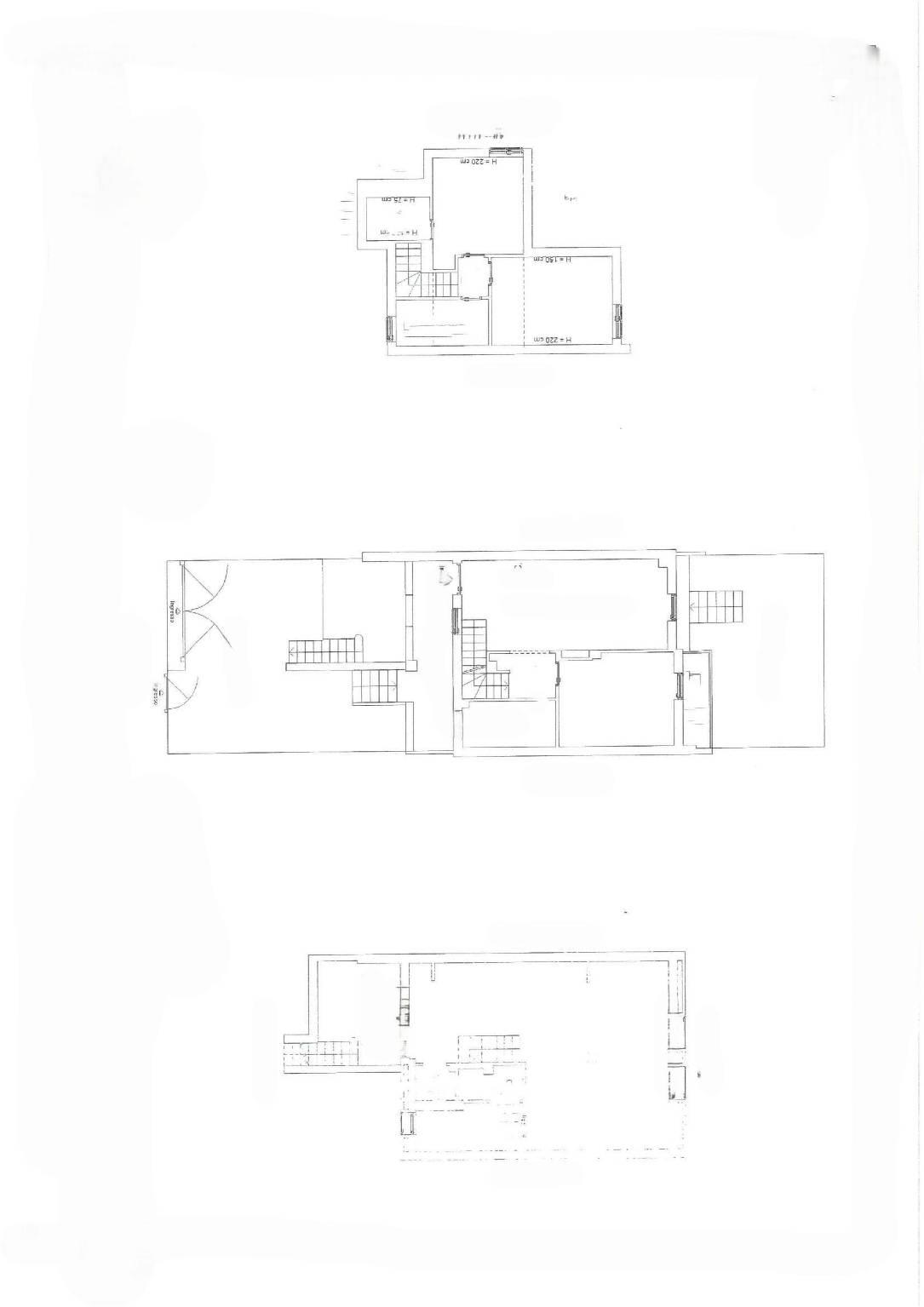
GUIDONIA MONTECELIO, ADIACENTE CIRCOLO DI GOLF “MARCO SIMONE” – VIA APPIANO, Villino di recente costruzione In posizione esclusiva e panoramica, nelle vicinanze dal rinomato Circolo di Golf “Marco Simone”, proponiamo in vendita un elegante villino di circa 180 mq, di recente costruzione, sviluppato su tre livelli fuori terra. L’immobile, curato nei dettagli e caratterizzato da ambienti luminosi e ben distribuiti, è composto da: ampio soggiorno, cucina, tre camere da letto, tre bagni, piccoli ripostigli, veranda e balcone. Completa la proprietà una corte esterna su due lati, ideale per momenti di relax all’aperto. La posizione elevata all’interno dell’area residenziale, la vicinanza ai servizi principali e alle scuole, nonché l’ottima esposizione solare, rendono questo immobile una soluzione abitativa di pregio, perfetta per chi cerca tranquillità senza rinunciare alla comodità.
Ti invitiamo a contattarci per ulteriori dettagli o per organizzare una visita! La nostra agenzia, presente sul territorio da oltre 30 anni, si distingue per professionalità, affidabilità e un servizio completo che ti accompagnerà fino al rogito notarile. La nostra priorità è offrirti un’assistenza trasparente e dedicata, offrendo tutte le garanzie necessarie per un acquisto sicuro. Richiedi tutte le garanzie e informazioni di cui hai bisogno: siamo qui per aiutarti a trovare la casa dei tuoi sogni! Le foto, le planimetrie e la descrizione in generale, hanno un puro scopo informativo; non costituiscono quindi elementi contrattuali.

LEGGI TUTTO

CONDIVIDI SUI SOCIAL

DATI PRINCIPALI

Riferimento
640494
Contratto
Vendita
Tipologia
Villetta a schiera
Superficie
180 mq
Locali
5
Camere da letto
3
Cucina
A vista
Bagni
3
Piano
1 °
Totale piani
3
Box/Posto auto
Singolo

CARATTERISTICHE

Ascensore

COSTI

Prezzo
€ 320.000,00

EFFICIENZA ENERGETICA

Stato
Ristrutturato
Riscaldamento
Autonomo
Climatizzazione
Si
Classe energetica
G
IPE
351,00 kWh/m²a

A+

A

B

C

D

E

F

351,00 kWh/m²a | Classe energetica G

G

MAPPA

ANNUNCI SIMILI

VENDITA 8
€ 530.000
Villetta a schiera in Vendita a Guidonia Montecelio (Roma)
  • Più di 5 locali
  • 150 mq
  • 3 bagni
VENDITA 20
€ 239.000
Villetta a schiera in Vendita a Guidonia Montecelio (Roma)
  • Più di 5 locali
  • 142 mq
  • 3 bagni
VENDITA 20
€ 265.000
Villetta a schiera in Vendita a Guidonia Montecelio (Roma)
  • Più di 5 locali
  • 160 mq
  • 2 bagni
VENDITA 20
€ 229.000
Villetta a schiera in Vendita a Guidonia Montecelio (Roma)
  • Più di 5 locali
  • 160 mq
  • 3 bagni