Fregene – Via Riomaggiore – Porzione di villa bifamiliar VENDITA

Via Riomaggiore - Fiumicino, Frazione Fregene
€ 595.000
  • Trilocale
  • 190 mq
  • 2 bagni

Villa in Vendita a Fiumicino

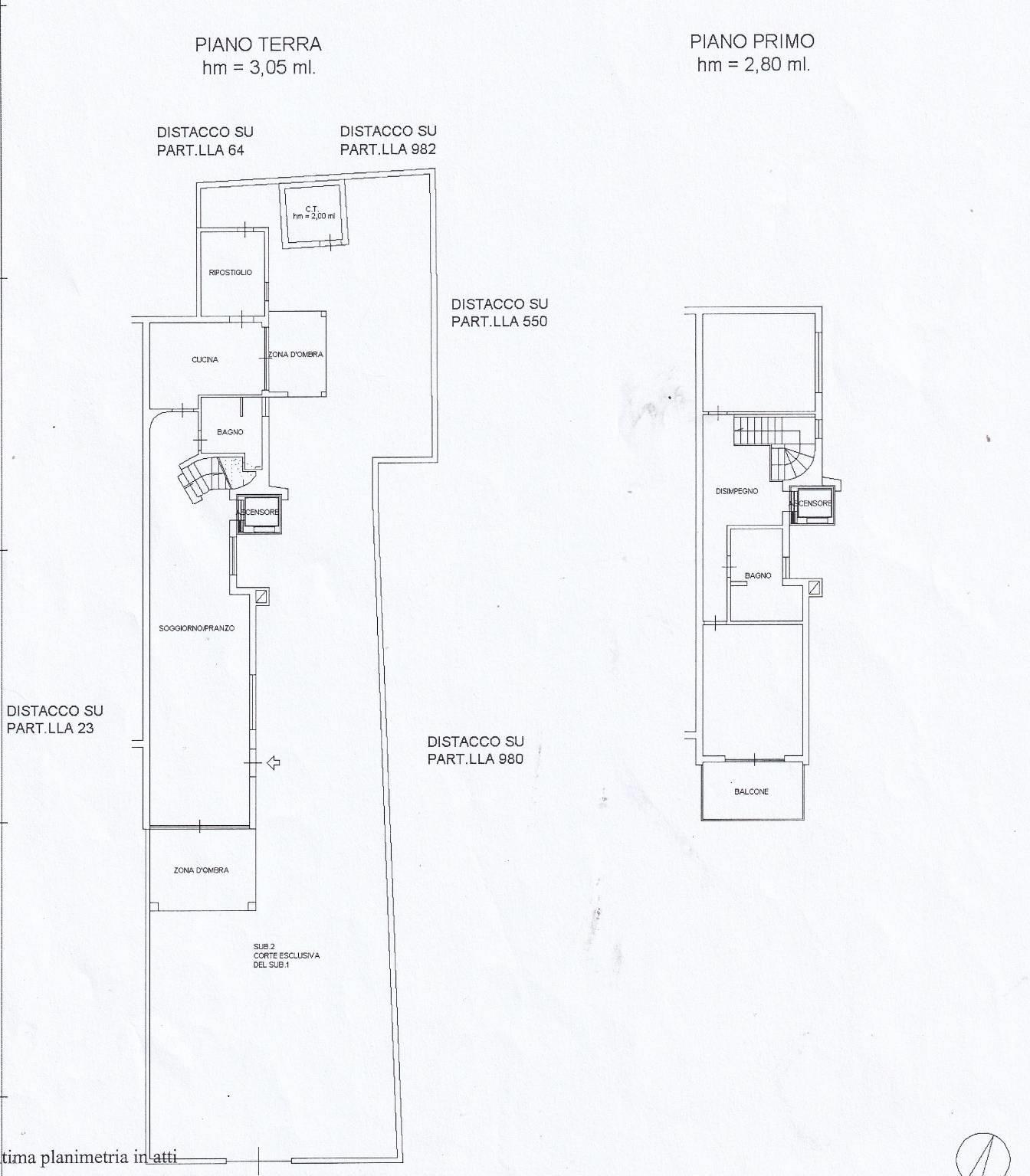
A pochi passi dal mare, nella parte più tranquilla e residenziale di Fregene, è in vendita una porzione di villa bifamiliare completamente ristrutturata, sia internamente che esternamente, con cappotto termico e rifiniture accurate. La proprietà, in Classe Energetica D, è dotata di ascensore interno che collega i due livelli e di impianto di riscaldamento autonomo. La superficie complessiva è di circa 170 mq, circondata da un curato giardino privato di circa 200 mq.

Al piano terra si trova un ampio salone triplo, una cucina abitabile, arredata e completa di elettrodomestici, dotata di ampia vetrata prospiciente la zona pranzo esterna nel giardino, ripostiglio e un bagno.

Il piano superiore, collegato sia da un’elegante scala interna che dall’ascensore privato, ospita due spaziose camere da letto, un bagno finestrato e un terrazzo abitabile balcone, ideale per momenti di relax all’aperto.

Il giardino, curato e ben organizzato, consente di parcheggiare comodamente due vetture grazie al cancello carrabile a comando elettrico e ospita una piacevole area pranzo esterna pavimentata. Sul retro è presente un locale accessorio molto utile come cantina, deposito per biciclette o piccolo spazio hobby.

La villa viene proposta completamente arredata o semiarredata, come da foto. Si tratta di una soluzione abitativa elegante e funzionale, pronta da vivere, vicina al mare e ideale come residenza principale o casa per le vacanze, in una posizione riservata, silenziosa e comoda ai servizi.

Prezzo richiesto: € 595.000,00

L'agenzia Immobiliare Cubeddu, fondata nel 1948, è un punto di riferimento nel settore delle compravendite e delle locazioni immobiliari. Specializzata in tutti i tipi di immobili residenziali e commerciali, l'agenzia offre valutazioni di mercato approfondite, fornendo stime accurate e affidabili del valore degli immobili. Oltre a ciò, Cubeddu si distingue per la sua assistenza completa e altamente professionale ai clienti, guidandoli attraverso il processo di negoziazione e conclusione delle transazioni in modo esperto. L'agenzia sfrutta inoltre le più avanzate tecnologie per promuovere e pubblicizzare gli immobili sui portali online, garantendo una visibilità ottimale e massimizzando le opportunità di vendita e locazione. In sintesi, Cubeddu è un'agenzia immobiliare con una lunga storia di successo, che offre competenza, professionalità e soluzioni innovative per soddisfare le esigenze dei clienti in modo efficace ed efficiente.

LEGGI TUTTO

CONDIVIDI SUI SOCIAL

DATI PRINCIPALI

Riferimento
630422
Contratto
Vendita
Tipologia
Villa
Superficie
190 mq
Locali
3
Camere da letto
2
Cucina
Abitabile
Bagni
2
Piano
Piano terra
Totale piani
2
Box/Posto auto
Doppio

CARATTERISTICHE

Ascensore

COSTI

Prezzo
€ 595.000,00

EFFICIENZA ENERGETICA

Stato
Ristrutturato
Riscaldamento
Autonomo
Classe energetica
D
IPE
351,00 kWh/m²a

A+

A

B

C

351,00 kWh/m²a | Classe energetica D

D

E

F

G

MAPPA

ANNUNCI SIMILI

VENDITA 20
€ 649.000
  • Più di 5 locali
  • 130 mq
  • 4 bagni
VENDITA 20
€ 700.000
  • Quadrilocale
  • 196 mq
  • 3 bagni
VENDITA 2
€ 360.000
Villa in Vendita a Fiumicino (Roma)
  • Quadrilocale
  • 80 mq
  • 2 bagni