Frascati, villa unifamiliare immersa nel verde VENDITA

Via di Salè 7 - Frascati (Roma)
€ 850.000
  • Più di 5 locali
  • 356 mq
  • 4 bagni

Villa in Vendita a Frascati

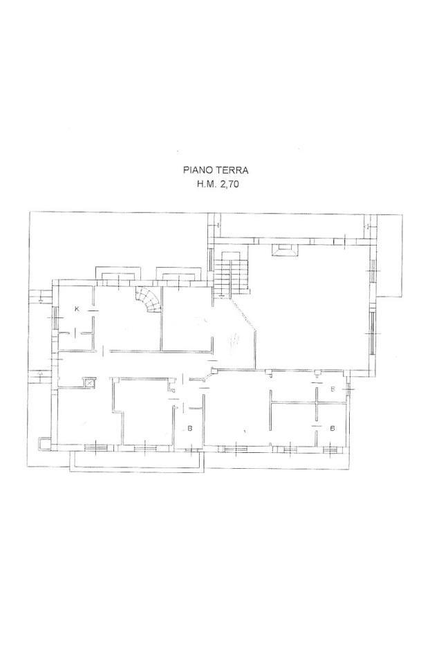
In una delle zone più esclusive di Frascati, Via di Salè, 7, la United Real Estate propone in vendita una splendida villa unifamiliare degli anni 70 su due livelli di 356 mq insistente su un lotto di circa 2500 mq. Entrando nella proprietà ci accoglie un magnifico e luminoso salone di rappresentanza con camino in pietra ed una scala di legno che conduce ad un'area rialzata con vista sul salone ed accesso a due terrazzi sul tetto con vista sul giardino; accanto al salone, un'elegante sala da pranzo con porta finestra sul giardino completa la zona giorno; sempre sullo stesso piano, lungo un corridoio troviamo 3 camere da letto, 3 bagni, la cucina ed un'altra sala da pranzo più piccola con affaccio su un ampio patio con vista sul giardino. La camera padronale è caratterizzata dalla presenza di due cabine armadio ognuna con il proprio bagno...un vero tocco di eleganza! Sia dall'esterno che dall'interno si accede al piano inferiore dove troviamo un'altra ampia zona giorno con grande camino in pietra, sala biliardo, una cucina abitabile con una grande dispensa e vista su un altro patio molto accogliente e confortevole, altre due camere da letto, un bagno completo, una zona relax con sauna, locale tecnico e cantina. Gli accessi alla villa sono due: uno pedonale ed un altro carrabile che permette l'ingresso ed il parcheggio a 3/4 macchine. Nel piano sottostante sono presenti anche due dependances, una con accesso dall'interno ed un'altra con accesso indipendente.
Il riscaldamento è autonomo, gli infissi sono in legno ed una particolarità all'interno sono porte e portoni antichi utilizzati per armadi a muro e per dividere gli ambienti.
All'esterno, tre ampi patii raggiungibili mediante scalinate in pietra e due terrazze panoramiche con vista sul grande giardino rendono questa proprietà unica nel suo genere.

La villa si presenta da ristrutturare e gli ampi spazi permettono una disposizione più funzionale e moderna degli stessi. Se necessario la proprietà potrebbe essere divisa in due unita abitative autonome con ingressi indipendenti.

*Il contenuto dell’annuncio pubblicitario (informazioni e planimetrie) ha valore puramente indicativo e non costituisce elemento contrattuale.

LEGGI TUTTO

CONDIVIDI SUI SOCIAL

DATI PRINCIPALI

Riferimento
634493
Contratto
Vendita
Tipologia
Villa
Superficie
356 mq
Locali
Più di 5
Camere da letto
5
Cucina
Abitabile
Bagni
4
Piano
Piano terra
Totale piani
2
Box/Posto auto
Doppio

CARATTERISTICHE

Ascensore

COSTI

Prezzo
€ 850.000,00
Spese condominiali
€ 50,00 / mese

EFFICIENZA ENERGETICA

Stato
Da ristrutturare
Anno costruzione
1970
Riscaldamento
Autonomo
Classe energetica
F
IPE
351,00 kWh/m²a

A+

A

B

C

D

E

351,00 kWh/m²a | Classe energetica F

F

G

MAPPA

ANNUNCI SIMILI

VENDITA 20
€ 799.000
Villa in Vendita a Frascati (Roma)
  • Più di 5 locali
  • 360 mq
  • 4 bagni
VENDITA 20
€ 770.000
Villa in Vendita a Frascati (Roma)
  • Più di 5 locali
  • 230 mq
  • 4 bagni
VENDITA 19
€ 1.080.000
Villa in Vendita a Frascati (Roma)
  • Più di 5 locali
  • 415 mq
  • 4 bagni