FORMELLO - LOC. LE RUGHE - VILLA BIFAMILIARE 270 MQ VENDITA

Viale Grecia - Formello (Roma)
€ 350.000
  • Più di 5 locali
  • 265 mq
  • 3 bagni

Villa in Vendita a Formello

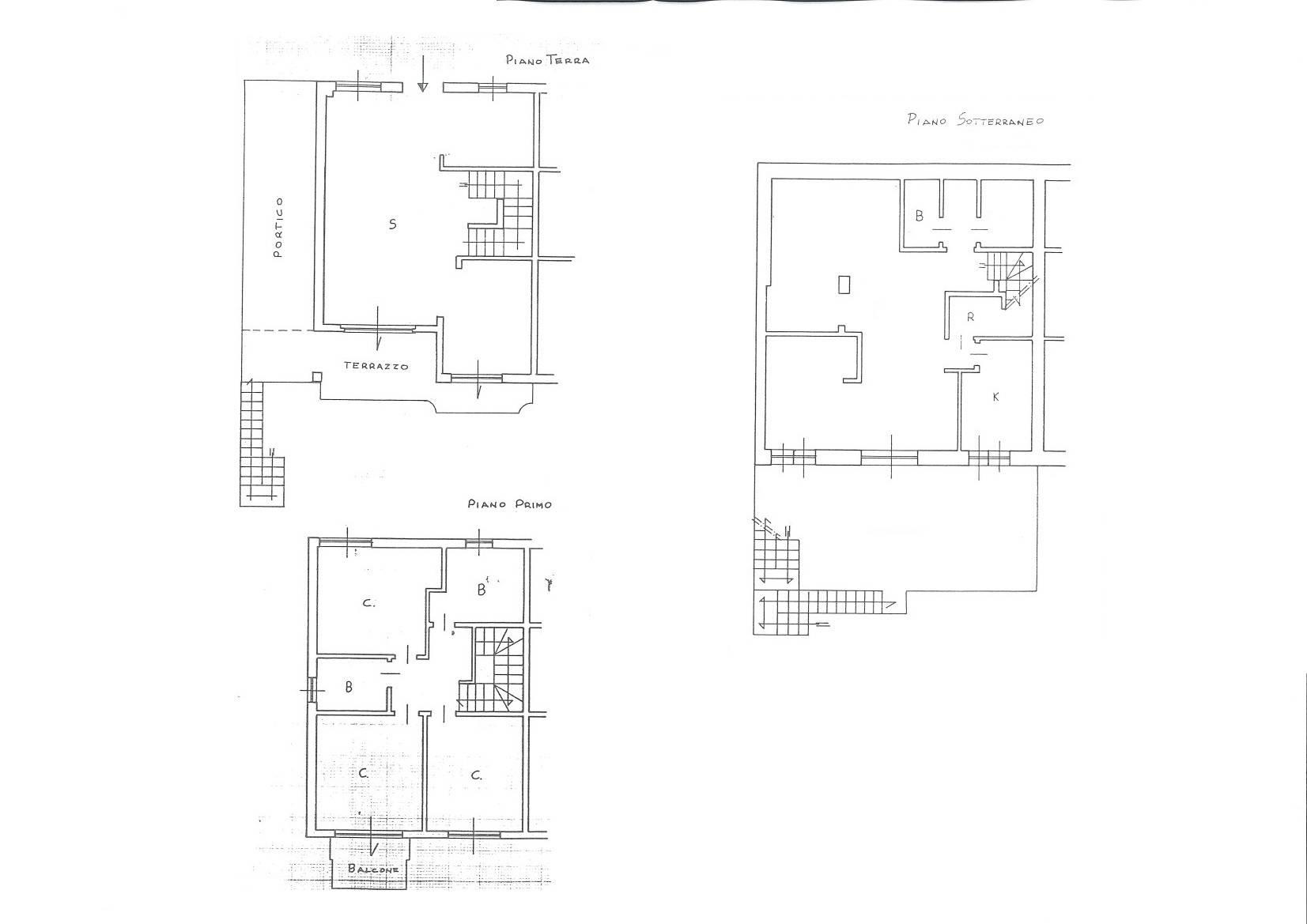
Le Rughe in posizione dominante e panoramica proponiamo in vendita una villa di ampia metratura sviluppata su tre livelli con destinazione residenziale fuori terra per un totale di circa 265 mq. L’abitazione, esposta a mezzogiorno, gode di ottima luminosità ed è circondata da un giardino di circa 300 mq, oltre a comode aree esterne pavimentate e posti auto coperti. Si compone internamente di: salone doppio, pranzo, cucina abitabile, tre camere da letto, tre bagni, taverna a livello giardino, ampia cantina e ripostigli. L’abitazione esternamente ricoperta in cortina è munita di infissi esterni n PVC con vetrocamera, impianto fotovoltaico di 6 KW con batterie di accumulo, colonna di ricarica auto elettrica e impianto di riscaldamento ibrido ad alta efficienza.
Soluzione ideale per chi cerca una residenza signorile e tranquilla, immersa nel verde, dotata di tutti i comfort moderni e un’elevata efficienza energetica.
Ti invitiamo a contattarci per ulteriori dettagli o per organizzare una visita!
La nostra agenzia, presente sul territorio da oltre 30 anni, si distingue per professionalità, affidabilità e un servizio completo che ti accompagnerà fino al rogito notarile. La nostra priorità è offrirti un’assistenza trasparente e dedicata, offrendo tutte le garanzie necessarie per un acquisto sicuro. Richiedi tutte le garanzie e informazioni di cui hai bisogno: siamo qui per aiutarti a trovare la casa dei tuoi sogni!

Le foto, le planimetrie e la descrizione in generale, hanno un puro scopo informativo; non costituiscono quindi elementi contrattuali.

LEGGI TUTTO

CONDIVIDI SUI SOCIAL

DATI PRINCIPALI

Riferimento
640493
Contratto
Vendita
Tipologia
Villa
Superficie
265 mq
Locali
5
Camere da letto
3
Cucina
Abitabile
Bagni
3
Piano
1 °
Totale piani
3
Box/Posto auto
Doppio

CARATTERISTICHE

Ascensore

COSTI

Prezzo
€ 350.000,00

EFFICIENZA ENERGETICA

Stato
Abitabile
Riscaldamento
Autonomo
Climatizzazione
Si
Classe energetica
A3
IPE
351,00 kWh/m²a

A4

351,00 kWh/m²a | Classe energetica A3

A3

A2

A1

B

C

D

E

F

G

MAPPA

ANNUNCI SIMILI

VENDITA 20
€ 460.000
Villa in Vendita a Formello (Roma)
  • Più di 5 locali
  • 195 mq
  • 2 bagni
VENDITA 20
€ 295.000
Villa in Vendita a Formello (Roma)
  • Più di 5 locali
  • 250 mq
  • 3 bagni
VENDITA 20
€ 445.000
Villa in Vendita a Formello (Roma)
  • Più di 5 locali
  • 170 mq
  • 2 bagni
VENDITA 10
€ 399.000
Villa in Vendita a Formello (Roma)
  • Più di 5 locali
  • 230 mq
  • 2 bagni
VENDITA 20
€ 349.000
Villa in Vendita a Formello (Roma)
  • Più di 5 locali
  • 200 mq
  • 3 bagni