FORMELLO: COMPLESSO RESIDENZIALE INDIPENDENTE IN VENDITA VENDITA

Viale Europa - Formello (Roma)
Trattativa Riservata
  • Più di 5 locali
  • 882 mq
  • 4 bagni

Villa in Vendita a Formello

FORMELLO-LE RUGHE: COMPLESSO RESIDENZIALE INDIPENDENTE IN VENDITA

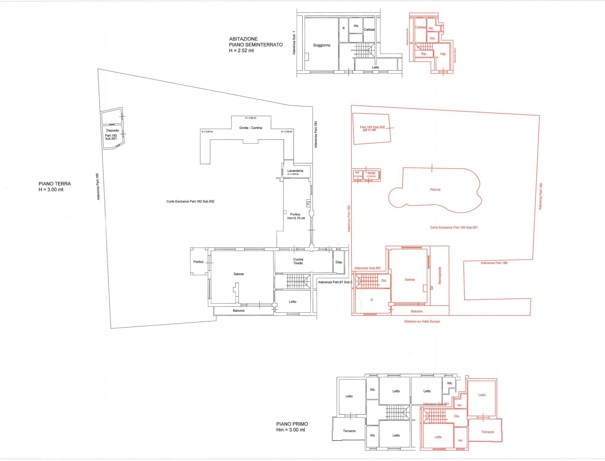
Scopri un'opportunità unica nel cuore di Formello, un complesso residenziale composto da più unità immobiliari accorpate, ideale per famiglie numerose, investitori o attività ricettive come B&B e cohousing di lusso. Questo immobile si estende su un terreno di 2.200 m², arricchito da una splendida piscina privata e ampi spazi esterni, perfetti per godere della tranquillità della zona esclusiva e silenziosa.

La villa principale di 251 m² si sviluppa su tre livelli e offre sette vani ben distribuiti, mentre la dependance indipendente di 68 m² e il miniappartamento di 66 m² forniscono ulteriori spazi abitativi. Con un totale di oltre 670 m² catastali, l'immobile include anche due ampi locali C/6, ideali come autorimesse o magazzini, e un box auto aggiuntivo su Viale delle Rughe.

L'accesso è adattato per persone con mobilità ridotta, rendendo questa proprietà adatta a tutti. Il riscaldamento è garantito da una pompa di calore alimentata a gas naturale, assicurando comfort in ogni stagione. La posizione strategica offre ottimi collegamenti con la Cassia Bis, rendendo facile raggiungere Roma e le aree circostanti. Non perdere l'occasione di investire in questo angolo di paradiso, contattaci per maggiori informazioni e fissa subito un appuntamento coi noi!

LEGGI TUTTO

CONDIVIDI SUI SOCIAL

DATI PRINCIPALI

Riferimento
639880
Contratto
Vendita
Tipologia
Villa
Superficie
882 mq
Locali
Più di 5
Camere da letto
Più di 5
Cucina
Abitabile
Bagni
4
Piano
2 °
Totale piani
3
Box/Posto auto
Doppio

CARATTERISTICHE

Ascensore

COSTI

Prezzo
Trattativa Riservata

EFFICIENZA ENERGETICA

Stato
Da ristrutturare
Anno costruzione
1990
Riscaldamento
Autonomo
Climatizzazione
Si
Classe energetica
G
IPE
175,00 kWh/m²a

A+

A

B

C

D

E

F

175,00 kWh/m²a | Classe energetica G

G

MAPPA

ANNUNCI SIMILI

VENDITA 10
€ 399.000
Villa in Vendita a Formello (Roma)
  • Più di 5 locali
  • 230 mq
  • 2 bagni
VENDITA 20
€ 295.000
Villa in Vendita a Formello (Roma)
  • Più di 5 locali
  • 250 mq
  • 3 bagni
VENDITA 20
€ 460.000
Villa in Vendita a Formello (Roma)
  • Più di 5 locali
  • 195 mq
  • 2 bagni