CONSORZIO LA SBARRA: VILLINO CAPO TESTA CON GIARDINO VENDITA

Via Ulisse 24 - Ardea (Roma)
€ 165.000
  • Trilocale
  • 80 mq
  • 2 bagni

Villetta a schiera in Vendita a Ardea

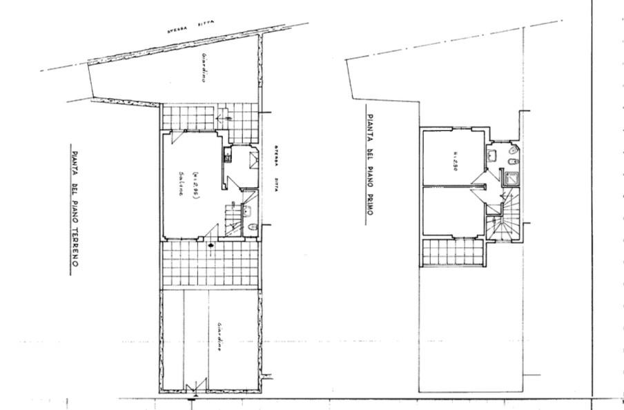
All' interno del consorzio "LA SBARRA", e precisamente in via Ulisse (tra via Elena e Via Priamo), in un complesso curato, riservato e signorile, proponiamo la vendita di un villino capo testa, disposto su due livelli fuori terra, con giardino di circa 100 mq, portico ideale per pranzi e cene estive , balcone e possibilità di parcheggiare internamente una autovettura di piccole dimensioni all’interno del giardino. L' immobile, è composto AL PIANO TERRA da: salone con doppio affaccio e doppio accesso al giardino, cucinotto separato, bagno di servizio; Al PIANO PRIMO da: 2 luminose camere matrimoniali, una delle quali con accesso ad un comodo balcone, disimpegno con armadio a muro e bagno con cabina doccia. Una comoda scala rivestita in marmo collega i due piani della casa. La villa, sempre amorevolmente manutenuta, è stata edificata con ottimi criteri costruttivi ed è stata oggetto di ristrutturazione e migliorie quali: il recente e completo rifacimento dell’ intonaco della facciata e del tetto, della pavimentazione del salone, degli impianti, del bagno del piano primo e la predisposizione per l’ impianto termo autonomo alimentato a metano. Dotata di infissi nuovi in doppio vetro e pvc e di condizionatori caldo/freddo. Allacciato a tutte le utenze e dotato di grate ad ogni finestra.
La villa, grazie alla sua posizione ed esposizione, si presenta molto luminosa in tutte le ore del giorno e l' affaccio interno garantisce tranquillità, riservatezza e permette di non risentire del traffico durante il periodo estivo. La comodità degli spazi interni ed esterni, le migliorie apportate, la signorilità ed esclusività del contesto, il giardino e la vicinanza al mare ed ai servizi, rendono questa soluzione ideale per famiglie che desiderino viverla tutto l'anno e per trascorrervi le vacanze e i week end invernali in completo relax.
Le immagini presenti nell'annuncio sono a scopo illustrativo e non costituiscono elemento contrattuale. Il mobilio e arredo interno ed esterno non sono da considerarsi compresi nel prezzo di vendita.
Il consorzio offre servizi di guardiania H24, parco giochi per bambini attività di intrattenimento, stabilimenti balneari attrezzati e ristorazione durante il periodo estivo.
E' possibile visionare l' immobile tutti i giorni previo appuntamento telefonico. La Società Case Elite offre un servizio completo ed all'avanguardia per tutto ciò che riguarda la compravendita, la locazione ed investimenti immobiliari. Valutazioni gratuite su tutto il territorio di Roma e Provincia. Consulenze tecnico - legali, assistenza sino al rogito notarile, consulenze gratuite per mutui e prestiti personali con staff di esperienza ventennale nel settore. Competenza, professionalità e passione al vostro servizio. Rivolgersi a "CASE ELITE" tel: 3247770265 - mail: info@caseelite.it visita il nostro sito www.caseelite.com

LEGGI TUTTO

CONDIVIDI SUI SOCIAL

DATI PRINCIPALI

Riferimento
632792
Contratto
Vendita
Tipologia
Villetta a schiera
Superficie
80 mq
Locali
3
Camere da letto
2
Cucina
Abitabile
Bagni
2
Piano
Piano terra
Totale piani
2

CARATTERISTICHE

Ascensore

COSTI

Prezzo
€ 165.000,00
Spese condominiali
€ 59,00 / mese

EFFICIENZA ENERGETICA

Stato
Ristrutturato
Anno costruzione
1975
Climatizzazione
Si
Classe energetica
G
IPE
175,00 kWh/m²a

A+

A

B

C

D

E

F

175,00 kWh/m²a | Classe energetica G

G

MAPPA

ANNUNCI SIMILI

VENDITA 20
€ 169.000
Villetta a schiera in Vendita a Ardea (Roma)
  • Più di 5 locali
  • 125 mq
  • 1 bagno
VENDITA 20
€ 218.000
Villetta a schiera in Vendita a Ardea (Roma)
  • Più di 5 locali
  • 113 mq
  • 2 bagni
VENDITA 15
€ 109.000
Villetta a schiera in Vendita a Ardea (Roma)
  • Quadrilocale
  • 75 mq
  • 1 bagno
VENDITA 20
€ 169.000
Villetta a schiera in Vendita a Ardea (Roma)
  • Più di 5 locali
  • 173 mq
  • 2 bagni
VENDITA 20
€ 195.000
Villetta a schiera in Vendita a Ardea (Roma)
  • Più di 5 locali
  • 150 mq
  • 3 bagni
VENDITA 20
€ 219.000
Villetta a schiera in Vendita a Ardea (Roma)
  • Più di 5 locali
  • 250 mq
  • 2 bagni