COLLINA DELLE MUSE VILLA BIFAMILIARE IN OTTIMO STATO LIBERA VENDITA

Via Pietro Ubaldo Angeletti - Roma (Roma)
€ 550.000
  • Più di 5 locali
  • 179 mq
  • 4 bagni

Villa in Vendita a Roma

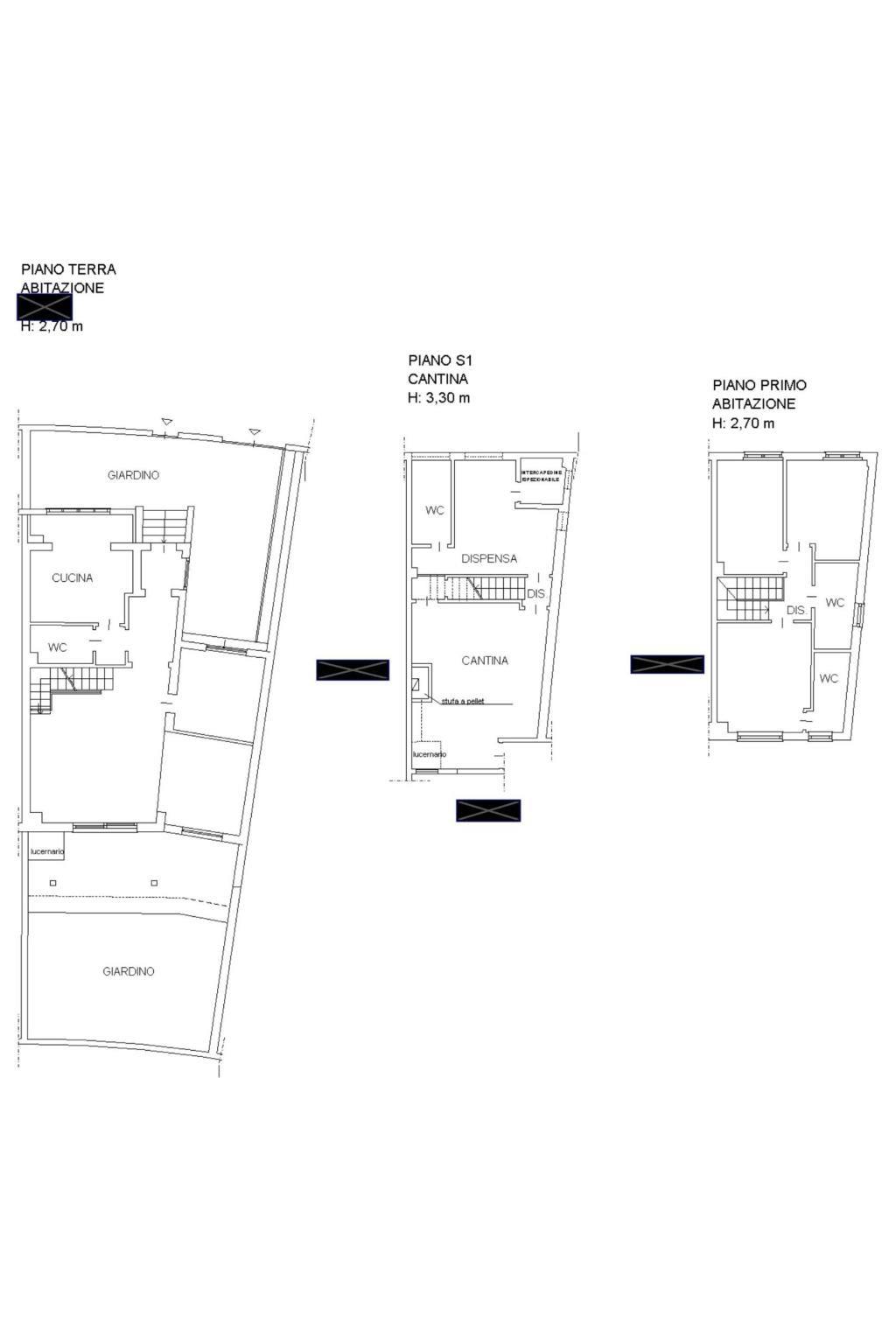
Boccea Collina delle Muse adiacente Università Niccolo' Cusano, Via Pietro Ubaldo Angeletti, in comprensorio signorile ed esclusivo, Villa su tre livelli così composta:
- Piano Terra: di Mq. 79,00, ingresso carrabile e pedonale, due giardini di 50,00 + 50,00 mq. di cui uno ( quello del salone) con portico in legno di 20 mq., tenda da sole, barbecue, patio con vetrate scorrevoli per l'utilizzo anche nei periodi invernali e affaccio luminosissimo, ingresso, cucina abitabile, salone doppio, camera, bagno senza finestra;
- Piano 1: di Mq. 50,00, disimpegno, camera matrimoniale con bagno interno con finestra, 2 camerette, secondo bagno con finestra;
- Piano Interrato: di Mq. 55,00, sala hobby/Cantina con camino e lucernario, ampio locale dispensa con possibile utilizzo a cucina, ripostiglio, bagno, da quest'ultimo piano si accede tramite scala interna e porta blindata ad un box auto doppio che affaccia nel lato apposto del comprensorio dove troviamo il parco con pista ciclabile ed area cani, completa la proprieta' un posto auto scoperto.
l'immobile dispone di: inferriate, zanzariere, antifurto, videocitofono, porte in legno ed infissi doppio vetro in legno, persiane in PVC, climatizzatori, fibra ottica, ottime rifiniture interne ed esterne, l'immobile e' libero e disponibile subito.

La nostra Agenzia può regolarmente vantare la conclusione di compravendite e locazioni immobiliari, definite sempre con il compiacimento e l’apprezzamento da parte dei proprietari, quanto degli acquirenti o conduttori.
La nostra banca dati, ci pone in evidenza moltissime richieste di acquisto e di locazione, ed abbiamo la certezza di poter soddisfare le necessità e le aspettative di quanti debbano acquistare o locare e di coloro che abbiano esigenza o volontà di vendere immobili.
Pertanto, qualora fosse nelle vostre intenzioni vendere o locare qualsiasi unità immobiliare, desideriamo informarvi che la nostra Agenzia effettua VALUTAZIONI VERBALI GRATUITE, che in nessun modo sono vincolanti da parte vostra.Non c’è dubbio che metteremo a vostra completa disposizione tutto il nostro impegno, la nostra professionalità e la nostra competenza per accompagnarvi nel “non” sempre facile percorso di una vendita o locazione sicura ed in coerenza con le vostre aspettative.

LEGGI TUTTO

CONDIVIDI SUI SOCIAL

DATI PRINCIPALI

Riferimento
628666
Contratto
Vendita
Tipologia
Villa
Superficie
179 mq
Locali
Più di 5
Camere da letto
5
Cucina
Abitabile
Bagni
4
Piano
1 °
Totale piani
1
Box/Posto auto
Doppio

CARATTERISTICHE

Ascensore

COSTI

Prezzo
€ 550.000,00

EFFICIENZA ENERGETICA

Stato
Ristrutturato
Anno costruzione
2005
Riscaldamento
Autonomo
Climatizzazione
Si
Classe energetica
G
IPE
941,06 kWh/m²a

A+

A

B

C

D

E

F

941,06 kWh/m²a | Classe energetica G

G

MAPPA

ANNUNCI SIMILI

VENDITA 20
€ 495.000
Villa in Vendita a Roma (Roma)
  • Più di 5 locali
  • 290 mq
  • 3 bagni
VENDITA 20
€ 490.000
Villa in Vendita a Roma (Roma)
  • Più di 5 locali
  • 260 mq
  • 4 bagni