Villa con Giardino e Ampi Spazi, Ideale per Famiglie VENDITA

Via Trausella - Roma (Roma)
€ 649.000
  • Più di 5 locali
  • 363 mq
  • 3 bagni

Villa in Vendita a Roma

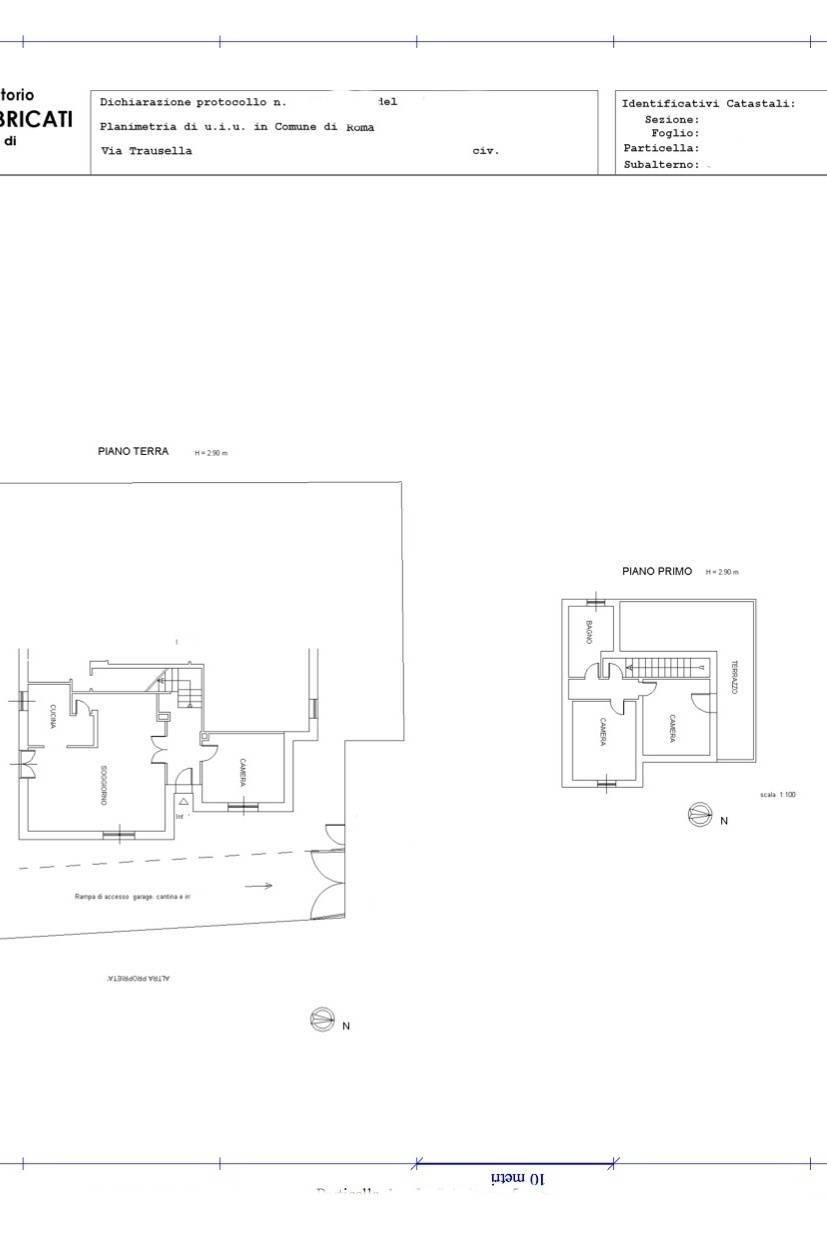
Proponiamo in vendita una splendida villa unifamiliare di 360 mq, circondata da un giardino perimetrale di 300 mq, situata nel tranquillo e prestigioso comprensorio di Podere San Giusto. A pochi minuti dal Grande Raccordo Anulare e nelle immediate vicinanze degli ospedali Gemelli e San Filippo Neri, questa proprietà offre una posizione strategica per chi cerca la serenità senza rinunciare alla comodità dei principali servizi cittadini.

La villa si sviluppa su due livelli e include una spaziosa sala hobby, un ampio garage di 100 mq e una cantina. Gli ampi spazi interni sono perfetti per famiglie numerose o per chi cerca un’abitazione che possa ospitare più nuclei familiari, garantendo al contempo privacy e comfort.

Caratteristiche principali:
- 360 mq di superficie abitabile
- 300 mq di giardino perimetrale
- Ampio garage di 100 mq
- Spaziosa sala hobby e cantina
- Posizione strategica, vicino a ospedali, scuole e trasporti

La villa offre un perfetto equilibrio tra tranquillità e comodità, con ambienti luminosi e ben distribuiti, ideali per vivere al meglio ogni momento in famiglia. Non perdere l’opportunità di visitarla!

Per maggiori informazioni e per fissare un appuntamento, contattaci ai numeri: 06.45431701 – 392/9887936.

Le presenti informazioni e planimetrie sono meramente indicative e non costituiscono elementi contrattuali.

LEGGI TUTTO

CONDIVIDI SUI SOCIAL

DATI PRINCIPALI

Riferimento
628857
Contratto
Vendita
Tipologia
Villa
Superficie
363 mq
Locali
Più di 5
Camere da letto
5
Cucina
Abitabile
Bagni
3
Piano
1 °
Totale piani
3
Box/Posto auto
Doppio

CARATTERISTICHE

Ascensore

COSTI

Prezzo
€ 649.000,00

EFFICIENZA ENERGETICA

Stato
Abitabile
Anno costruzione
1980
Riscaldamento
Autonomo
Climatizzazione
Si
Classe energetica
F
IPE
351,00 kWh/m²a

A+

A

B

C

D

E

351,00 kWh/m²a | Classe energetica F

F

G

MAPPA

ANNUNCI SIMILI

VENDITA 20
€ 550.000
Villa in Vendita a Roma (Roma)
  • Più di 5 locali
  • 290 mq
  • 4 bagni
VENDITA 20
€ 490.000
Villa in Vendita a Roma (Roma)
  • Più di 5 locali
  • 260 mq
  • 4 bagni
VENDITA 20
€ 495.000
Villa in Vendita a Roma (Roma)
  • Più di 5 locali
  • 290 mq
  • 3 bagni