Case e Campi - via Aldo Maria Scalise VENDITA

Via Aldo Maria Scalise - Roma, Frazione La Giustiniana
€ 390.000
  • Quadrilocale
  • 132 mq
  • 3 bagni

Villetta a schiera in Vendita a Roma

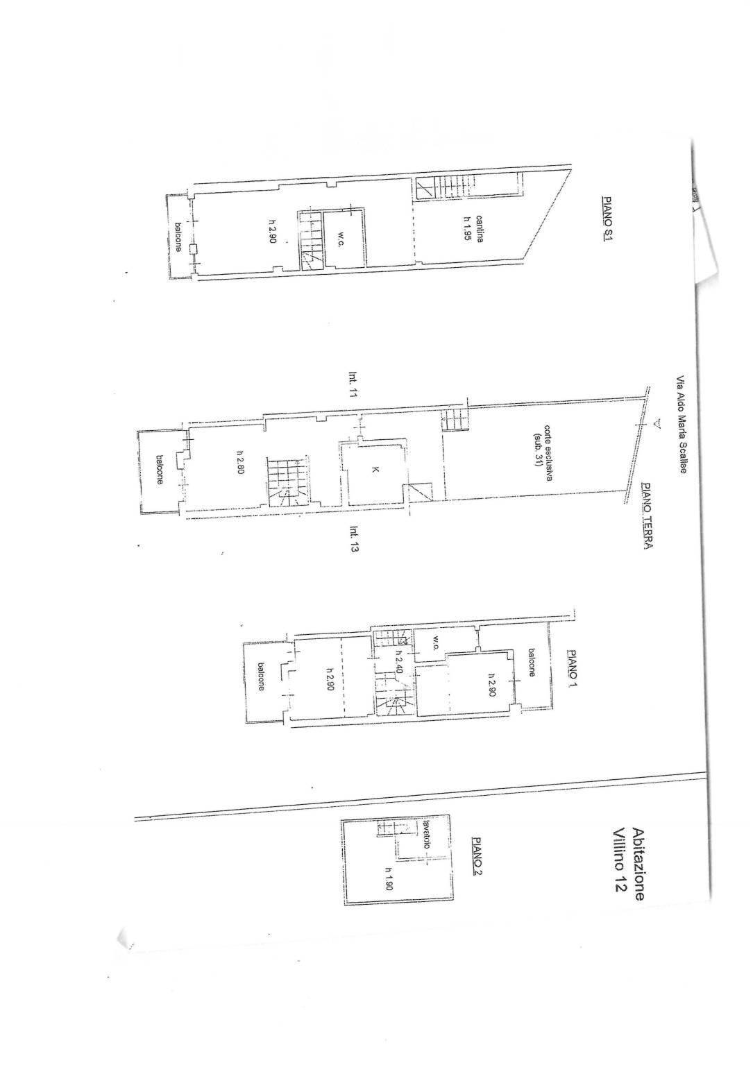
La SV Luxury House è lieta di proporre la vendita di una villa a schiera di recente costruzione all'interno di un comprensorio privato esattamente in Via Aldo Maria Scalise. L'immobile è suddiviso su 5 piani nel seguente modo: - piano terra: ingresso, soggiorno con zona pranzo, cucina, giardino e terrazzino; - 1° piano: due camere matrimoniali, bagno e due terrazzini abitabili; - mansarda: stanza adibita a cabina armadio e palestra; - piano S/1: salone, zona soggiorno con angolo cottura, studio, bagno e terrazzino abitabile; - piano S/2: secondo ingresso che porta nel box con bagno di servizio, lavanderia e cantina. Il complesso residenziale si presenta in buono stato, con infissi in legno con persiane, pavimentazione in parquet e fresa. La predisposizione a sud e ovest inoltre favorisce una luce naturale costante. Possibilità di acquistare una porzione di villino (piano terra, 1° piano e mansarda) al prezzo di €290.000, 00. Visibile previo appuntamento telefonico. Per maggiori informazioni contattare il numero 0633248373 o 0645495902
email: sv17luxuryhouse@gmail.com Ti piace questa casa ma devi prima vendere la tua?

Contattaci per avere una valutazione GRATUITA, operiamo su tutta Roma e provincia! Per la Vostra comodità, le linee telefoniche sono attive dal Lunedì al venerdì dalle 09: 00 alle 13: 00 e dalle 15: 00 alle 19: 00, per qualsiasi informazione potete rivolgervi al seguente contatto 0633248373 o whatsapp 3917584909

LEGGI TUTTO

CONDIVIDI SUI SOCIAL

DATI PRINCIPALI

Riferimento
639134
Contratto
Vendita
Tipologia
Villetta a schiera
Superficie
132 mq
Locali
4
Camere da letto
2
Cucina
Abitabile
Bagni
3
Piano
Piano terra
Totale piani
4
Box/Posto auto
Singolo

CARATTERISTICHE

Ascensore

COSTI

Prezzo
€ 390.000,00
Spese condominiali
€ 95,00 / mese

EFFICIENZA ENERGETICA

Stato
Ristrutturato
Riscaldamento
Autonomo
Climatizzazione
Si
Classe energetica
G
IPE
175,00 kWh/m²a

A+

A

B

C

D

E

F

175,00 kWh/m²a | Classe energetica G

G

MAPPA

ANNUNCI SIMILI

VENDITA 20
€ 390.000
Villetta a schiera in Vendita a Roma, Frazione La Giustiniana
  • Quadrilocale
  • 132 mq
  • 2 bagni
VENDITA 20
€ 395.000
Villetta a schiera in Vendita a Roma, Frazione La Giustiniana
  • Più di 5 locali
  • 253 mq
  • 4 bagni
VENDITA 20
€ 490.000
Villetta a schiera in Vendita a Roma, Frazione La Storta
  • Più di 5 locali
  • 260 mq
  • 3 bagni
VENDITA 20
€ 289.000
Villetta a schiera in Vendita a Roma, Zona Ottavia
  • Quadrilocale
  • 110 mq
  • 3 bagni
VENDITA 14
€ 445.000
Villetta a schiera in Vendita a Roma, Frazione La Storta
  • Più di 5 locali
  • 220 mq
  • 3 bagni
VENDITA 20
€ 349.000
Villetta a schiera in Vendita a Roma, Zona Ottavia
  • Quadrilocale
  • 134 mq
  • 2 bagni
VENDITA 20
€ 359.000
Villetta a schiera in Vendita a Roma, Zona Ottavia
  • Quadrilocale
  • 135 mq
  • 3 bagni
VENDITA 20
€ 800.000
Villetta a schiera in Vendita a Roma, Frazione La Giustiniana
  • Più di 5 locali
  • 310 mq
  • 4 bagni