CAMPOA ASCOLANO -PC1064 Villino su tre livelli VENDITA

Via Lago di Como - Pomezia (Roma)
€ 169.000
  • Trilocale
  • 135 mq
  • 2 bagni

Villetta a schiera in Vendita a Pomezia

CAMPO ASCOLANO - PC1064
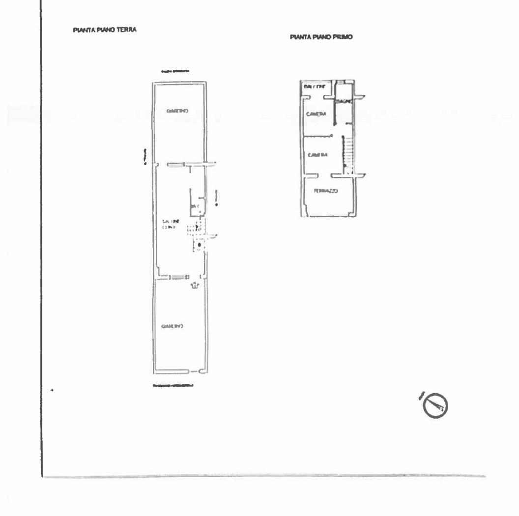
Proponiamo in vendita uno splendido villino centrale disposto su 3 livelli. Piano interrato così composto da: boxe e cantina/sala hobby con camino collegata al piano terra con una comoda scala a chiocciola.
Al piano terra è presente un giardino fronte retro, salone con angolo cottura e un bagno. Tramite una comoda scala di marmo accediamo al primo piano composto da due camere con parquet di cui ognuna servita da un comodo balcone, e un altro bagno.
Completa la proprietà un posto auto coperto.
L'immobile è dotato di panelli solari e fotovoltaici i quali producono più energia di quella necessaria alla villetta il che permette all'immobile di vendere energia al GSE producendo ottimi profitti, inoltre è presente in tutta la casa un cappotto termico per ridurre al minimo il consumo termico.
Classe energetica "A" APE >175Kwh/mqa
PROFESSIONECASA Tel.06.9107969 email: pomezia@domusenea.it - Visita il nostro sito: https://www.******/agenzia/pomezia-torvaianica oppure www.******
I nostri agenti vi garantiranno piena assistenza nel corso di un’eventuale trattativa, partire dalla consulenza del mutuo bancario ideale e personalizzato con un nostro collaboratore interno Credipass, per proseguire con eventuali valutazioni assolutamente gratuite degli immobili di vostra proprietà da mettere in vendita.
Vi forniranno anche consulenza tecnica e notarile, finalizzata alla risoluzione di tutte le problematiche inerenti la vendita o l’acquisto di un immobile.
Inoltre, seguiranno il cliente fino al rogito notarile, offrendo un costante e professionale contatto continuativo con l’acquirente, pronti ad offrire rapide ed efficaci risposte su ogni punto interrogativo.
Siamo a vostra completa disposizione per visionare gli immobili, tutti i giorni dal lunedì al sabato previo appuntamento telefonico contattandoci al nostro recapito o presso la nostra agenzia in Pomezia - Via Roma n.86.

LEGGI TUTTO

CONDIVIDI SUI SOCIAL

DATI PRINCIPALI

Riferimento
642553
Contratto
Vendita
Tipologia
Villetta a schiera
Superficie
135 mq
Locali
3
Camere da letto
2
Cucina
Angolo cottura
Bagni
2
Piano
1 °
Totale piani
3
Box/Posto auto
Singolo

CARATTERISTICHE

Ascensore

COSTI

Prezzo
€ 169.000,00

EFFICIENZA ENERGETICA

Stato
Abitabile
Anno costruzione
1980
Riscaldamento
Autonomo
Classe energetica
A+
IPE
14,00 kWh/m²a
14,00 kWh/m²a | Classe energetica A+

A+

A

B

C

D

E

F

G

MAPPA

ANNUNCI SIMILI

VENDITA
€ 149.000
Villetta a schiera in Vendita a Pomezia (Roma)
  • Quadrilocale
  • 111 mq
  • 2 bagni
VENDITA 20
€ 160.000
Villetta a schiera in Vendita a Pomezia (Roma)
  • Quadrilocale
  • 100 mq
  • 2 bagni
VENDITA 20
€ 259.000
Villetta a schiera in Vendita a Pomezia (Roma)
  • Quadrilocale
  • 110 mq
  • 2 bagni
VENDITA 16
Trattativa Riservata
Villetta a schiera in Vendita a Pomezia (Roma)
  • Trilocale
  • 60 mq
  • 2 bagni
VENDITA 7
€ 270.000
Villetta a schiera in Vendita a Pomezia (Roma)
  • Trilocale
  • 65 mq
  • 2 bagni
VENDITA 20
€ 280.000
Villetta a schiera in Vendita a Pomezia (Roma)
  • Trilocale
  • 160 mq
  • 2 bagni