TORVAIANICA – VIA LEONARDO DA VINCI VENDITA

Via Leonardo da Vinci - Pomezia (Roma)
€ 210.000
  • Trilocale
  • 120 mq
  • 2 bagni

Villetta a schiera in Vendita a Pomezia

TORVAIANICA – VIA LEONARDO DA VINCI
Proponiamo in vendita villino a schiera nel ''Villaggio Laurentum'' di circa 120 mq con spazio esterno di circa 30 mq, a circa 500 m dal mare.

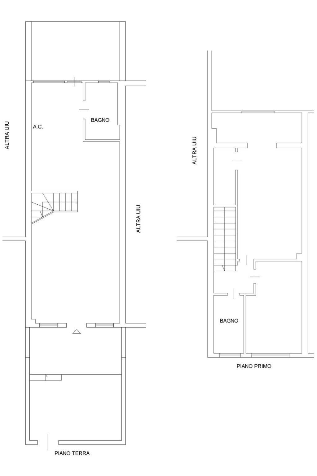
La villa si sviluppa su due livelli fuori terra:

- PIANO TERRA
Salone, cucina separata abitabile con penisola in muratura e accesso alla corte esterna, bagno finestrato con doccia in muratura.

- PRIMO PIANO
Due camere da letto matrimoniali e bagno finestrato con vasca idromassaggio.

ACCESSORI E RIVESTIMENTI
Infissi in legno con doppio vetro, riscaldamento autonomo con caldaia a condensazione Vaillant installata un anno fa e condizionatori.

Spese condominiali pari a circa € 600 annui, salvo conguaglio.

Motivi per cui vale la pena acquistare l'immobile:
- AMPIA METRATURA
- SPAZIO ESTERNO PRIVATO
- A POCHI METRI DAL MARE
- CUCINA SEPARATA ABITABILE
- SOLUZIONE SU DUE LIVELLI FUORI TERRA

———————————————————————————————————————————————-
Le indicazioni riportate e le immagini devono considerarsi indicative e non hanno alcun vincolo contrattuale. Alcune metrature sono puramente indicative. Alcuni indirizzi di Google Maps potrebbero non corrispondere esattamente all'ubicazione dell'immobile ma indicare la zona, questo al fine di garantire la privacy dei proprietari. L’Agenzia Immobiliare Nuova Axa Palocco S. r. L. con sede in Via Eschilo 186C, declina ogni responsabilità per eventuali ed involontarie incongruenze tra le effettive caratteristiche dell’immobile e la descrizione informativa.

LEGGI TUTTO

CONDIVIDI SUI SOCIAL

DATI PRINCIPALI

Riferimento
629256
Contratto
Vendita
Tipologia
Villetta a schiera
Superficie
120 mq
Locali
3
Camere da letto
2
Cucina
Abitabile
Bagni
2
Piano
Piano terra
Totale piani
2

CARATTERISTICHE

Ascensore

COSTI

Prezzo
€ 210.000,00
Spese condominiali
€ 50,00 / mese

EFFICIENZA ENERGETICA

Stato
Abitabile
Anno costruzione
1975
Riscaldamento
Autonomo
Climatizzazione
Si
Classe energetica
E
IPE
175,00 kWh/m²a

A+

A

B

C

D

175,00 kWh/m²a | Classe energetica E

E

F

G

MAPPA

ANNUNCI SIMILI

VENDITA 20
€ 280.000
Villetta a schiera in Vendita a Pomezia (Roma)
  • Trilocale
  • 160 mq
  • 2 bagni
VENDITA 18
€ 190.000
Villetta a schiera in Vendita a Pomezia (Roma)
  • Più di 5 locali
  • 180 mq
  • 3 bagni
VENDITA 12
€ 126.600
Villetta a schiera in Vendita a Pomezia (Roma)
  • Più di 5 locali
  • 54 mq
  • 1 bagno
VENDITA 20
€ 220.000
Villetta a schiera in Vendita a Pomezia (Roma)
  • Trilocale
  • 120 mq
  • 2 bagni
VENDITA 7
€ 270.000
Villetta a schiera in Vendita a Pomezia (Roma)
  • Trilocale
  • 65 mq
  • 2 bagni