Bracciano Villa unifamiliare in corso di costruzione VENDITA

Via 20 Settembre 31 - Bracciano (Roma)
€ 330.000
  • Più di 5 locali
  • 103 mq
  • 2 bagni

Villa in Vendita a Bracciano

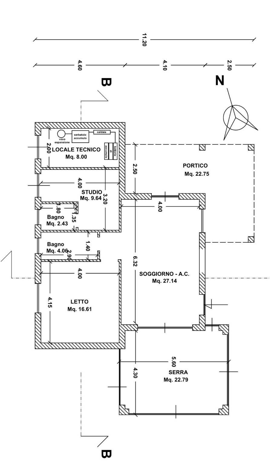
Bracciano, proponiamo un villa unifamiliare in corso di costruzione disposta su un solo livello fuori terra, composta da: soggiorno - pranzo con angolo cottura per complessivi mq. 27, una grande camera letto matrimoniale, uno studio con servizio igienico interno ed un ulteriore locale, più una grande serra solare con ampie superfici finestrate ed un portico di metri quadri 22,75. la villa attualmente in corso di costruzione sarà realizzata in classe energetica A+. Prenotiamo in corso d'opera a favore di chi ha intenzione di personalizzare la nuova casa, migliorandola in ogni suo aspetto. Direttamente in cantiere è possibile personalizzare i materiali partendo da un capitolato d'appalto già con standard di qualità elevatissimi. E' possibile acquistare il bene in oggetto personalizzando i pagamenti a stato di avanzamento lavori. Se volete informazioni potete raggiungerci in ufficio tutti i giorni dalle ore 10 alle ore 12 incluso il sabato (previo appuntamento da concordare) e vi facciamo vedere tutta la documentazione, è possibile effettuare anche un sopraluogo in presenza del responsabile di cantiere in conformità con il piano di sicurezza.
Tutte le informazioni riportate nel presente annuncio, non costituiscono in nessun modo elemento contrattuale e non possono essere intese come contratto o impegno assunto, in nessun modo onde evitare qualsiasi disguido in merito. Gli accordi, i materiali, le scadenza e qualsiasi elemento contrattuale dovrà essere concordato tramite la Elimmobiliare di Maurizio Cavalieri direttamente con il proprietario e sarà oggetto di contratto specifico.
Questa è semplicemente una pubblicità descrittiva e come tale deve essere considerata. 100/36.
Potete contattarci telefonicamente tramite il nostro numero 06.99805344 oppure tramite il mio cellulare al 335.8256807 Maurizio.
sito web: elimmobiliare.com ------
mail: elimmobiliare@hotmail.it ------
Il nostro ufficio si trova in Via XX Settembre n.° 31 (isola pedonale) a pochi passi dall'ufficio postale, venite a trovarci abbiamo altre offerte da sottoporvi.

LEGGI TUTTO

CONDIVIDI SUI SOCIAL

DATI PRINCIPALI

Riferimento
639425
Contratto
Vendita
Tipologia
Villa
Superficie
103 mq
Locali
5
Camere da letto
3
Cucina
Angolo cottura
Bagni
2
Piano
Piano terra
Totale piani
1
Box/Posto auto
Doppio

CARATTERISTICHE

Ascensore

COSTI

Prezzo
€ 330.000,00

EFFICIENZA ENERGETICA

Stato
Nuovo/In costruzione
Anno costruzione
2026
Riscaldamento
Autonomo
Climatizzazione
Predisposizione
Classe energetica
A+
IPE
175,00 kWh/m²a
175,00 kWh/m²a | Classe energetica A+

A+

A

B

C

D

E

F

G

MAPPA