BRACCIANO VILLA UNIFAMILIARE CON DEPENDANCE E PISCINA VENDITA

Via del Pianello - Bracciano (Roma)
€ 310.000
  • Più di 5 locali
  • 315 mq
  • 4 bagni

Villa in Vendita a Bracciano

BRACCIANO Località Pisciarelli.
Nelle immediate vicinanze dello storico Ponte del Pettinicchio, proponiamo in vendita un compendio immobiliare unico nel suo genere, circondato da un bosco privato in una posizione riservata e suggestiva.
La proprietà si estende su oltre 1 ettaro e mezzo di terreno privato e comprende due abitazioni indipendenti, un magazzino e una piscina interrata.
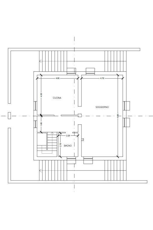
- La villa principale di 224 mq su due livelli è composta da un ampio salone con camino, cucina, tre camere, tripli servizi, vani ripostiglio.
- Magazzino/locale accessorio di 98 mq, ideale come spazio multifunzionale, deposito a servizio della piscina, area relax e benessere.
- Dependance autonoma di 66 mq perfetta per ospiti o attività ricettiva indipendente. Attualmente locata con contratto concordato con scadenza Gennaio 2028.
-Piscina interrata.
La proprietà necessita di interventi di ristrutturazione, rappresentando un’interessante opportunità di investimento in un contesto unico e naturale, caratterizzato da assoluta privacy, un’atmosfera autentica in un’area di grande valore paesaggistico.
La vicinanza al Lago di Bracciano rende questa proprietà ideale come residenza privata, country house, struttura ricettiva, retreat immerso nella natura.
Prezzo richiesto €310.000,00. Per informazioni e appuntamenti contattare il 375/74 94 500 o inviare un messaggio WhatsApp con scritto "Bracciano 310" e sarete ricontattati. Le informazioni e le planimetrie in annuncio sono indicative e non costituiscono elementi contrattuali

For sale: charming estate surrounded by woodland, just minutes from Lake Bracciano.
Located near the historic Ponte del Pettinicchio, this unique property offers total privacy within a natural forest setting, while remaining close to the lake and local amenities.
A perfect opportunity for a private residence, boutique hospitality project, wellness retreat or nature-focused investment.
A hidden gem in one of the most fascinating natural areas around Lake Bracciano.
Asking price: €310.000,00.
For information and appointments, please contact +39 375 749 4500

LEGGI TUTTO

CONDIVIDI SUI SOCIAL

DATI PRINCIPALI

Riferimento
641417
Contratto
Vendita
Tipologia
Villa
Superficie
315 mq
Locali
Più di 5
Camere da letto
5
Cucina
Abitabile
Bagni
4
Piano
Piano terra
Totale piani
3

CARATTERISTICHE

Ascensore

COSTI

Prezzo
€ 310.000,00

EFFICIENZA ENERGETICA

Stato
Da ristrutturare
Riscaldamento
Autonomo
Classe energetica
G
IPE
351,00 kWh/m²a

A+

A

B

C

D

E

F

351,00 kWh/m²a | Classe energetica G

G

MAPPA

ANNUNCI SIMILI

VENDITA 20
€ 550.000
Villa in Vendita a Bracciano (Roma)
  • Più di 5 locali
  • 260 mq
  • 4 bagni
VENDITA 20
€ 430.000
Villa in Vendita a Bracciano (Roma)
  • Più di 5 locali
  • 320 mq
  • 2 bagni
VENDITA 20
€ 399.000
Villa in Vendita a Bracciano (Roma)
  • Più di 5 locali
  • 150 mq
  • 3 bagni
VENDITA 4
€ 250.000
Villa in Vendita a Bracciano (Roma)
  • Più di 5 locali
  • 150 mq
  • 2 bagni
VENDITA 20
€ 600.000
Villa in Vendita a Manziana (Roma)
  • Più di 5 locali
  • 905 mq
  • 4 bagni