Ampia villa con giardino e posti auto VENDITA

Via del Casale d'Antoni - Roma, Zona Casalotti
€ 529.000
  • Più di 5 locali
  • 286 mq
  • 3 bagni

Villa in Vendita a Roma

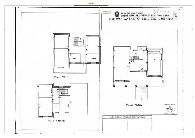
Poco distante dal Grande Raccordo Anulare, a ridosso del quartiere "Casalotti", in zona "Selva Nera" e più precisamente in via del Casale Dantoni, abbiamo il piacere di proporre, in vendita esclusiva, una villa su tre livelli fuori terra di circa 280 mq commerciali ed un livello S1 di circa 170mq diviso tra sala hobby e box auto doppio. La proprietà si presta facilmente ad essere frazionata in due unità abitative distinte con ingressi indipendenti. Allo stato attuale , superato il cancello d'ingresso diviso tra pedonale e carrabile ci troviamo su di un bel vialetto che attraversa il giardino e ci guida al patio antistante la villa. Attraversata la porta d'ingresso, alla nostra destra entriamo nella cucina, grande e luminosa con un camino al suo interno, mentre a sinistra possiamo entrare nel salone doppio, anch'esso molto luminoso. Sullo stesso piano troviamo anche un bagno di servizio ed un secondo ingresso che dà nel retro della villa. Tramite una scala in marmo andiamo al primo dei due piani superiori, composto da tre camere matrimoniali ed una camera più piccola che può essere utilizzata come stanza di servizio o cabina armadio. Sempre al primo piano c'è un bagno con vasca ed un bel terrazzo con vista aperta sulla campagna antistante. Salendo al secondo piano, troviamo altre tre ampie camere e un bagno. Al piano seminterrato, di circa 170mq, che per la conformazione del terreno su cui è costruito l'immobile, è sopra il livello stradale, troviamo un grande spazio con due locali tecnici, due/tre posti auto ed una bella sala hobby completa di camino e cucina a vista. Circonda la villa un giardino di circa 800mq, curatissimo, con alberi, piante e fiori per gli amanti della natura. L'immobile è dotato di pavimenti in gres, infissi in pvc e riscaldamento autonomo. Richiesta euro 529.000,00 Rif VP DANTONI

LEGGI TUTTO

CONDIVIDI SUI SOCIAL

DATI PRINCIPALI

Riferimento
642840
Contratto
Vendita
Tipologia
Villa
Superficie
286 mq
Locali
Più di 5
Camere da letto
Più di 5
Cucina
Abitabile
Bagni
3
Piano
Piano terra
Totale piani
3
Box/Posto auto
Doppio

CARATTERISTICHE

Ascensore

COSTI

Prezzo
€ 529.000,00

EFFICIENZA ENERGETICA

Stato
Da ristrutturare
Riscaldamento
Autonomo
Classe energetica
F
IPE
175,00 kWh/m²a

A+

A

B

C

D

E

175,00 kWh/m²a | Classe energetica F

F

G

MAPPA

ANNUNCI SIMILI

VENDITA 18
€ 950.000
Villa in Vendita a Roma, Zona Casalotti
  • Più di 5 locali
  • 782 mq
  • 4 bagni
VENDITA 20
€ 310.000
Villa in Vendita a Roma (Roma)
  • Più di 5 locali
  • 175 mq
  • 3 bagni
VENDITA 20
€ 385.000
Villa in Vendita a Roma (Roma)
  • Più di 5 locali
  • 170 mq
  • 2 bagni
VENDITA 20
€ 449.000
Villa in Vendita a Roma, Zona Casalotti
  • Più di 5 locali
  • 200 mq
  • 3 bagni
VENDITA 20
€ 665.000
Villa in Vendita a Roma, Zona Casalotti
  • Più di 5 locali
  • 220 mq
  • 4 bagni