UFFICIO VIA SALARIA AFFITTO

Via Salaria - Roma, Zona Settebagni
€ 10.000 mensili
  • 1 locale
  • 830 mq
  • 3 bagni

Ufficio in Affitto a Roma

GABETTI AGENZIA PARIOLI
Richiesta € 10.000,00 mese.
Via Salaria, adiacente uscita GRA e autostrada A1, in prossimità del Salaria Sport Village, proponiamo la locazione di un ufficio arredato di grande metratura su un livello con ampia disponibilità di posti auto coperti e scoperti, posizionato in un prestigioso complesso sulle rive del Tevere, con ampi spazi a verde.
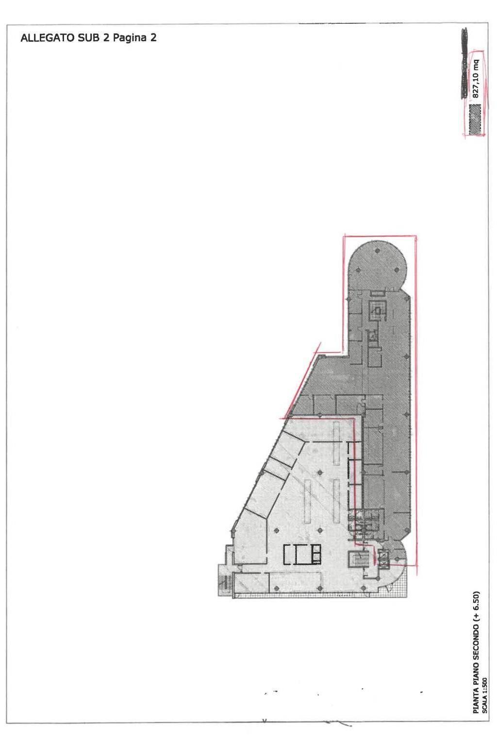
L'ufficio completo di tutti gli arredi, è posto al secondo piano, servito da scale e ascensori ed è composto da un ampio open space di circa 830 mq (attualmente configurato con sale riunioni e circa 70 postazioni di lavoro e servizi).

Le presenti informazioni e planimetrie sono indicative e non costituiscono elemento contrattuale.

Per appuntamenti ed informazioni: Agenzia Gabetti Parioli.
I nostri uffici si trovano in Viale Parioli 77/D – 00197 Roma e sono aperti dal lunedì al venerdì dalle 9.00 alle 19.00 - il sabato dalle 9.00 alle 13.00.
Ci occupiamo da anni della vendita e della locazione di tutti gli immobili siti nei quartieri più residenziali di Roma (appartamenti, uffici, negozi, magazzini.. . ), forti dell'esperienza del Gruppo Gabetti, leader in Italia, presente nel campo immobiliare da quasi 70 anni, che garantisce affidabilità e professionalità. Siamo a disposizione per una valutazione reale, gratuita e senza impegno del Vostro immobile, non esitate a contattarci.

LEGGI TUTTO

CONDIVIDI SUI SOCIAL

DATI PRINCIPALI

Riferimento
632213
Contratto
Affitto
Tipologia
Immobile - Ufficio
Superficie
830 mq
Locali
1
Bagni
3
Piano
2 °
Totale piani
2
Box/Posto auto
Doppio

CARATTERISTICHE

Ascensore Arredato Allarme

COSTI

Canone
Affitto € 10.000,00 al mese
Tipo locazione
4+4

EFFICIENZA ENERGETICA

Stato
Ristrutturato
Anno costruzione
2000
Riscaldamento
Autonomo
Climatizzazione
Si
Classe energetica
D
IPE
175,00 kWh/m²a

A+

A

B

C

175,00 kWh/m²a | Classe energetica D

D

E

F

G

MAPPA

ANNUNCI SIMILI

AFFITTO 7
€ 12.000 mensili
Ufficio in Affitto a Roma (Roma)
  • Più di 5 locali
  • 805 mq
  • 4 bagni
AFFITTO 11
€ 11.000 mensili
Ufficio in Affitto a Roma, Zona Labaro
  • Più di 5 locali
  • 1000 mq
  • 4 bagni
AFFITTO
€ 450 mensili
Ufficio in Affitto a Roma (Roma)
  • 1 locale
  • 28 mq
  • 1 bagno
AFFITTO 5
Trattativa Riservata
Ufficio in Affitto a Roma, Zona Labaro
  • Più di 5 locali
  • 680 mq
  • 4 bagni