UFFICIO VIA DEL MAGGIOLINO AFFITTO

Via del Maggiolino - Roma (Roma)
€ 3.500 mensili
  • 4 locali
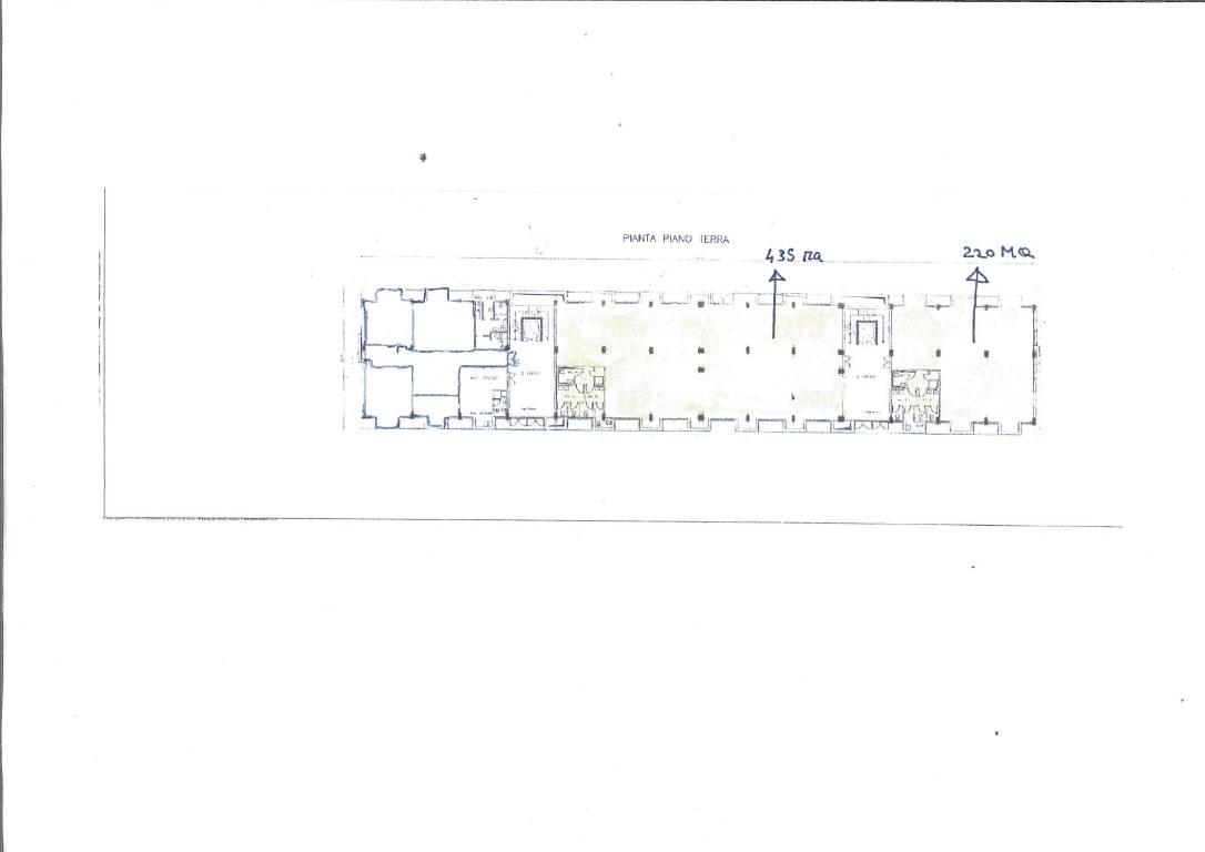
  • 435 mq
  • 3 bagni

Ufficio in Affitto a Roma

Tra Via Collatina e Via Prenestina, all'interno del GRA (Grande Raccordo Anulare), e più precisamente in VIA DEL MAGGIOLINO, proponiamo in Locazione un UFFICIO A/10 DI 435 MQ posto al PIANO TERRA (di 3 piani) di uno stabile a vetri anni '70 con ascensori e servizio di portineria. L'immobile, che prende tutto il piano, è composto da ingresso, varie stanze, corridoi, disimpegni, reception, un'ampia sala riunioni, stanze archivio, ripostigli e servizi igienici indipendenti. A completare la proprietà, 5 posti auto scoperti nel piazzale antistante e 7 coperti nell'autorimessa. Inoltre, è un ufficio "open space" con possibilità di frazionamento utilizzando pareti mobili. Lo stabile è dotato di servizio di guardiania notturna e diurna e servizio di pulizia degli spazi comuni. Attualmente è in corso l’installazione di un impianto fotovoltaico sulla copertura dello stabile. C'è la possibilità di incrementare la superficie degli stessi fino ad un massimo di circa 1.655 mq (piano terra ed eventuale ufficio al primo piano) e di n. 4 magazzini di rispettivi mq 45- 90 - 150 - 175 con altezza massima di 4,65 metri. Euro 3.500,00 mensili comprensivi di quota condominiale. Per info 06 7020300, cell. 333 9353152, email: roma.appio@grimaldifranchising.it, sito web: www.grimaldiappio.it

LEGGI TUTTO

CONDIVIDI SUI SOCIAL

DATI PRINCIPALI

Riferimento
637737
Contratto
Affitto
Tipologia
Immobile - Ufficio
Superficie
435 mq
Locali
4
Bagni
3
Piano
Piano terra
Totale piani
3
Box/Posto auto
Doppio

CARATTERISTICHE

Ascensore Allarme

COSTI

Canone
Affitto € 3.500,00 al mese
Tipo locazione
4+4

EFFICIENZA ENERGETICA

Stato
Abitabile
Anno costruzione
1970
Riscaldamento
Centralizzato
Climatizzazione
Si
Classe energetica
G
IPE
175,00 kWh/m²a

A+

A

B

C

D

E

F

175,00 kWh/m²a | Classe energetica G

G

MAPPA

ANNUNCI SIMILI

AFFITTO 20
€ 1.900 mensili
Ufficio in Affitto a Roma (Roma)
  • Più di 5 locali
  • 220 mq
  • 3 bagni
AFFITTO 6
€ 4.750 mensili
Ufficio in Affitto a Roma (Roma)
  • Più di 5 locali
  • 300 mq
  • 4 bagni
AFFITTO 2
€ 12.500 mensili
Ufficio in Affitto a Roma (Roma)
  • Più di 5 locali
  • 960 mq
  • 4 bagni
AFFITTO 20
€ 1.600 mensili
Ufficio in Affitto a Roma (Roma)
  • Più di 5 locali
  • 155 mq
  • 2 bagni
AFFITTO 20
€ 2.450 mensili
Ufficio in Affitto a Roma (Roma)
  • Più di 5 locali
  • 240 mq
  • 2 bagni
AFFITTO 16
€ 6.400 mensili
Ufficio in Affitto a Roma (Roma)
  • Più di 5 locali
  • 700 mq
  • 4 bagni