COLLATINA VIA DEL MAGGIOLINO AFFITTO

Via del Maggiolino - Roma (Roma)
€ 1.900 mensili
  • Più di 5 locali
  • 220 mq
  • 3 bagni

Ufficio in Affitto a Roma

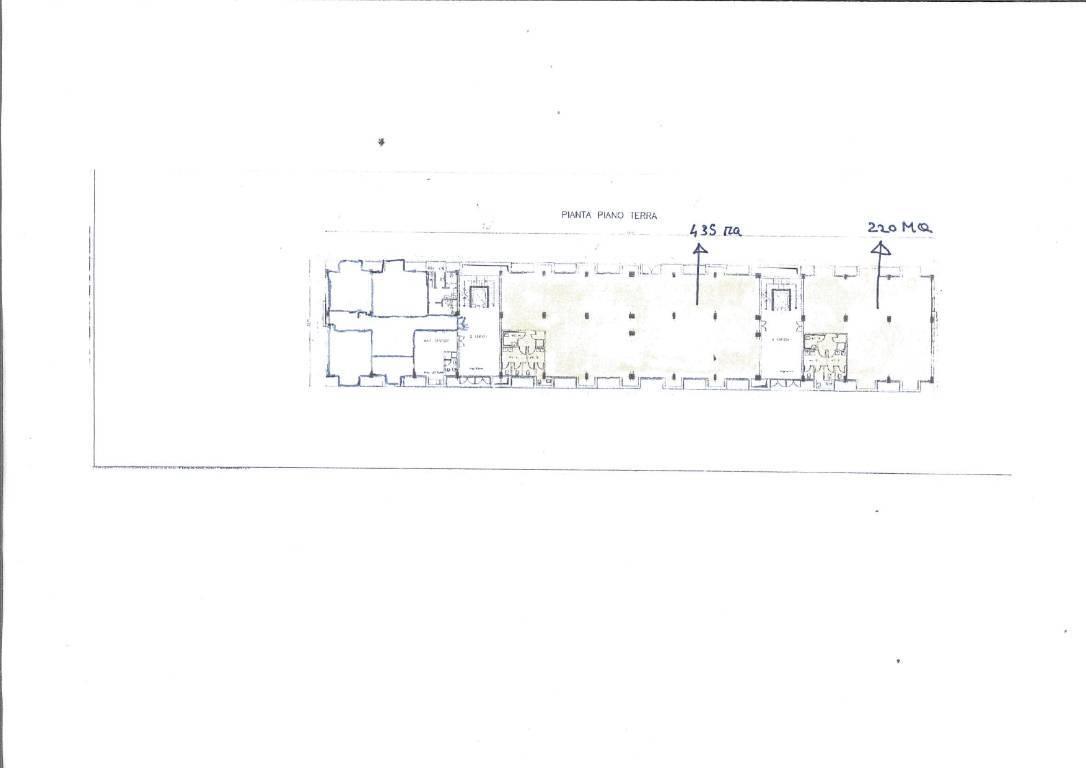
Tra Via Collatina e Via Prenestina, all'interno del GRA (Grande Raccordo Anulare), e più precisamente in VIA DEL MAGGIOLINO, proponiamo in Locazione un UFFICIO A/10 DI 220 MQ posto al PIANO TERRA (di 3 piani) di uno stabile a vetri anni '70 con ascensori e servizio di portineria. L'immobile, che prende tutto il piano, è composto da: ingresso singolo, varie stanze, corridoi, disimpegni, receptions, un'ampia sala riunioni, stanze archivio, ripostigli e servizi igienici indipendenti. A completare la proprietà, 2 posti auto scoperti nel piazzale antistante e 4 coperti nell'autorimessa. Euro 1.900,00 mensili comprensivi di quota condominiale.
Inoltre, è un ufficio "open space" con possibilità di frazionamento utilizzando pareti mobili. Lo stabile è dotato di servizio di guardiania notturna e diurna e servizio di pulizia degli spazi comuni. Attualmente è in corso l’installazione di un impianto fotovoltaico sulla copertura dello stabile. C'è la possibilità di incrementare la superficie degli stessi fino ad un massimo di circa 1.655 mq (piano terra ed eventuale ufficio al primo piano) e di n. 4 magazzini di rispettivi mq 45- 90 - 150 - 175 con altezza massima di 4,65 metri.
Per info 06 7020300, cell. 333 9353152, email: roma.appio@grimaldifranchising.it, sito web: www.grimaldiappio.it

LEGGI TUTTO

CONDIVIDI SUI SOCIAL

DATI PRINCIPALI

Riferimento
637738
Contratto
Affitto
Tipologia
Immobile - Ufficio
Superficie
220 mq
Locali
Più di 5
Bagni
3
Piano
Piano terra
Totale piani
3
Box/Posto auto
Doppio

CARATTERISTICHE

Ascensore Allarme

COSTI

Canone
Affitto € 1.900,00 al mese
Tipo locazione
4+4

EFFICIENZA ENERGETICA

Stato
Abitabile
Anno costruzione
1970
Riscaldamento
Centralizzato
Climatizzazione
Si
Classe energetica
G
IPE
175,00 kWh/m²a

A+

A

B

C

D

E

F

175,00 kWh/m²a | Classe energetica G

G

MAPPA

ANNUNCI SIMILI

AFFITTO 2
€ 12.500 mensili
Ufficio in Affitto a Roma (Roma)
  • Più di 5 locali
  • 960 mq
  • 4 bagni
AFFITTO 20
€ 2.450 mensili
Ufficio in Affitto a Roma (Roma)
  • Più di 5 locali
  • 240 mq
  • 2 bagni
AFFITTO 16
€ 6.400 mensili
Ufficio in Affitto a Roma (Roma)
  • Più di 5 locali
  • 700 mq
  • 4 bagni
AFFITTO 17
€ 2.900 mensili
Ufficio in Affitto a Roma, Zona Settecamini
  • Più di 5 locali
  • 300 mq
  • 3 bagni
AFFITTO 11
€ 2.900 mensili
Ufficio in Affitto a Roma (Roma)
  • Più di 5 locali
  • 250 mq
  • 2 bagni