Ufficio EUR - MONTAGNOLA AFFITTO

Via Adolfo Ravà 104 - Roma (Roma)
€ 4.500 mensili
  • Più di 5 locali
  • 350 mq
  • 4 bagni

Ufficio in Affitto a Roma

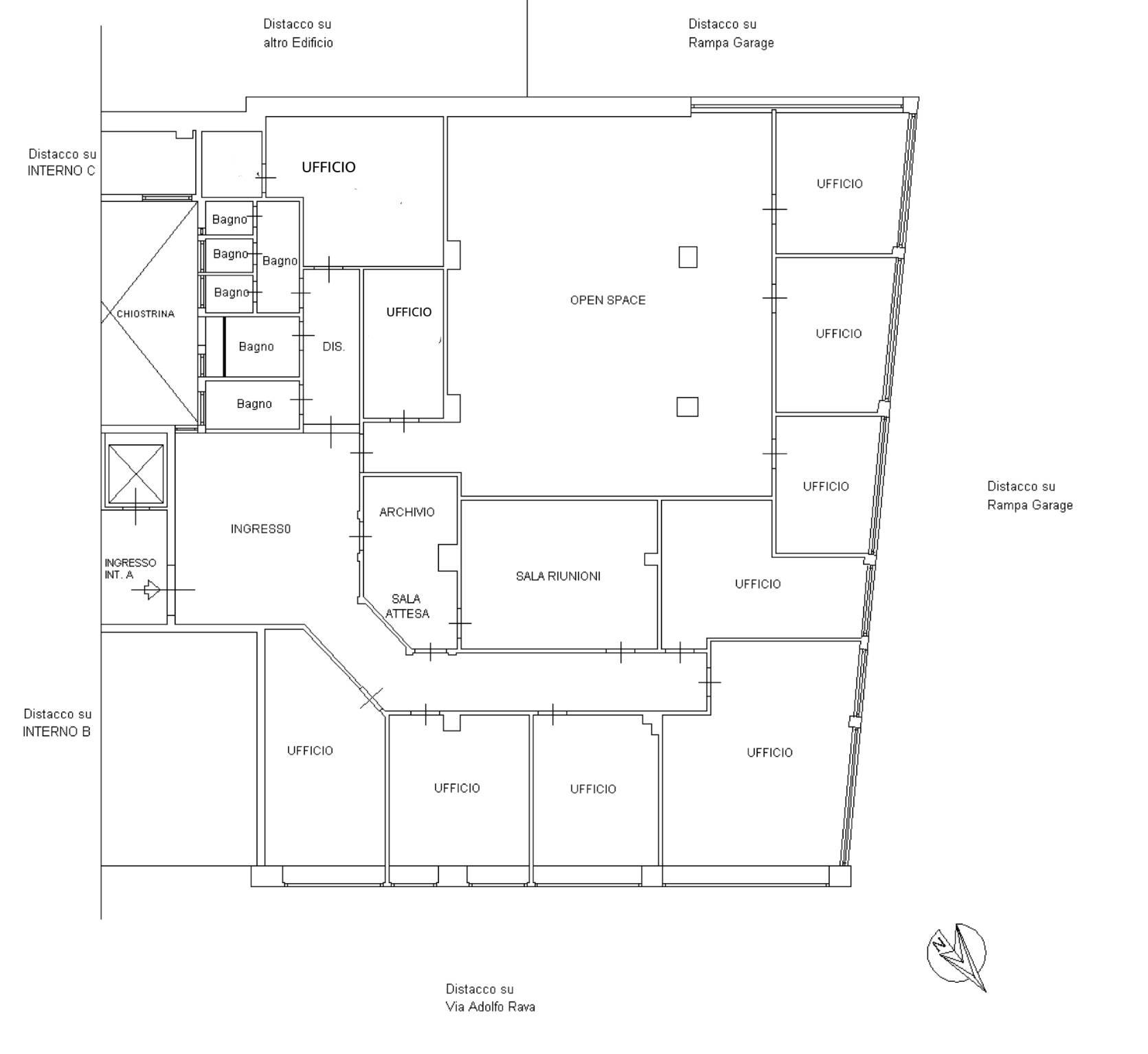
Zona EUR- MONTAGNOLA Via Adolfo Ravà proponiamo in stabile con portiere e privo di barriere architettoniche, immobile accatastato A/10 posto al 1° piano. L’ufficio, elegante e luminoso, si sviluppa su un unico piano di 350 mq, con pavimenti in marmo e parquet.
Suddiviso in una area operativa e una direzionale, l’immobile consiste in una grande reception con sala di attesa adiacente, area operativa composta di 4 uffici e un open space di 80 mq., area direzionale con sala riunioni arredata e cablata e 5 uffici comprendenti stanza dirigenziale. Presente vano archivio arredato con scaffalatura su misura e armadi di legno incassati in alcuni uffici (possibilità altro arredo).È presente stanza blindata in area operativa. Servizi igienici composti da 5 di cui uno dedicato a persone diversamente abili.
L’ufficio ha una tripla esposizione. Tutti gli ambienti sono cablati per telefonia/dati e corredati da sensori connessi al sistema di allarme e dispongono di impianto di condizionamento autonomo caldo e freddo. È anche presente cassaforte a combinazione.
Caratteristiche principali:
• Ingresso di rappresentanza con ampia reception e salotto di attesa
• Area operativa composta da 4 uffici privati, un open space di 80 mq e vano archivio attrezzato
• Area direzionale con sala riunioni cablata e 5 uffici, tra cui una stanza dirigenziale
• Stanza blindata in area operativa
• Armadiature archivio in legno su misura
• Servizi igienici per uomini, donne e persone con ridotta mobilità
• Impianto di climatizzazione autonomo caldo/freddo
• Cablaggio telefonia/dati e centralino
• Sistemi di sicurezza: porta blindata, sensori di allarme, grate alle finestre
• Illuminazione di emergenza

La posizione è strategica, in un contesto direzionale di prestigio, circondato da sedi di importanti enti e aziende, con ottimi collegamenti e parcheggi nelle immediate vicinanze.
Soluzione ideale per studi professionali, aziende, sedi di rappresentanza e società di consulenza che ricercano un ufficio elegante, funzionale e di immagine nel quartiere EUR di Roma.Nella zona sono presenti servizi di ogni genere ed è ben collegata ,metropolitana linea B "Marconi" a 1 Km circa. L'accessibilità veicolare risulta facile per i collegamenti con il centro e l'aeroporto Leonardo da Vinci, tramite via Cristoforo Colombo e via Ostiense.

LEGGI TUTTO

CONDIVIDI SUI SOCIAL

DATI PRINCIPALI

Riferimento
629018
Contratto
Affitto
Tipologia
Immobile - Ufficio
Superficie
350 mq
Locali
Più di 5
Bagni
4
Piano
1 °
Totale piani
5

CARATTERISTICHE

Ascensore Allarme

COSTI

Canone
Affitto € 4.500,00 al mese
Tipo locazione
4+4
Spese condominiali
€ 260,00 / mese, non incluse nel canone

EFFICIENZA ENERGETICA

Stato
Abitabile
Anno costruzione
1990
Riscaldamento
Autonomo
Climatizzazione
Si
Classe energetica
D
IPE
87,00 kWh/m²a

A+

A

B

C

87,00 kWh/m²a | Classe energetica D

D

E

F

G

MAPPA

ANNUNCI SIMILI

AFFITTO 20
€ 10.000 mensili
Ufficio in Affitto a Roma (Roma)
  • Più di 5 locali
  • 580 mq
  • 1 bagno
AFFITTO 11
€ 4.500 mensili
Ufficio in Affitto a Roma (Roma)
  • Più di 5 locali
  • 350 mq
AFFITTO 9
€ 9.000 mensili
Ufficio in Affitto a Roma (Roma)
  • Più di 5 locali
  • 700 mq