COLOMBO - ufficio ampia metratura in locazione AFFITTO

Via Cristoforo Colombo - Roma, Zona Garbatella
€ 17.850 mensili
  • Più di 5 locali
  • 850 mq
  • 3 bagni

Ufficio in Affitto a Roma

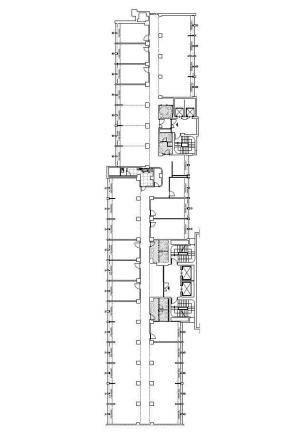
COLOMBO - in centro direzionale fronte via Cristoforo Colombo, IPI propone in locazione uffici, per una superficie di 850 mq, che si trovano al 4° piano dello stabile.
Gli uffici dispongono di ampie finestrature perimetrali che garantiscono un'ottima luminosità. Gli spazi interni sono modulari e risultano molto flessibili, in quanto suddivisi principalmente da pareti mobili e pareti vetrate; la struttura a trave/pilastro aiuta a modulare la distribuzione interna di layout.

I locali sono inoltre rifiniti con controsoffitti e pavimentazione vinilica a terra, sala CED condizionata, aria condizionata e riscaldamento con distribuzione a fancoil con impianto centralizzato, 3 gruppi bagno di cui uno adatto alle persone con mobilità ridotta.

L'immobile è ubicato in Via Cristoforo Colombo, una delle principali arterie viarie di Roma, che collega il Centro con l'EUR ed il litorale. La zona è ottimamente servita da linee di autobus, dalla stazione ferroviaria di Ostiense, nonché dalla metropolitana B fermata "Garbatella".

IPI è un gruppo specializzato nella consulenza e nei servizi immobiliari a investitori e operatori istituzionali, aziende e privati. Attraverso le diverse linee di business delle società controllate, IPI copre a 360 gradi i servizi al real-estate: gestione, valorizzazione, promozione e sviluppo immobiliare, consulenza, intermediazione, valutazioni, due diligence e analisi di mercato. IPI è anche una investment company con un rilevante patrimonio immobiliare proprio.

IPI Agency è presente sul territorio nazionale, con filiali a Torino, Milano, Genova, Bologna, Padova, Roma, Napoli e Bari

Filiale di Roma
Via Cavour 181/A
00184 Roma (RM)
Tel. 06.89026757
roma-corporate@ipi-agency.com
www.ipi-agency.com

LEGGI TUTTO

CONDIVIDI SUI SOCIAL

DATI PRINCIPALI

Riferimento
634691
Contratto
Affitto
Tipologia
Immobile - Ufficio
Superficie
850 mq
Locali
Più di 5
Bagni
3
Piano
4 °
Totale piani
8

CARATTERISTICHE

Ascensore Semi-arredato

COSTI

Canone
Affitto € 17.850,00 al mese
Tipo locazione
4+4
Spese condominiali
€ 2,00 / mese, non incluse nel canone

EFFICIENZA ENERGETICA

Stato
Ristrutturato
Anno costruzione
1970
Riscaldamento
Centralizzato
Climatizzazione
Si
Classe energetica
G
IPE
175,00 kWh/m²a

A+

A

B

C

D

E

F

175,00 kWh/m²a | Classe energetica G

G

MAPPA

ANNUNCI SIMILI

AFFITTO 20
€ 3.500 mensili
Ufficio in Affitto a Roma, Zona San Paolo
  • Più di 5 locali
  • 221 mq
  • 3 bagni
AFFITTO 20
€ 2.400 mensili
Ufficio in Affitto a Roma (Roma)
  • Più di 5 locali
  • 185 mq
  • 2 bagni
AFFITTO 20
€ 4.500 mensili
Ufficio in Affitto a Roma (Roma)
  • Più di 5 locali
  • 350 mq
  • 4 bagni