ZAGAROLO, VIA DEL CERQUONE CASALE DI PRESTIGIO CON PISCINA VENDITA

Via Cerquone - Zagarolo (Roma)
€ 650.000
  • Più di 5 locali
  • 370 mq
  • 3 bagni

Rustico/Casale in Vendita a Zagarolo

Zagarolo RIF. 552
In posizione collinare ed assolata, adiacente il paese e precisamente in Via del Cerquone, proponiamo ampia proprietà di prestigio, unica nel suo genere, composta da un ampio casale di mq 300 con giardino di mq 5000, oltre dependance.
Il casale, dislocato su due livelli fuori terra, è composto al piano terra da un portico di copertura del portone d’ingresso dal quale si immette ad un disimpegno, il quale divide il piano in due parti, a destra dell’ingresso troviamo un ampia zona relax con angolo tv e termo-camino, camera da letto matrimoniale con ripostiglio (attualmente adibita a studio), servizio completo di tutti i servizi igienici con piatto doccia.
A sinistra dell’ingresso, invece troviamo un elegante sala da pranzo che immette, tramite un portone in legno risalente all’epoca di costruzione del casale, alla cucina abitabile fornita di camino con affaccio triplo, di cui uno con porta finestra che dà accesso alla serra bio-climatica, l’altro con affaccio sulla piscina.
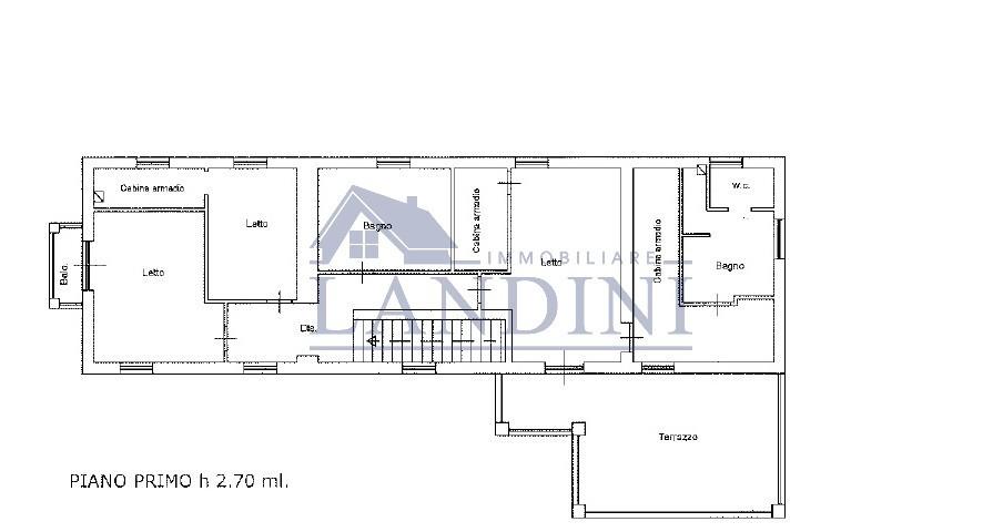
Al piano primo è posta la zona notte, composta da due camere da letto di cui una con cabina armadio e una con balcone con affaccio sulla piscina, servizio ampio di mq 14 e una camera padronale con due cabine armadio e servizio igienico fornito di doccia e vasca completamente nuovo, il tutto con accesso al terrazzo a livello di mq 33
Il casale ha ottime rifiniture, pavimento in cotto realizzato a mano per la zona giorno e scala per accedere al piano superiore, parquet per la zona notte, porte in legno massello, alcune risalenti all’epoca di realizzazione, infissi in alluminio doppio vetro, persiane in ferro e grate da 22 cm per la zona giorno.
Termo arredi in alluminio in tutti gli ambienti, impianto elettrico bticino leaving, impianto d’allarme (opzionale).
Completa la proprietà un giardino di mq 5000, con piante da frutto, ulivi, siepi, sul terreno sono poste due cisterne per la raccolta dell’acqua piovana, ed un grotta caratteristica del posto in ottime condizioni conservative, locali magazzini e ripostigli.
Piscina di ml 12x6 completamente ristrutturata (sostituzione motore + telo), posta di fronte al casale in posizione assolata. Completano la proprietà, tettoie per ricovero auto, pergole, ecc..
Dependance con entrata indipendente di mq 70, composta da salone, cucina con zona pranzo, doppi servizi, due camere da letto, studio, portico e terreno di mq 800.
Impianti: tutti presenti e nuovi a norma, riscaldamento in tubi di rame, con caldaia autonoma, termo camino con produzione di acqua calda sanitaria, impianto elettrico bticino, pannelli solari da 8 KW
Utenze: pozzo artesiano, luce, gas bombolone, fossa biologica, acqua diretta.
Metratura: casale mq 300, serra mq 52, dependance mq 70 + altri mq 25 adibiti a cantina, terrazzo di mq 33
Ottimo stato.
Anno ristrutturazione: 2023
Classe energetica “F”
Prezzo: € 650.000,00

Immobiliare Landini David
Piazza Santa Maria 10
00039 Zagarolo (rm)

LEGGI TUTTO

CONDIVIDI SUI SOCIAL

DATI PRINCIPALI

Riferimento
636200
Contratto
Vendita
Tipologia
Rustico/Casale
Superficie
370 mq
Locali
Più di 5
Camere da letto
4
Cucina
Abitabile
Bagni
3
Piano
Piano terra
Totale piani
2
Box/Posto auto
Doppio

CARATTERISTICHE

Ascensore

COSTI

Prezzo
€ 650.000,00

EFFICIENZA ENERGETICA

Stato
Ristrutturato
Anno costruzione
1900
Riscaldamento
Autonomo
Classe energetica
F
IPE
175,00 kWh/m²a

A+

A

B

C

D

E

175,00 kWh/m²a | Classe energetica F

F

G

MAPPA

ANNUNCI SIMILI

VENDITA 12
€ 749.000
Rustico/Casale in Vendita a San Cesareo (Roma)
  • Più di 5 locali
  • 450 mq
  • 3 bagni
VENDITA 18
€ 69.000
Rustico/Casale in Vendita a Cave (Roma)
  • Più di 5 locali
  • 151 mq
  • 3 bagni
VENDITA 19
€ 385.000
Rustico/Casale in Vendita a Roma, Zona Finocchio
  • Più di 5 locali
  • 398 mq
  • 4 bagni
VENDITA 20
€ 350.000
Rustico/Casale in Vendita a Artena, Frazione Macere
  • Più di 5 locali
  • 600 mq
  • 4 bagni
VENDITA 20
€ 2.500.000
Rustico/Casale in Vendita a Roma, Zona Fontana Candida
  • Più di 5 locali
  • 31595 mq
  • 4 bagni
VENDITA 20
€ 858.000
Rustico/Casale in Vendita a Tivoli (Roma)
  • Più di 5 locali
  • 350 mq
  • 2 bagni
VENDITA 20
€ 435.000
Rustico/Casale in Vendita a Velletri (Roma)
  • Più di 5 locali
  • 270 mq
  • 2 bagni
VENDITA 13
€ 1.200.000
Rustico/Casale in Vendita a Velletri (Roma)
  • Più di 5 locali
  • 900 mq
  • 4 bagni
VENDITA 20
€ 550.000
Rustico/Casale in Vendita a Marino (Roma)
  • Più di 5 locali
  • 400 mq
  • 4 bagni