Tor San Lorenzo rustico ville bifamiliari con giardino VENDITA

Via degli Ippocastani - Ardea (Roma)
€ 69.000
  • Più di 5 locali
  • 190 mq
  • 2 bagni

Rustico/Casale in Vendita a Ardea

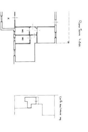
Tor San Lorenzo, adiacente al mare, immobile allo stato grezzo, in corso di costruzione, destinato a due ville bifamiliari, unico livello ed una unità immobiliare adibita a cantina posta al piano seminterrato con corte esclusiva. Circonda la costruzione un' ampio giardino. Si accede alla proprietà da una strada privata. Una villa è formata da 4 vani e la seconda da 6 vani.

I lotti sono in una area residenziale a pochi minuti di auto dal mare, vicina a tutti i servizi e ben servita dal trasporto pubblico.
Una soluzione ideale per chi desidera una casa spaziosa e personalizzabile, in una zona tranquilla e ben servita.

Le descrizioni del presente annuncio sono puramente indicative e pertanto non costituiscono vincolo contrattuale.

LEGGI TUTTO

CONDIVIDI SUI SOCIAL

DATI PRINCIPALI

Riferimento
625991
Contratto
Vendita
Tipologia
Rustico/Casale
Superficie
190 mq
Locali
Più di 5
Camere da letto
4
Cucina
Cucinotto
Bagni
2
Piano
Piano terra
Totale piani
1

CARATTERISTICHE

Ascensore

COSTI

Prezzo
€ 69.000,00

EFFICIENZA ENERGETICA

Stato
Da ristrutturare
Anno costruzione
1980
Classe energetica
G
IPE
175,00 kWh/m²a

A+

A

B

C

D

E

F

175,00 kWh/m²a | Classe energetica G

G

MAPPA

ANNUNCI SIMILI

VENDITA 20
€ 350.000
Rustico/Casale in Vendita a Pomezia (Roma)
  • Più di 5 locali
  • 318 mq
  • 2 bagni
VENDITA 20
€ 550.000
Rustico/Casale in Vendita a Nettuno (Roma)
  • Più di 5 locali
  • 400 mq
  • 4 bagni
VENDITA 20
€ 749.000
Rustico/Casale in Vendita a Albano Laziale (Roma)
  • Più di 5 locali
  • 400 mq
  • 4 bagni
VENDITA 13
€ 1.200.000
Rustico/Casale in Vendita a Velletri (Roma)
  • Più di 5 locali
  • 900 mq
  • 4 bagni
VENDITA 20
€ 540.000
Rustico/Casale in Vendita a Castel Gandolfo (Roma)
  • Più di 5 locali
  • 420 mq
  • 3 bagni
VENDITA 20
€ 550.000
Rustico/Casale in Vendita a Marino (Roma)
  • Più di 5 locali
  • 400 mq
  • 4 bagni