ARICCIA Casale in Vendita VENDITA

Via Montegiove 9 - Ariccia (Roma)
€ 215.000
  • Più di 5 locali
  • 200 mq
  • 4 bagni

Rustico/Casale in Vendita a Ariccia

Proponiamo in vendita un casale situato in una posizione tranquilla e immersa nel verde, ideale per chi desidera vivere a contatto con la natura pur mantenendo ampi spazi abitativi.

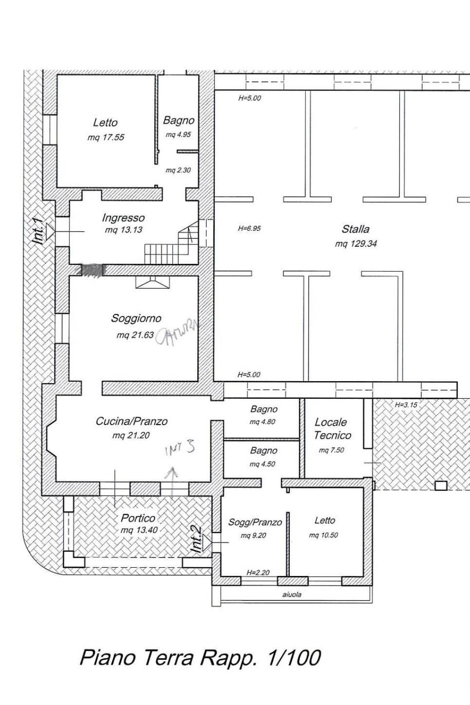
L’immobile, di circa 200 mq complessivi, è suddiviso in due unità abitative indipendenti, offrendo diverse possibilità di utilizzo: abitazione per più nuclei familiari, struttura ricettiva o investimento per locazioni turistiche.

La proprietà comprende inoltre un magazzino di circa 150 mq, funzionale come deposito, laboratorio o locale di servizio.

L’abitazione è libera su quattro lati (esposizione Nord, Sud, Est, Ovest) e circondata da un terreno di circa 2.000 mq, che garantisce privacy, luminosità e ampi spazi esterni da vivere.
Euro 215.000,00

Edificata negli anni ’70, la casa si presenta da ristrutturare, consentendo la personalizzazione degli ambienti secondo le proprie esigenze.
La distribuzione interna comprende sei locali e tre bagni.

Soluzione ideale per chi cerca un’abitazione indipendente in contesto sereno e riservato, con ampi spazi sia interni che esterni.

LEGGI TUTTO

CONDIVIDI SUI SOCIAL

DATI PRINCIPALI

Riferimento
633846
Contratto
Vendita
Tipologia
Rustico/Casale
Superficie
200 mq
Locali
Più di 5
Camere da letto
Più di 5
Cucina
Abitabile
Bagni
4
Piano
Piano terra
Totale piani
2
Box/Posto auto
Doppio

CARATTERISTICHE

Ascensore

COSTI

Prezzo
€ 215.000,00

EFFICIENZA ENERGETICA

Stato
Da ristrutturare
Anno costruzione
1970
Riscaldamento
Autonomo
Classe energetica
G
IPE
351,00 kWh/m²a

A+

A

B

C

D

E

F

351,00 kWh/m²a | Classe energetica G

G

MAPPA

ANNUNCI SIMILI

VENDITA 13
€ 1.200.000
Rustico/Casale in Vendita a Velletri (Roma)
  • Più di 5 locali
  • 900 mq
  • 4 bagni
VENDITA 20
€ 540.000
Rustico/Casale in Vendita a Castel Gandolfo (Roma)
  • Più di 5 locali
  • 420 mq
  • 3 bagni
VENDITA 20
€ 550.000
Rustico/Casale in Vendita a Marino (Roma)
  • Più di 5 locali
  • 400 mq
  • 4 bagni
VENDITA 20
€ 435.000
Rustico/Casale in Vendita a Velletri (Roma)
  • Più di 5 locali
  • 270 mq
  • 2 bagni
VENDITA 20
€ 350.000
Rustico/Casale in Vendita a Pomezia (Roma)
  • Più di 5 locali
  • 318 mq
  • 2 bagni