Zona Trieste – Via Chiana VENDITA

Via Chiana - Roma (Roma)
€ 130.000
  • 2 locali
  • 110 mq
  • 1 bagno

Negozio in Vendita a Roma

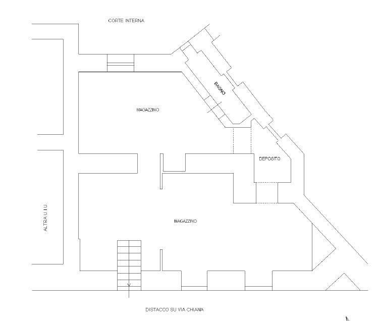
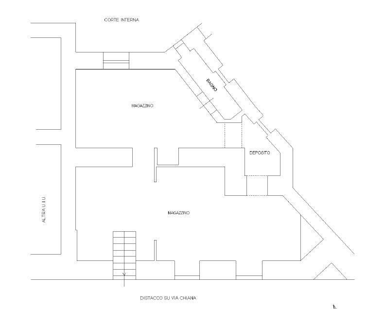
Proponiamo in vendita un immobile di circa 110 mq, attualmente adibito a showroom di mobili.
L’immobile si presenta in ottime condizioni ed è così composto:
ingresso,
ampio open space con tre vetrine su strada, che garantiscono ottima visibilità e luminosità,
secondo open space con finestra che affaccia sulla corte interna,
locale deposito finestrato,
servizio finestrato.
La proprietà viene venduta locata, con contratto di locazione in essere con scadenza al 30/04/2031, garantendo una rendita annua di € 12.600,00.
Soluzione ideale per uso investimento.

CONDIVIDI SUI SOCIAL

DATI PRINCIPALI

Riferimento
637636
Contratto
Vendita
Tipologia
Immobile - Negozio
Superficie
110 mq
Locali
2
Bagni
1
Piano
Seminterrato
Totale piani
6

CARATTERISTICHE

Ascensore Allarme

COSTI

Prezzo
€ 130.000,00
Spese condominiali
€ 25,00 / mese

EFFICIENZA ENERGETICA

Stato
Ristrutturato
Riscaldamento
Centralizzato
Classe energetica
G
IPE
351,00 kWh/m²a

A+

A

B

C

D

E

F

351,00 kWh/m²a | Classe energetica G

G

MAPPA