Vineria Quadraro Vecchio VENDITA

Via dei Quintili - Roma (Roma)
€ 72.000
  • 3 locali
  • 80 mq
  • 3 bagni

Negozio in Vendita a Roma

Lo Studio Sefi propone in vendita un’avviata attività di vineria, situata nel cuore del Quadraro Vecchio, in posizione strategica e ad alto passaggio pedonale, a breve distanza dalla Metro Porta Furba/Quadraro.

L’attività rappresenta una realtà ben avviata, con clientela fidelizzata e un format riconoscibile, apprezzato anche per la proposta di vini naturali.

Il locale si presenta in ottime condizioni manutentive, ristrutturato recentemente e con impianti a norma.
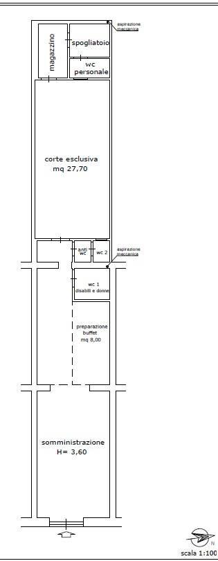
È dotato di magazzino, spogliatoio e servizi igienici.

Completa la proprietà un gradevole giardino interno e una pedana esterna con occupazione di suolo pubblico autorizzata, elementi di grande valore per la somministrazione.

La vendita comprende inoltre arredi e attrezzature presenti, tra cui banco frigo, scaffalature, tavoli, sedie, frigoriferi, fornetti, stovigliatura e rimanenze di magazzino.

Soluzione ideale per operatori del settore alla ricerca di un locale pronto, con immagine consolidata e ubicazione strategica.

Ulteriori informazioni disponibili su richiesta.

3513664237 - 0658333124

LEGGI TUTTO

CONDIVIDI SUI SOCIAL

DATI PRINCIPALI

Riferimento
641220
Contratto
Vendita
Tipologia
Immobile - Negozio
Superficie
80 mq
Locali
3
Bagni
3
Piano
Piano terra
Totale piani
5

CARATTERISTICHE

Ascensore Arredato Allarme

COSTI

Prezzo
€ 72.000,00
Spese condominiali
€ 40,00 / mese

EFFICIENZA ENERGETICA

Stato
Ristrutturato
Riscaldamento
Autonomo
Climatizzazione
Si
Classe energetica
G
IPE
175,00 kWh/m²a

A+

A

B

C

D

E

F

175,00 kWh/m²a | Classe energetica G

G

MAPPA