Locale commerciale in Vendita VENDITA

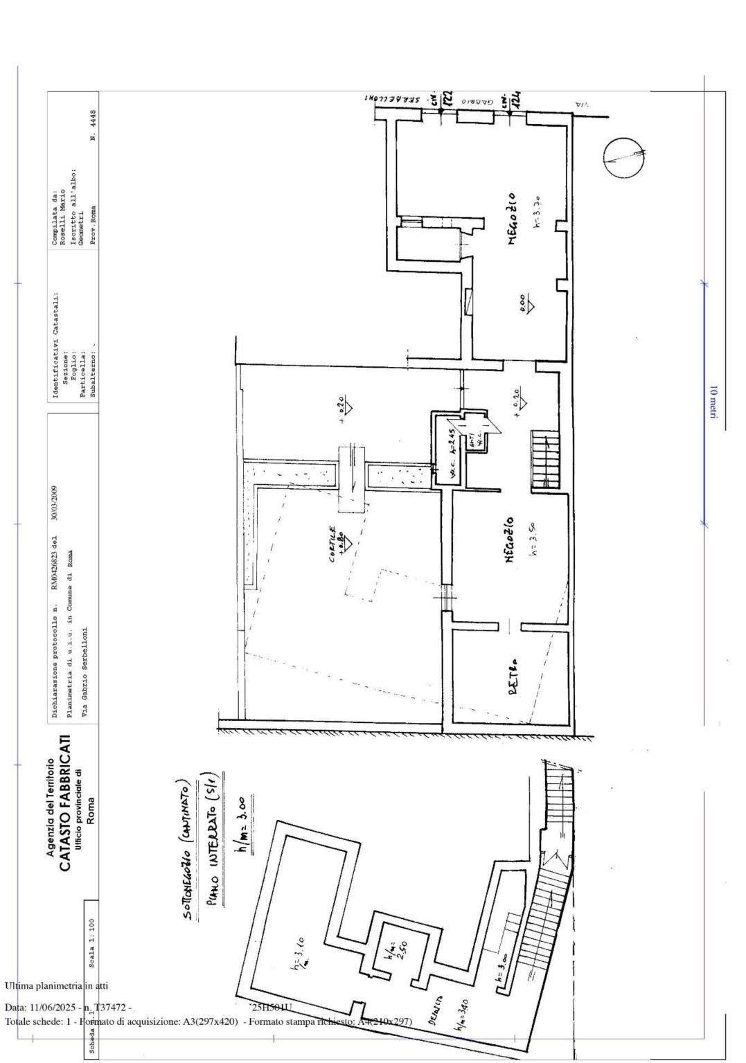
Via Gabrio Serbelloni - Roma (Roma)
€ 460.000
  • 4 locali
  • 230 mq
  • 2 bagni

Negozio in Vendita a Roma

Rif. CBI073-604-130047 - Coldwell Banker Prestige Real Estate è lieta di proporre in vendita un prestigioso locale commerciale (categoria C1) situato in Via Gabrio Serbelloni, nel cuore della vivace zona Tor Pignattara / Pigneto, da sempre polo culturale e sede di importanti esposizioni artistiche.
L’immobile, collocato al piano terra di un elegante palazzo d’epoca, gode di un’ottima visibilità grazie alle sue due ampie vetrine su strada e vanta soffitti alti quasi 4 metri, elemento ideale per valorizzare ogni tipo di attività.
La superficie si sviluppa su:
150 mq al piano terra, con ambienti luminosi e versatili;
70 mq al piano interrato, perfetti per magazzino, esposizione o laboratorio;
uno splendido cortile esterno di 125 mq, raro valore aggiunto, ideale per eventi, esposizioni o attività all’aperto.
Una caratteristica di pregio è che una parte del locale non ha immobili sovrastanti, garantendo maggiore indipendenza e tranquillità.
Grazie alla posizione, all’ampia metratura e alla versatilità degli spazi, questo immobile si presta a molteplici destinazioni d’uso: showroom, galleria d’arte, concept store, studio professionale, ristorazione o centro polifunzionale.
Contattaci per maggiori informazioni o per fissare una visita.
LE PRESENTI INFORMAZIONI E PLANIMETRIE SONO MERAMENTE INDICATIVE E NON COSTITUISCONO ELEMENTI CONTRATTUALI. Coldwell Banker, presente in più di 40 Paesi con oltre 3000 agenzie e 100.000 agenti, rappresenta oggi il gruppo leader mondiale del mercato residenziale di fascia alta e medio-alta. In Italia, Coldwell Banker è presente dal 2009 ed oggi, con più di 100 agenzie ed oltre 600 agenti, rappresenta un gruppo leader nel settore, in grado di promuovere i propri immobili di prestigio all’interno del circuito mondiale del lusso, attraverso il programma Coldwell Banker Global Luxury, la più prestigiosa vetrina internazionale del comparto.

LEGGI TUTTO

CONDIVIDI SUI SOCIAL

DATI PRINCIPALI

Riferimento
642879
Contratto
Vendita
Tipologia
Immobile - Negozio
Superficie
230 mq
Locali
4
Bagni
2
Piano
Piano terra
Totale piani
4

CARATTERISTICHE

Ascensore

COSTI

Prezzo
€ 460.000,00
Spese condominiali
€ 50,00 / mese

EFFICIENZA ENERGETICA

Stato
Abitabile
Anno costruzione
1920
Riscaldamento
Autonomo
Climatizzazione
Si
Classe energetica
G
IPE
175,00 kWh/m²a

A+

A

B

C

D

E

F

175,00 kWh/m²a | Classe energetica G

G

MAPPA

ANNUNCI SIMILI

VENDITA 16
€ 330.000
Negozio in Vendita a Roma, Zona Pigneto
  • Più di 5 locali
  • 150 mq
  • 3 bagni
VENDITA 13
€ 279.000
Negozio in Vendita a Roma, Zona Pigneto
  • Più di 5 locali
  • 250 mq
  • 4 bagni
VENDITA 11
€ 1.100.000
Negozio in Vendita a Roma (Roma)
  • Più di 5 locali
  • 811 mq
  • 1 bagno
VENDITA 5
€ 1.300.000
Negozio in Vendita a Roma (Roma)
  • Più di 5 locali
  • 960 mq
  • 4 bagni
VENDITA 20
€ 280.000
Negozio in Vendita a Roma (Roma)
  • 4 locali
  • 73 mq
  • 1 bagno
VENDITA 15
€ 130.000
Negozio in Vendita a Roma (Roma)
  • Più di 5 locali
  • 130 mq
  • 2 bagni