Villalba fronte strada Via Tiburtina AFFITTO

Via Tiburtina - Guidonia Montecelio (Roma)
€ 5.000 mensili
  • Più di 5 locali
  • 473 mq
  • 3 bagni

Negozio in Affitto a Guidonia Montecelio

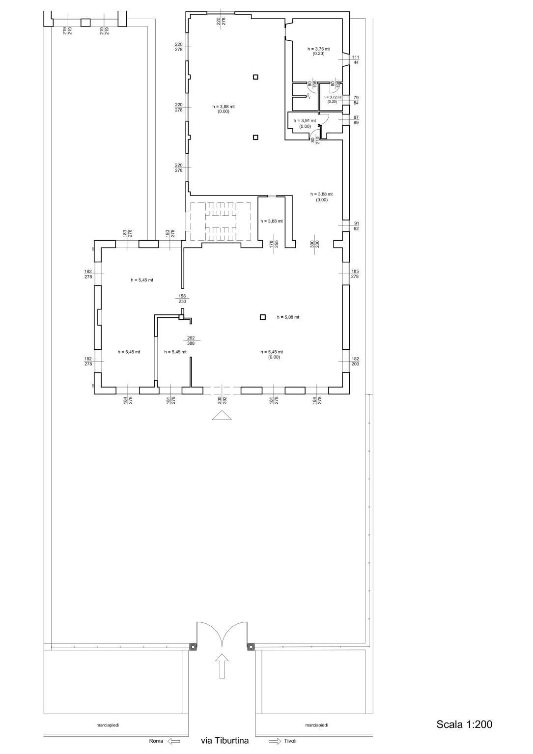
La VIVE.MT.IMMOBILIARE S.r.l. propone in locazione in Villalba fronte strada Via Tiburtina un immobile a destinazione commerciale/artigianale, in posizione di ottima visibilità e facile accesso.

Il locale, interamente al piano terra, si sviluppa su una superficie coperta di circa 450 mq, con altezze interne variabili: 3,60 m in parte, 5,10 m nella zona più ampia
La distribuzione interna prevede:
- circa 80 mq a destinazione commerciale
- circa 370 mq a destinazione artigianale

Completano la proprietà:
- 750 mq di spazi esterni
- 2 box coperti, sempre al piano terra

La proprietà, in caso di necessità del conduttore, effettuerà il cambio di destinazione d’uso dell’intero immobile a commerciale.

Soluzione ideale per attività commerciali, showroom, laboratori artigianali o uso misto.

Contattaci per avere ulteriori informazioni e fissare un sopralluogo sul posto, siamo a tua disposizione dal lunedì al venerdì dalle ore 9.00 alle ore 18.00 e il sabato dalle 9.00 alle 13.00.
Sede: Viale Roma n. 120 - Guidonia Montecelio (RM)
Tel. 0774.300787 - Cel. / Whatsapp 349.3262407 – 340.9819167

LEGGI TUTTO

CONDIVIDI SUI SOCIAL

DATI PRINCIPALI

Riferimento
633159
Contratto
Affitto
Tipologia
Immobile - Negozio
Superficie
473 mq
Locali
5
Bagni
3
Piano
Piano terra
Totale piani
1
Box/Posto auto
Doppio

CARATTERISTICHE

Ascensore

COSTI

Canone
Affitto € 5.000,00 al mese
Tipo locazione
4+4

EFFICIENZA ENERGETICA

Classe energetica
G
IPE
175,00 kWh/m²a

A+

A

B

C

D

E

F

175,00 kWh/m²a | Classe energetica G

G

MAPPA

ANNUNCI SIMILI

AFFITTO 12
€ 3.000 mensili
Negozio in Affitto a Roma (Roma)
  • Più di 5 locali
  • 177 mq
  • 2 bagni
AFFITTO 11
€ 9.500 mensili
Negozio in Affitto a Roma (Roma)
  • Più di 5 locali
  • 800 mq
  • 4 bagni
AFFITTO 11
€ 6.000 mensili
Negozio in Affitto a Frascati (Roma)
  • Più di 5 locali
  • 303 mq
  • 4 bagni
AFFITTO 20
€ 6.300 mensili
Negozio in Affitto a Roma (Roma)
  • Più di 5 locali
  • 455 mq
  • 3 bagni