Via Salaria, Settebagni (RM) 1 km dal GRA- loc.comm.le AFFITTO

Via Salaria 1317 - Roma, Zona Settebagni
€ 1.800 mensili
  • 3 locali
  • 103 mq
  • 2 bagni

Negozio in Affitto a Roma

Via Salaria, Settebagni (RM) 1 km dal GRA- loc.comm.le
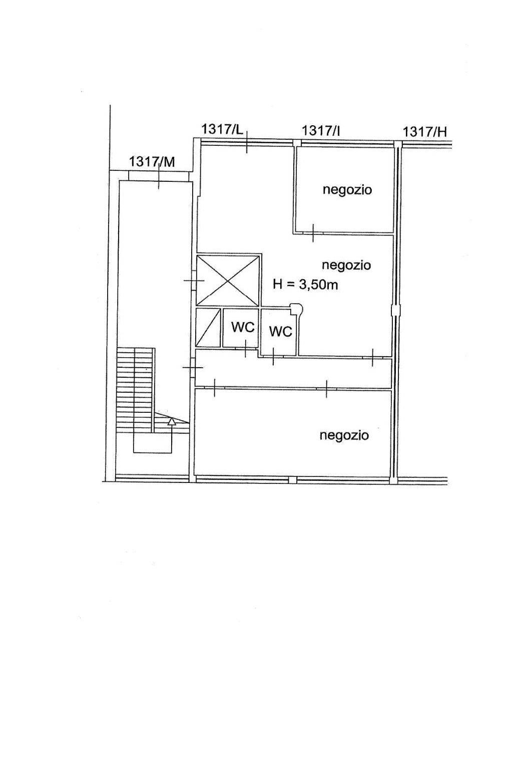
Affittasi locale commerciale fronte strada di circa 103 mq, situato al piano terra, in posizione strategica, ad alta visibilità, ottimamente collegato, nelle immediate vicinanze del Grande Raccordo Anulare, dell’Autostrada A1 e della Stazione ferroviaria di Settebagni. Ottima soluzione per chi cerca una sede funzionale, ben collegata e facilmente raggiungibile.
L’immobile dispone di: 2 ampie vetrine su strada, doppio ingresso, ammpio open space, stanza separata, 2 bagni.
Impianti a norma.
Possibilità di locare 5 o più posti a auto scoperti.
Inserito in complesso recintato composto prevalentemente da uffici, ideale per studi professionali, showroom, attività di servizi, agenzie e attività commerciali che necessitano di visibilità e facilità di accesso.
Costo mensile locazione € 1.800,00 + IVA – oneri condominiali € 170,00 +IVA

LEGGI TUTTO

CONDIVIDI SUI SOCIAL

DATI PRINCIPALI

Riferimento
636760
Contratto
Affitto
Tipologia
Immobile - Negozio
Superficie
103 mq
Locali
3
Bagni
2
Piano
Piano terra
Totale piani
2
Box/Posto auto
Doppio

CARATTERISTICHE

Ascensore

COSTI

Canone
Affitto € 1.800,00 al mese
Tipo locazione
4+4
Spese condominiali
€ 170,00 / mese, non incluse nel canone

EFFICIENZA ENERGETICA

Anno costruzione
1980
Riscaldamento
Centralizzato
Climatizzazione
Si
Classe energetica
D
IPE
175,00 kWh/m²a

A+

A

B

C

175,00 kWh/m²a | Classe energetica D

D

E

F

G

MAPPA

ANNUNCI SIMILI

AFFITTO 20
€ 2.250 mensili
Negozio in Affitto a Roma, Zona Labaro
  • Più di 5 locali
  • 200 mq
  • 3 bagni
AFFITTO 19
€ 6.300 mensili
Negozio in Affitto a Roma (Roma)
  • Più di 5 locali
  • 460 mq
  • 3 bagni
AFFITTO 20
€ 6.300 mensili
Negozio in Affitto a Roma (Roma)
  • Più di 5 locali
  • 455 mq
  • 3 bagni
AFFITTO 20
€ 2.500 mensili
Negozio in Affitto a Roma (Roma)
  • Più di 5 locali
  • 131 mq
  • 3 bagni