Via Salaria n. 1368 - Settebagni(RM) loc.comm.le e deposito AFFITTO

Via Salaria 1368 - Roma, Zona Settebagni
€ 1.600 mensili
  • Più di 5 locali
  • 170 mq
  • 2 bagni

Negozio in Affitto a Roma

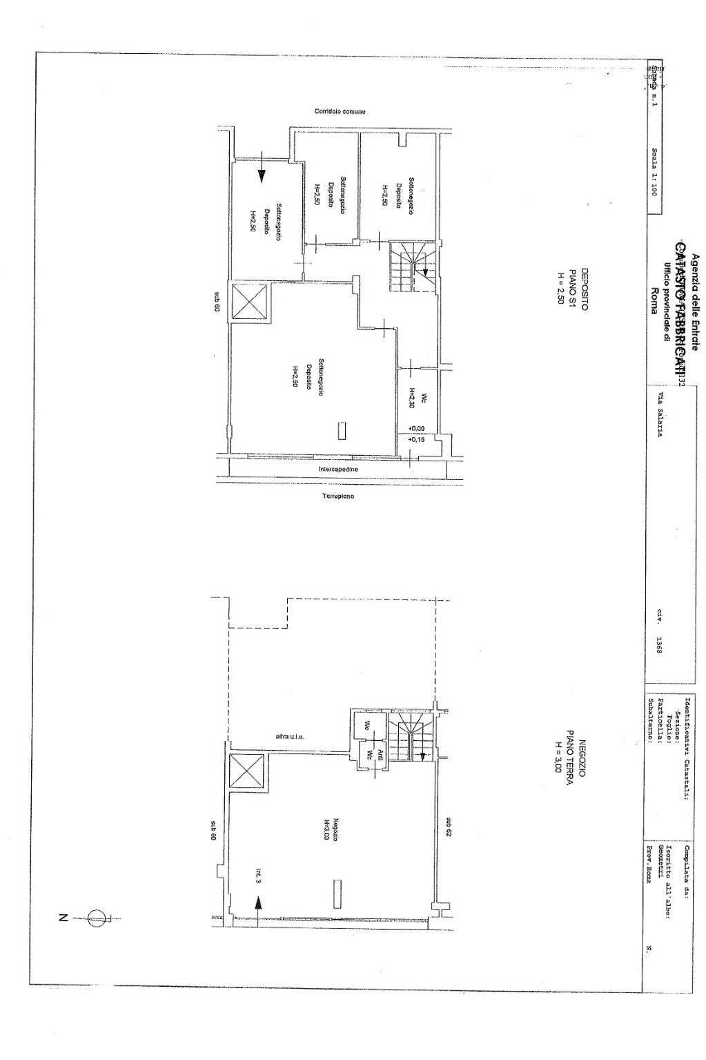
In Via Salaria n. 1368, Settebagni (RM) proponiamo in locazione un locale commerciale di 60 mq con sottonegozio di circa 110 mq, collegati internamente da una comoda scala.
L’immobile è situato in posizione strategica, a pochi minuti dal Grande Raccordo Anulare e con rapido collegamento all’Autostrada A1 Milano–Napoli.
Posto al piano terra, l’ufficio è composto da: ampio ambiente principale open space; una stanza separata; bagno con antibagno; due vetrine su strada che garantiscono ottima visibilità e luminosità.
Il sottonegozio, posto al piano S1 è composto da: 4 ambienti,bagno di servizio
Spazio ideale come archivio, deposito operativo, spazio multifunzionale, area operativa o laboratorio.
Completano la proprietà 2 posti auto scoperti all’interno della corte condominiale, elemento di grande comodità per titolari, dipendenti o clienti.
Soluzione particolarmente adatta a per studi professionali, showroom, attività commerciali o aziende che necessitano di spazi funzionali e ben collegati.
La locazione è curata dall’ Agenzia Immobiliare Erika Mondati Servizi Immobiliari S.r.l. con sede a Roma in Via Salaria n. 1422/F. Siamo aperti al pubblico dal lunedì al venerdì 09:30 alle 13:00 e dalle 16:00 alle 19:30, il sabato dalle 9:30 alle 13:00.
Potete contattarci telefonicamente per avere maggiori informazioni su questo annuncio e per fissare un appuntamento al numero: 06 8887456 o inviarci un messaggio WhatsApp o un SMS al numero 348 9364719, indicando la via dell’appartamento/locale, il prezzo o il riferimento dell’annuncio e ti risponderemo al più presto.

LEGGI TUTTO

CONDIVIDI SUI SOCIAL

DATI PRINCIPALI

Riferimento
636759
Contratto
Affitto
Tipologia
Immobile - Negozio
Superficie
170 mq
Locali
Più di 5
Bagni
2
Piano
Piano terra
Totale piani
2
Box/Posto auto
Doppio

CARATTERISTICHE

Ascensore

COSTI

Canone
Affitto € 1.600,00 al mese
Tipo locazione
4+4
Spese condominiali
€ 120,00 / mese, non incluse nel canone

EFFICIENZA ENERGETICA

Stato
Abitabile
Anno costruzione
1985
Riscaldamento
Autonomo
Climatizzazione
Si
Classe energetica
C
IPE
175,00 kWh/m²a

A+

A

B

175,00 kWh/m²a | Classe energetica C

C

D

E

F

G

MAPPA

ANNUNCI SIMILI

AFFITTO 20
€ 2.250 mensili
Negozio in Affitto a Roma, Zona Labaro
  • Più di 5 locali
  • 200 mq
  • 3 bagni
AFFITTO 19
€ 6.300 mensili
Negozio in Affitto a Roma (Roma)
  • Più di 5 locali
  • 460 mq
  • 3 bagni
AFFITTO 20
€ 6.300 mensili
Negozio in Affitto a Roma (Roma)
  • Più di 5 locali
  • 455 mq
  • 3 bagni
AFFITTO 4
€ 12.000 mensili
Negozio in Affitto a Roma, Zona Bologna
  • Più di 5 locali
  • 607 mq
  • 4 bagni
AFFITTO 20
€ 6.000 mensili
Negozio in Affitto a Roma (Roma)
  • Più di 5 locali
  • 450 mq
  • 4 bagni