Via Cristoforo Colombo EUR mq 800 categoria D/8 in affitto AFFITTO

Via Alessandro Severo 244 - Roma, Zona San Paolo
€ 8.000 mensili
  • Più di 5 locali
  • 800 mq
  • 4 bagni

Negozio in Affitto a Roma

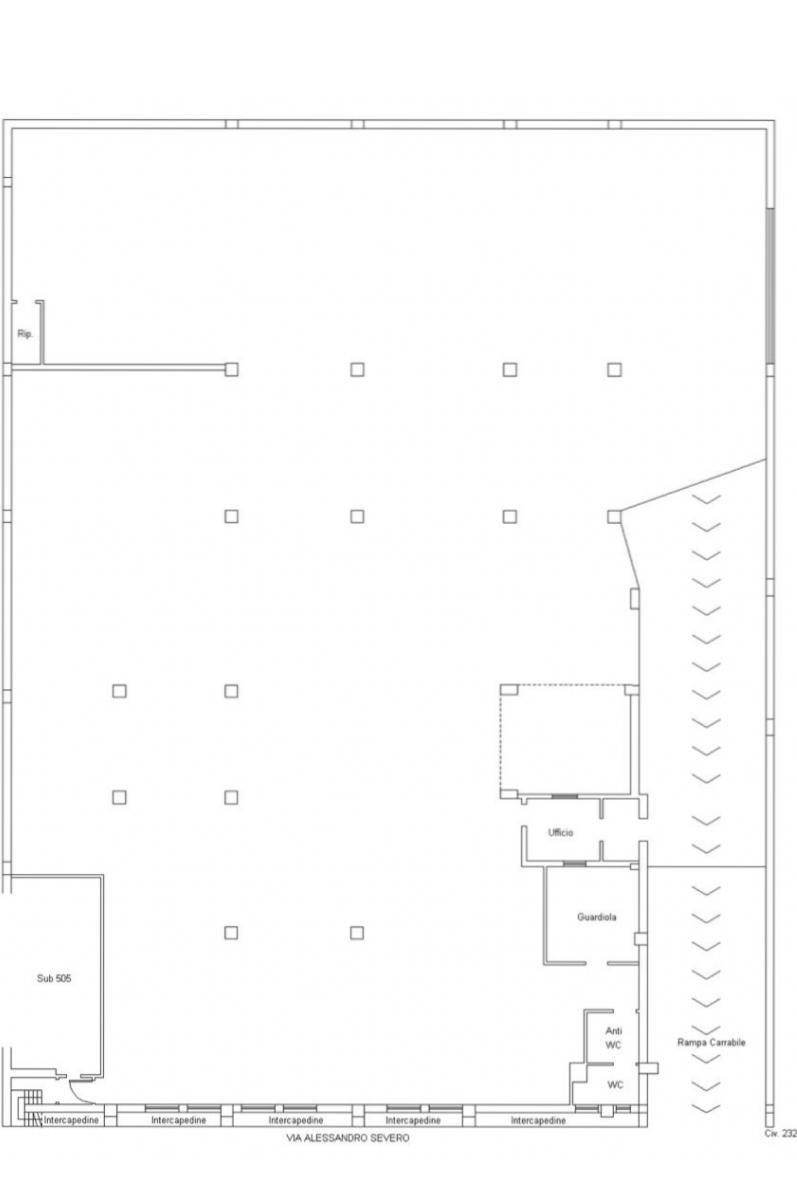
Roma, Ostiense, Via Cristoforo Colombo, EUR, tra San Paolo e Piramide di Caio Cestio , precisamente in via Alessandro Severo, a ridosso di Via Cristoforo Colombo, in una posizione strategica di collegamento tra Centro e Grande Raccordo Anulare proponiamo in vendita locale commerciale, a pochi passi dalla nuova sede RAI . La categoria catastale è D/8 (deposito, stoccaggio; conservazione surgelati; macelli; grande distribuzione, magazzini supermercati, ipermercati). Da circa 30 anni adibito ad autorimessa. L'immobile è sito al piano seminterrato ed è attualmente adibito a parcheggio ad ore (con recente adeguamento alle normative vigenti). L'immobile ha una rampa carrabile di accesso su V. A. Severo ed una superficie di circa mq 800 con altezza di circa m 4,60, composta da: ampia sala con capienza di circa 80 autoveicoli , ufficio al piano superiore, guardiola, ripostiglio, bagno e antibagno. Telecamere di sorveglianza e allarme. Impianto autonomo. Canone di affitto: € 8.000,00/mese . Richieste garanzie. Per maggiori informazioni e/o visite contattare CMC Real Estate ai seguenti recapiti: +39 3927206724 ; +39 06 45598430; cmcrealestate@icloud.com ; www.cmcrealestate.it .

LEGGI TUTTO

CONDIVIDI SUI SOCIAL

DATI PRINCIPALI

Riferimento
639151
Contratto
Affitto
Tipologia
Immobile - Negozio
Superficie
800 mq
Locali
Più di 5
Bagni
4
Piano
Interrato
Totale piani
3
Box/Posto auto
Doppio

CARATTERISTICHE

Ascensore Semi-arredato Allarme

COSTI

Canone
Affitto € 8.000,00 al mese
Tipo locazione
4+4

EFFICIENZA ENERGETICA

Stato
Ristrutturato
Anno costruzione
1970
Riscaldamento
Autonomo
Climatizzazione
Si
Classe energetica
F
IPE
175,00 kWh/m²a

A+

A

B

C

D

E

175,00 kWh/m²a | Classe energetica F

F

G

MAPPA

ANNUNCI SIMILI

AFFITTO
Trattativa Riservata
Negozio in Affitto a Roma, Zona San Giovanni
  • Più di 5 locali
  • 117 mq
  • 1 bagno
AFFITTO
Trattativa Riservata
Negozio in Affitto a Roma, Zona Re di Roma
  • Più di 5 locali
  • 400 mq
  • 1 bagno